Gracefield
Description de la propriété
Charmant chalet trois saisons situé directement sur les rives du lac Perreault, un plan d'eau paisible idéal pour la baignade et la détente. Offrant 2 chambres à coucher et une salle de bain complète, il propose un espace simple et accueillant pour profiter de l'été. Belle véranda donnant sur le lac, parfaite pour relaxer et admirer la vue. Terrain avec beau bord de l'eau pour profiter pleinement des activités nautiques. À environ 1h15 d'Ottawa. Une belle opportunité d'acquérir un chalet abordable pour la saison estivale.
Détails
Proximité
Autoroute/Voie rapide
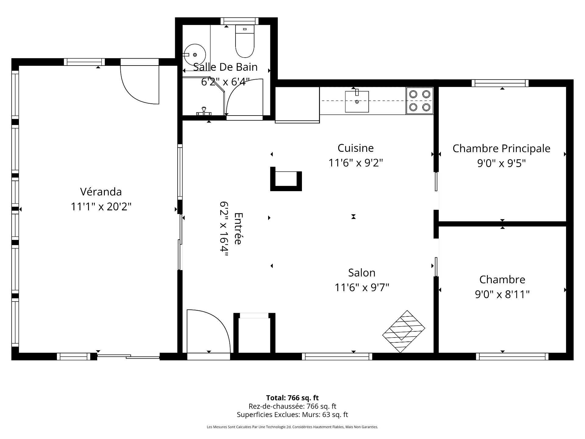
Dimension des pièces
| Pièce | Niveau | Dimensions | Couvre plancher |
|---|---|---|---|
| Hall d'entrée | 1er niveau/RDC | 16.5x5.8 P | Plancher flottant |
| Salon | 1er niveau/RDC | 11.9x11.10 P | Plancher flottant |
| Cuisine | 1er niveau/RDC | 7.7x12.0 P | Plancher flottant |
| Salle de bains | 1er niveau/RDC | 7.0x6.0 P | Céramique |
| Solarium | 1er niveau/RDC | 13.4x19.8 P | Linoléum |
| Chambre à coucher principale | 1er niveau/RDC | 9.0x9.5 P | Plancher flottant |
| Chambre à coucher | 1er niveau/RDC | 9.0x8.11 P | Plancher flottant |
Taxes et dépenses
| Taxes municipales | 1 707 $ |
| Taxes scolaires | 102 $ |
Bâtiment et intérieur de la propriété
| Chambres | 2 |
| Salles de bain | 1 |
| Nombre de pièces | 7 |
| Nombre de chambres hors sol | 2 |
| Aire habitable | 74.32 MC |
| Délai d'occupation prévu | 30 jours |
| Éléments inclus lors de la vente | La plupart des meubles et du contenu de la propriété, bateau en aluminium, quai |
| Éléments exclus lors de la vente | 2 chaises en bois sur le porche, 2 chaises d'extérieur, un kayak, une cheminée en terre cuite, des photos et des effets personnels. |
| Superficie du terrain | 835 MC |
| Dimension de la façade du terrain | 21.48 M |
| Dimension de la profondeur du terrain | 31.67 M |
| Année de construction | 1965 |
| Évaluation municipale (terrain) | 37 600 $ |
| Évaluation municipale (bâtiment) | 143 400 $ |
| Évaluation municipale (total) | 181 000 $ |
| Année d'évaluation | 2026 |
| Superficie du bâtiment | 74.32 MC |
| Terrain irrégulier | Oui |
| Allée | Non pavée |
| Armoires | Bois |
| Mode de chauffage | Plinthes à convection, Plinthes électriques |
| Approvisionnement en eau | Eau du lac |
| Énergie pour le chauffage | Bois, Électricité |
| Fenêtres | PVC |
| Foyers-poêles | Poêle à bois |
| Revêtements | Aluminium, Bois |
| Particularités | Aucun voisin à l'arrière, Navigable, Bordé par l'eau, Cul-de-sac |
| Salle de bains/salle d'eau | Douche indépendante |
| Services disponibles | Détecteur d'incendie |
| Sous-sol | Aucun sous-sol |
| Stationnement | Extérieur |
| Système d'égouts | Inconnu |
| Type de fenêtre | Coulissante, Porte-fenêtre, Manivelle, Guillotine |
| Toiture | Tôle |
| Topographie | En pente |
| Vue | Sur l'eau |
| Zonage | Résidentiel |
Addendas
| * Charmant chalet trois saisons situé directement sur les |
| rives du lac Perreault, un plan d'eau paisible apprécié |
| pour sa tranquillité et son environnement naturel. |
| * Lac idéal pour la baignade, le kayak, le paddleboard et |
| les activités nautiques dans une ambiance calme. |
| * Beau bord de l'eau permettant de profiter pleinement du |
| lac durant la saison estivale. |
| * Propriété de type chalet trois saisons, parfaite comme |
| pied-à-terre ou refuge estival. |
| * Format simple et facile d'entretien, permettant de |
| maximiser le temps de détente plutôt que l'entretien. |
| * Idéal pour les acheteurs à la recherche d'un premier |
| chalet ou d'une propriété accessible au bord de l'eau. |
| * Secteur de Gracefield reconnu pour ses paysages, ses lacs |
| et son accès privilégié aux activités de plein air. |
| * À proximité des sentiers fédérés de motoneige et de VTT, |
| offrant un accès direct à un vaste réseau de trails. |
| * Région très prisée pour les amateurs de chasse, pêche, |
| randonnée et activités en nature. |
| * À environ 1h15 d'Ottawa, facilitant les escapades de fin |
| de semaine. |
| * Accès à proximité des services essentiels, épiceries, |
| restaurants et commodités du secteur. |
| * Emplacement idéal pour profiter d'un mode de vie simple, |
| près de l'eau et en pleine nature. |
| * Une belle opportunité d'acquérir un chalet au bord de |
| l'eau à un prix accessible. |





























































