Gatineau (Hull)
Description de la propriété
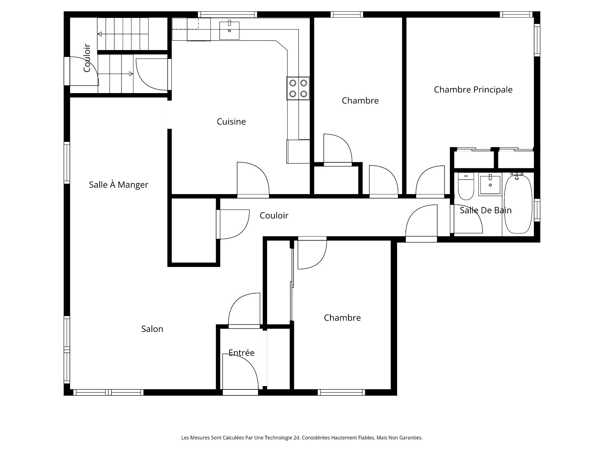
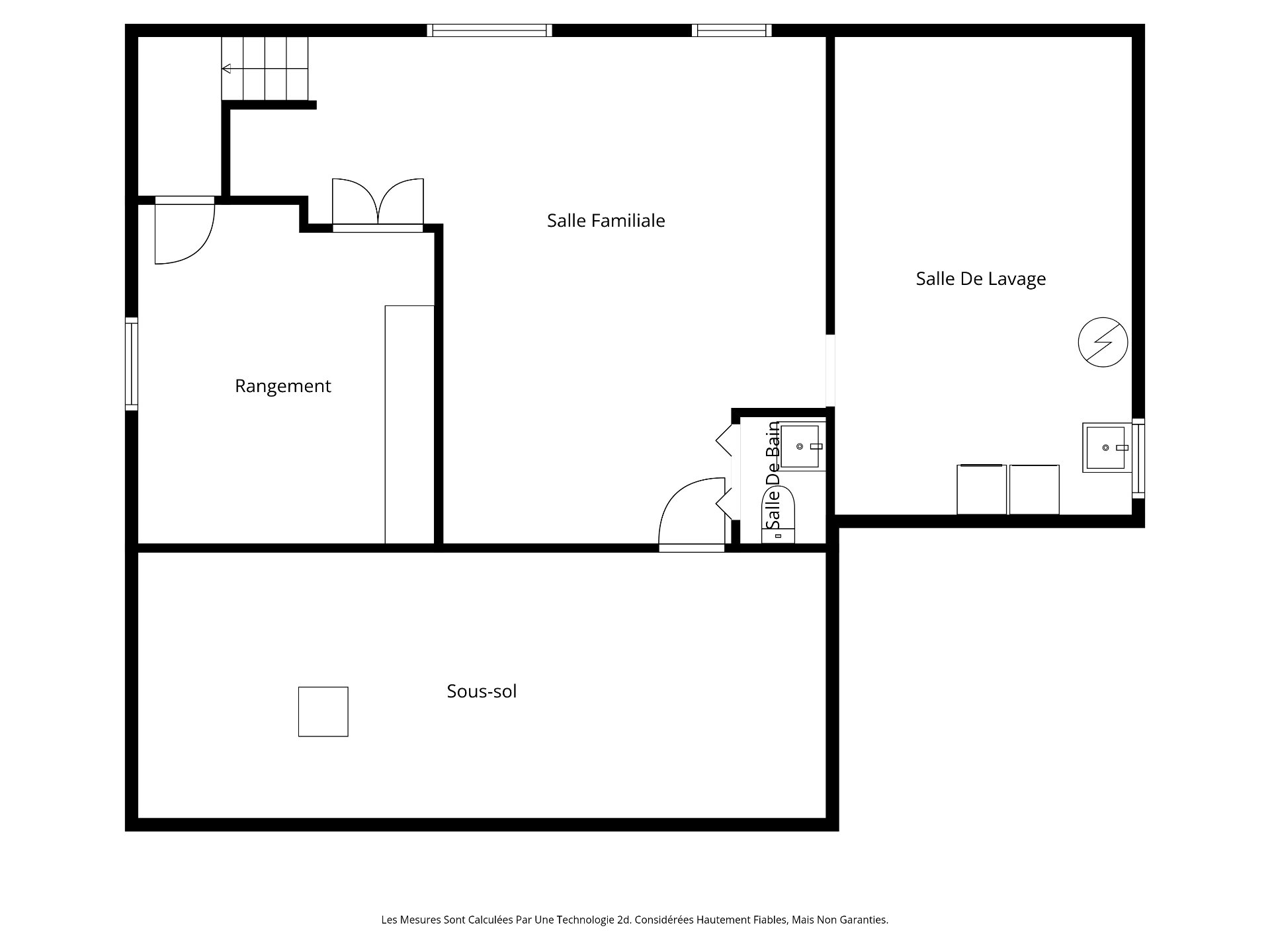
Secteur Hull -- Val-Tétreault. Maison de plain-pied avec garage nécessitant des travaux, offrant un superbe potentiel ! Avec ses 1 265 pi², elle propose de grandes pièces principales ainsi que 3 chambres à coucher. Le sous-sol, déjà muni d'une salle d'eau, offre plusieurs possibilités d'aménagement : salle familiale, salle de jeux, chambre supplémentaire ou autre selon vos besoins. Le tout est situé sur un grand terrain, à proximité de tous les services et à seulement 5 à 10 minutes du centre-ville de Gatineau et d'Ottawa.
Détails
Proximité
Parc-espace vert, École primaire, Transport en commun, Université, Piste cyclable
Dimension des pièces
| Pièce | Niveau | Dimensions | Couvre plancher |
|---|---|---|---|
| Hall d'entrée | 1er niveau/RDC | 3.11x5.0 P | Tapis |
| Salon | 1er niveau/RDC | 13.2x13.11 P | Tapis |
| Salle à manger | 1er niveau/RDC | 13.0x8.6 P | Tapis |
| Cuisine | 1er niveau/RDC | 11.11x16.1 P | Prélart |
| Chambre à coucher | 1er niveau/RDC | 12.11x9.4 P | Bois |
| Chambre à coucher | 1er niveau/RDC | 13.8x7.11 P | Bois |
| Chambre à coucher principale | 1er niveau/RDC | 11.10x12.0 P | Bois |
| Salle de bains | 1er niveau/RDC | 7.6x4.10 P | Céramique |
| Salle d'eau | Sous-sol | 2.11x5.2 P | Autre |
Taxes et dépenses
| Taxes municipales | 4 183 $ |
| Taxes scolaires | 368 $ |
Bâtiment et intérieur de la propriété
| Chambres | 3 |
| Salles de bain | 1 |
| Salles d'eau | 1 |
| Nombre de pièces | 9 |
| Nombre de chambres hors sol | 3 |
| Aire habitable | 1265 PC |
| Délai d'occupation prévu | 60 jours |
| Éléments inclus lors de la vente | Réfrigérateur, cuisinière, lave-vaisselle, laveuse, sécheuse, air climatisé central, piano. |
| Superficie du terrain | 6000 PC |
| Dimension de la façade du terrain | 60 P |
| Dimension de la profondeur du terrain | 100 P |
| Année de construction | 1956 |
| Évaluation municipale (terrain) | 248 000 $ |
| Évaluation municipale (bâtiment) | 269 900 $ |
| Évaluation municipale (total) | 517 900 $ |
| Année d'évaluation | 2026 |
| Allée | Asphalte |
| Aménagement du terrain | Paysager |
| Armoires | Bois |
| Mode de chauffage | Air soufflé |
| Approvisionnement en eau | Municipalité |
| Énergie pour le chauffage | Électricité |
| Fenêtres | Aluminium, PVC |
| Fondation | Bloc de béton |
| Foyers-poêles | Foyer au bois |
| Garage | Attaché, Simple largeur |
| Revêtements | Brique |
| Sous-sol | Non aménagé |
| Stationnement | Extérieur, Au garage |
| Système d'égouts | Municipal |
| Type de fenêtre | Coulissante, Guillotine |
| Toiture | Bardeaux d'asphalte |
| Zonage | Résidentiel |





























