Gatineau (Aylmer)
Description de la propriété
Unique et rare sur le marché! Belle propriété offrant un logis parental au rez-de-chaussée, idéale pour une famille intergénérationnelle . Vous serez charmé par son lumineux solarium ainsi que par sa cour entièrement clôturée, aménagée avec une piscine creusée et un patio parfait pour profiter des belles saisons. La cuisine, à la fois fonctionnelle et spacieuse, s'ouvre sur une salle à manger conviviale. Le sous-sol est entièrement aménagé, offrant un espace de vie supplémentaire des plus pratiques. Située dans un quartier paisible et recherché, à proximité des transports en commun.
Détails
Proximité
Autoroute/Voie rapide, Golf, Parc-espace vert, École primaire, École secondaire, Transport en commun, Piste cyclable, Garderie/CPE
Dimension des pièces
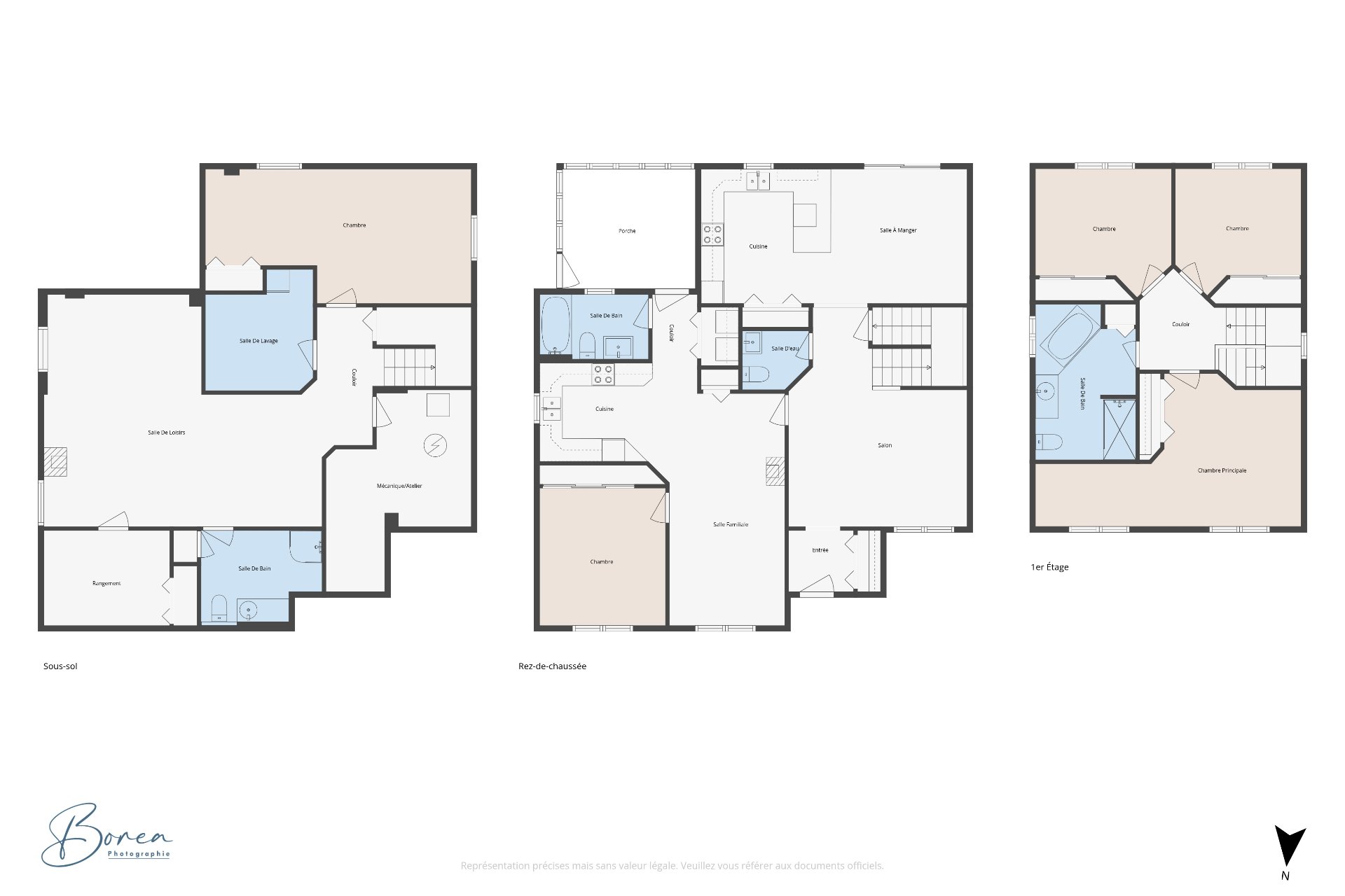
| Pièce | Niveau | Dimensions | Couvre plancher |
|---|---|---|---|
| Salon | 1er niveau/RDC | 9.10x15 P | Bois |
| Cuisine | 1er niveau/RDC | 8.6x9.9 P | Linoléum |
| Coin repas | 1er niveau/RDC | 6.7 P | Bois |
| Chambre à coucher | 1er niveau/RDC | 11x11.11 P | Bois |
| Salle de bains | 1er niveau/RDC | 5.1x9.1 P | Plancher flottant |
| Salle de lavage | 1er niveau/RDC | 3x5.1 P | Linoléum |
| Solarium | 1er niveau/RDC | 10x11.9 P | Plywood |
| Hall d'entrée | 1er niveau/RDC | 5x5.8 P | Céramique |
| Salon | 1er niveau/RDC | 11.10x15.3 P | Bois |
| Salle à manger | 1er niveau/RDC | 11.3x12 P | Linoléum |
| Cuisine | 1er niveau/RDC | 10.11x11.3 P | Linoléum |
| Salle d'eau | 1er niveau/RDC | 4.10x5.9 P | Plancher flottant |
| Chambre à coucher principale | 2ième étage | 11.10x11.7 P | Bois |
| Chambre à coucher | 2ième étage | 9.1x10.9 P | Bois |
| Chambre à coucher | 2ième étage | 9.1x11.10 P | Bois |
| Salle de bains | 2ième étage | 8.7x13.4 P | Céramique |
| Salle familiale | Sous-sol | 19x23.8 P | Plancher flottant |
| Bureau à domicile | Sous-sol | 11x21 P | Plancher flottant |
| Salle de lavage | Sous-sol | 7.10x8.8 P | Tuiles |
| Salle de bains | Sous-sol | 8x10.9 P | Tuiles |
Taxes et dépenses
| Taxes scolaires | 758 $ |
| Taxes municipales | 5 746 $ |
| Coût d'énergie | 3 273 $ |
Bâtiment et intérieur de la propriété
| Chambres | 4 |
| Salles de bain | 3 |
| Salles d'eau | 1 |
| Nombre de pièces | 6 |
| Nombre de chambres hors sol | 3 |
| Nombre de chambres au sous-sol | 1 |
| Aire habitable | 2075 PC |
| Délai d'occupation prévu | 75 jours |
| Éléments inclus lors de la vente | Lave-vaisselle, climatiseur central, thermo pompe piscine, accessoires de piscine, remise, rideaux, pôles, gazebo |
| Éléments exclus lors de la vente | Système de sécurité pour fenêtres, fournaise et chauffe-eau en location |
| Dimension de la façade du bâtiment | 36 P |
| Dimension de la profondeur du bâtiment | 41 P |
| Superficie du terrain | 5252 PC |
| Dimension de la façade du terrain | 52 P |
| Dimension de la profondeur du terrain | 101 P |
| Année de construction | 2003 |
| Évaluation municipale (terrain) | 199 800 $ |
| Évaluation municipale (bâtiment) | 558 000 $ |
| Évaluation municipale (total) | 757 800 $ |
| Année d'évaluation | 2026 |
| Bâtiment irrégulier | Oui |
| Superficie du bâtiment | 1444 PC |
| Terrain irrégulier | Oui |
| Allée | Asphalte, Non pavée |
| Aménagement du terrain | Clôturé, Paysager |
| Mode de chauffage | Air soufflé, Plinthes électriques |
| Approvisionnement en eau | Municipalité |
| Énergie pour le chauffage | Électricité, Gaz naturel |
| Fenêtres | PVC |
| Fondation | Béton coulé |
| Foyers-poêles | Foyer au gaz |
| Appareils en location | Appareils de chauffage, Chauffe-eau |
| Revêtements | Brique, Vinyle |
| Particularités | Intergénération |
| Piscine | Creusée |
| Sous-sol | 6 pieds et plus, Totalement aménagé |
| Stationnement | Extérieur |
| Système d'égouts | Municipal |
| Type de fenêtre | Manivelle |
| Toiture | Bardeaux d'asphalte |
| Topographie | Plat |
| Zonage | Résidentiel |





















































