La Pêche
Description de la propriété
Paradis au bord de l'eau sur le magnifique Lac Sinclair, à moins 1 heure d'Ottawa! Ce charmant chalet offre 2 chambres à coucher et 1 salle de bain complète, avec une aire ouverte comprenant cuisine, salle à manger et salon avec poêle au bois. La fenestration généreuse permet de profiter pleinement de la vue sur le lac. À l'extérieur, découvrez un superbe terrain plat, une immense terrasse et un quai privé parfait pour relaxer, la pêche ou les sports nautiques. Un bunkie avec électricité permet d'accueillir famille et invités. Une occasion rare de profiter d'un mode de vie paisible au bord de l'eau pour créer des souvenirs inoubliables.
Détails
Proximité
Parc-espace vert, Ski alpin, Ski de fond
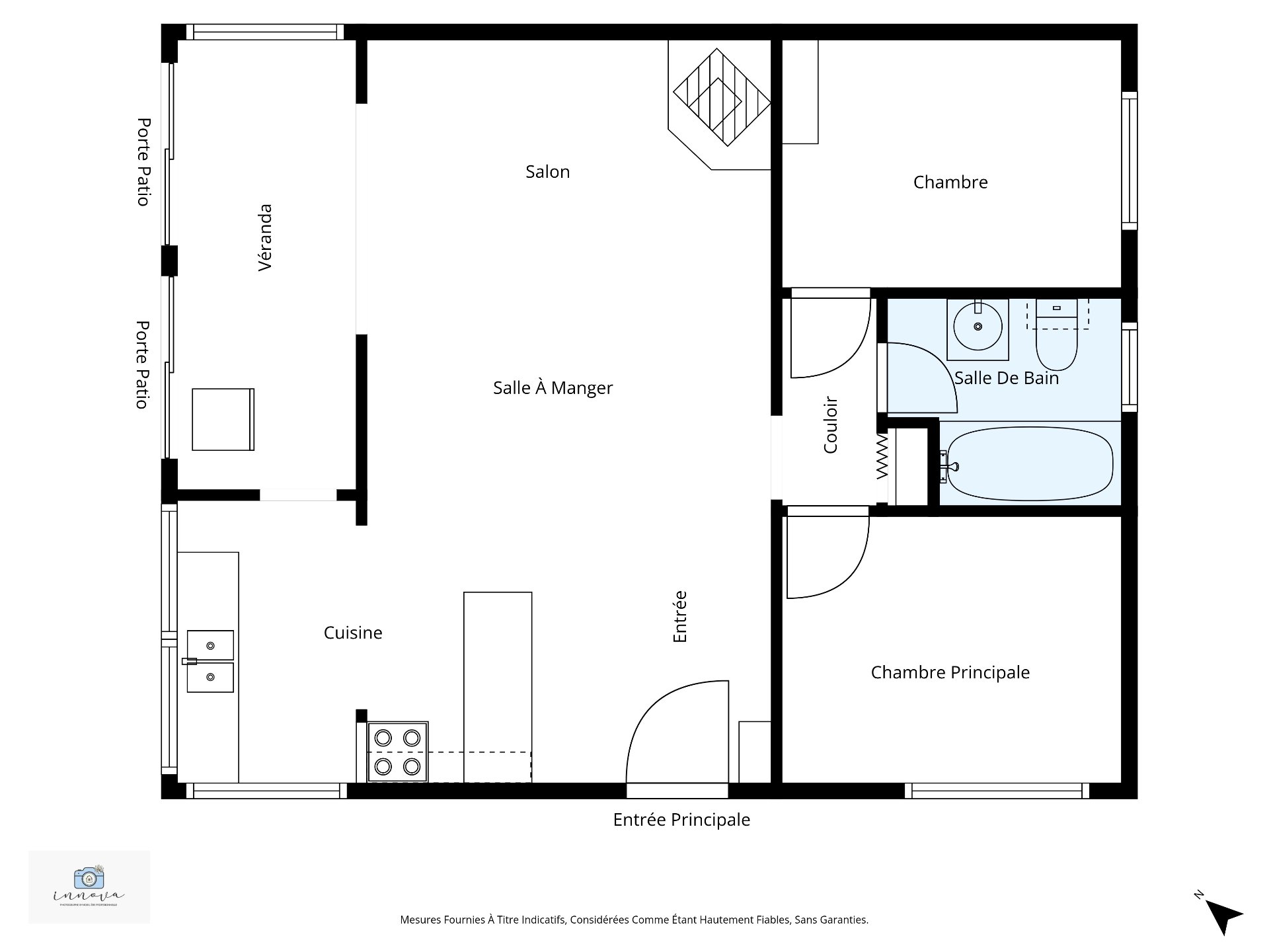
Dimension des pièces
| Pièce | Niveau | Dimensions | Couvre plancher |
|---|---|---|---|
| Hall d'entrée | 1er niveau/RDC | 5.9x9.5 P | Plancher flottant |
| Cuisine | 1er niveau/RDC | 13.3x9.5 P | Plancher flottant |
| Salle à manger | 1er niveau/RDC | 12.11x6.8 P | Plancher flottant |
| Salle de bains | 1er niveau/RDC | 7.6x6.7 P | Plancher flottant |
| Chambre à coucher | 1er niveau/RDC | 10.11x7.11 P | Plancher flottant |
| Chambre à coucher | 1er niveau/RDC | 10.11x8.6 P | Plancher flottant |
| Salon | 1er niveau/RDC | 13x7.9 P | Plancher flottant |
| Véranda | 1er niveau/RDC | 5.9x14.5 P | Plancher flottant |
Taxes et dépenses
| Taxes scolaires | 154 $ |
| Taxes municipales | 2 858 $ |
| Coût d'énergie | 760 $ |
Bâtiment et intérieur de la propriété
| Chambres | 2 |
| Salles de bain | 1 |
| Nombre de pièces | 8 |
| Nombre de chambres hors sol | 2 |
| Aire habitable | 744 PC |
| Délai d'occupation prévu | 30 jours |
| Éléments inclus lors de la vente | Contenu du chalet et du Bunkie, 2 kayaks, 1 canot et un pédalo. |
| Éléments exclus lors de la vente | Sea-Doo (achat possible à discuter), les biens et outils personnels, les cadres et les peintures (oeuvre d'art). |
| Dimension de la façade du bâtiment | 7.45 M |
| Dimension de la profondeur du bâtiment | 9.23 M |
| Superficie du terrain | 2428.1 MC |
| Dimension de la façade du terrain | 43.17 M |
| Année de construction | 1960 |
| Évaluation municipale (terrain) | 106 900 $ |
| Évaluation municipale (bâtiment) | 151 000 $ |
| Évaluation municipale (total) | 257 900 $ |
| Année d'évaluation | 2026 |
| Superficie du bâtiment | 744 PC |
| Terrain irrégulier | Oui |
| Allée | Non pavée |
| Aménagement du terrain | Paysager |
| Armoires | Mélamine |
| Mode de chauffage | Plinthes électriques |
| Approvisionnement en eau | Eau du lac |
| Énergie pour le chauffage | Électricité |
| Fenêtres | PVC |
| Fondation | Bloc de béton, Pilotis |
| Foyers-poêles | Poêle à bois |
| Revêtements | Vinyle |
| Particularités | Villégiature/Chalet, Boisé, Saisonnier, Navigable, Bordé par l'eau, Cul-de-sac |
| Restrictions/Permissions | Animaux permis |
| Sous-sol | Vide sanitaire |
| Stationnement | Extérieur |
| Système d'égouts | Puits sec (puisard) |
| Type de fenêtre | Coulissante |
| Toiture | Bardeaux d'asphalte |
| Topographie | Plat |
| Vue | Sur l'eau, Panoramique |
| Zonage | Résidentiel |
Addendas
| Aperçu de la propriété |
| - Chalet lumineux comprenant 2 chambres à coucher et 1 |
| salle de bain complète |
| - Cuisine, salle à manger et salon à aire ouverte |
| - Salon chaleureux avec poêle à bois et finition en pierre |
| de rivière |
| - Fenestration abondante procurant une belle luminosité |
| naturelle |
| - Intérieur en bois offrant un cachet rustique et chaleureux |
| - Plusieurs espaces de rangement incluant armoires et |
| étagères intégrées |
| - Un mur d'accent dans la chambre principale ajoute style |
| et caractère |
| Caractéristiques extérieures |
| - Superbe terrain privé avec arbres matures et végétation |
| naturelle |
| -Accès direct au lac avec quai privé |
| - Grande véranda lumineuse |
| - Immense patio surplombant le lac, parfait pour recevoir |
| ou relaxer |
| - Espace foyer extérieur et pelouse pour profiter des |
| soirées au bord de l'eau |
| Hébergement des invités |
| - Bunkie indépendant avec électricité situé près du chalet |
| - Espace pouvant accueillir confortablement deux lits |
| - Idéal pour recevoir famille et amis |
| Emplacement |
| - Situé sur le magnifique Lac Sinclair, reconnu pour ses |
| eaux claires |
| - Lac navigable idéal pour la pêche et les activités |
| nautiques |
| - Secteur paisible avec résidents saisonniers et à l'année |
| - Proximité des sentiers naturels, routes de VTT et |
| services locaux |
| - À proximité du village de Wakefield, réputé pour ses |
| cafés, restaurants, boutiques et activités culturelles. |
| Parc de la Gatineau, offrant randonnée, ski, vélo et |
| patinage en forêt. |
| - Entouré de plusieurs lacs et espaces naturels, parfait |
| pour les amateurs de plein air |
| - À moins de 60 minutes d'Ottawa/Gatineau, parfait pour les |
| escapades ou une résidence principale |
| Informations additionnelles |
| - Propriété vendue entièrement meublée, prête à emménager |
| - Chauffage électrique et poêle à bois pour un confort en |
| toute saison |
| - Grand stationnement pour plusieurs véhicules |
| - Internet haute vitesse disponible dans le secteur, idéal |
| pour le télétravail |






































