Gatineau (Hull)
Description de la propriété
Prix sous l'évaluation municipale ! Saisissez cette opportunité de vivre au 4e étage de « La Tourelle sur le Parc ». Ce magnifique condo de coin est immergé de lumière naturelle grâce à son orientation sud-est, offre un cadre de vie exceptionnel. Avec son vaste salon et ses deux grandes chambres à coucher, ce condo qui est situé en face du parc Jacques-Cartier est idéal pour les gens actif. Situé à moins de 5 minutes d'Ottawa, cette unité profite d'une localisation exceptionnelle. Une espace de stationnement et une casier de rangement sont également inclus.
Détails
Proximité
Autoroute/Voie rapide, Parc-espace vert, Transport en commun
Dimension des pièces
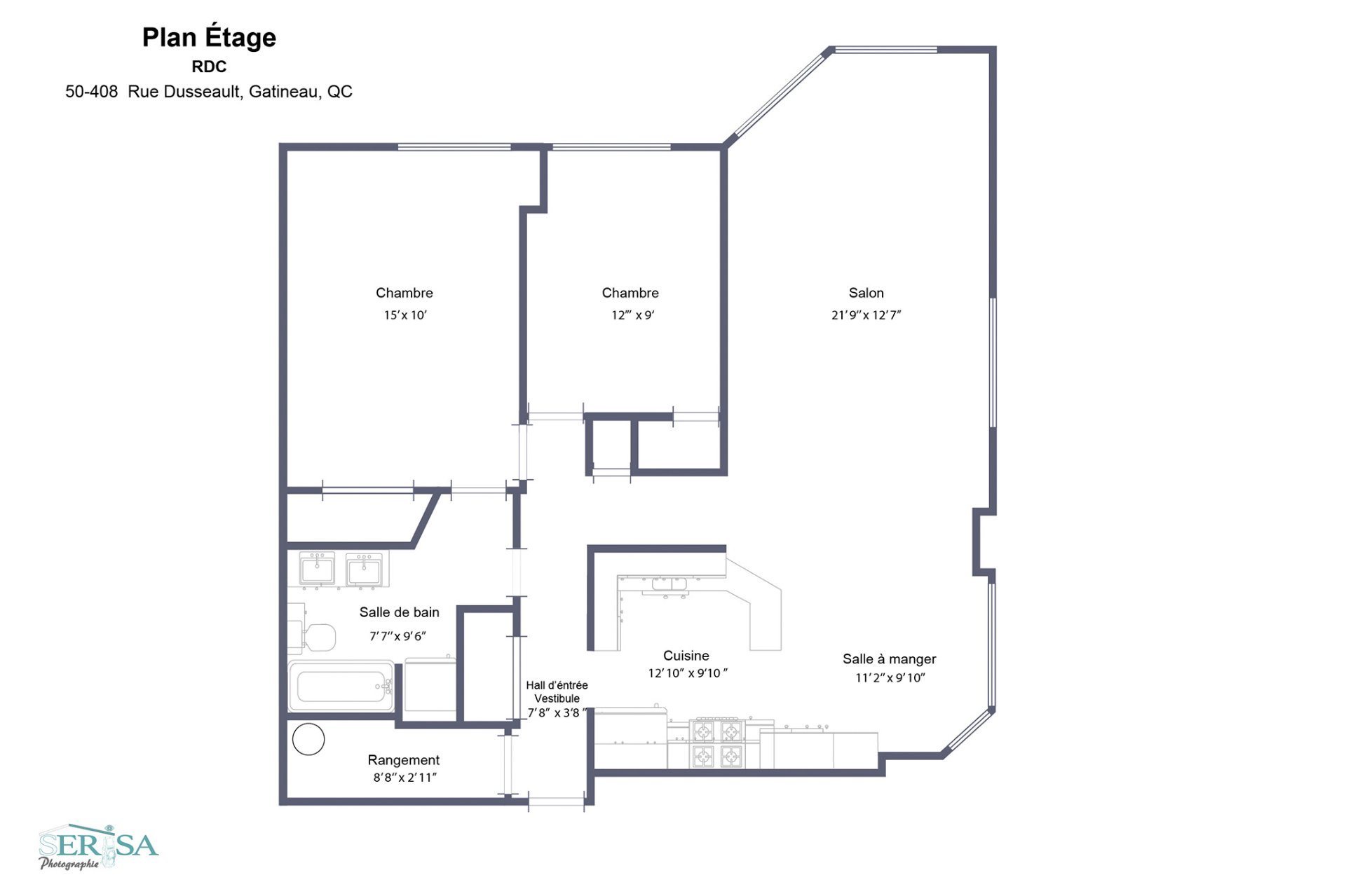
| Pièce | Niveau | Dimensions | Couvre plancher |
|---|---|---|---|
| Hall d'entrée | 4ième étage | 7.8x3.8 P | Céramique |
| Cuisine | 4ième étage | 12.10x9.10 P | Céramique |
| Coin repas | 4ième étage | 11.2x9.10 P | Céramique |
| Salon | 4ième étage | 21.9x12.7 P | Bois |
| Chambre à coucher principale | 4ième étage | 15x10 P | Bois |
| Chambre à coucher | 4ième étage | 12x9 P | Bois |
| Salle de bains | 4ième étage | 7.7x9.6 P | Céramique |
Taxes et dépenses
| Taxes municipales | 3 071 $ |
| Taxes scolaires | 227 $ |
| Frais de copropriété | 6 084 $ |
Bâtiment et intérieur de la propriété
| Frais de copropriété | 6 084 $ |
| Chambres | 2 |
| Salles de bain | 1 |
| Nombre de pièces | 7 |
| Nombre de chambres hors sol | 2 |
| Aire habitable | 86.5 MC |
| Délai d'occupation prévu | 30 jours |
| Éléments inclus lors de la vente | Four, réfrigérateur, laveuse, sécheuse, stores |
| Dimension de la façade du bâtiment | 9.48 M |
| Dimension de la profondeur du bâtiment | 8.69 M |
| Superficie du terrain | 4233 MC |
| Dimension de la façade du terrain | 60.07 M |
| Dimension de la profondeur du terrain | 60.4 M |
| Année de construction | 1986 |
| Évaluation municipale (terrain) | 104 500 $ |
| Évaluation municipale (bâtiment) | 225 100 $ |
| Évaluation municipale (total) | 329 600 $ |
| Année d'évaluation | 2025 |
| Type de copropriété | Divise |
| Étage du condo | 4 |
| Nombre d'étages | 10 |
| Bâtiment irrégulier | Oui |
| Terrain irrégulier | Oui |
| Allée | Asphalte |
| Mode de chauffage | Plinthes électriques |
| Approvisionnement en eau | Municipalité |
| Énergie pour le chauffage | Électricité |
| Équipement disponible | Thermopompe murale |
| Facilité d'accès | Ascenseur |
| Particularités | Accès à l'eau, Navigable |
| Piscine | Creusée |
| Restrictions/Permissions | |
| Services disponibles | |
| Stationnement cadastré (inclus dans le prix) | Allée |
| Stationnement | Extérieur |
| Système d'égouts | Municipal |
| Type de fenêtre | Manivelle |
| Vue | Panoramique |
| Zonage | Résidentiel |












































