Gatineau (Buckingham)
Description de la propriété
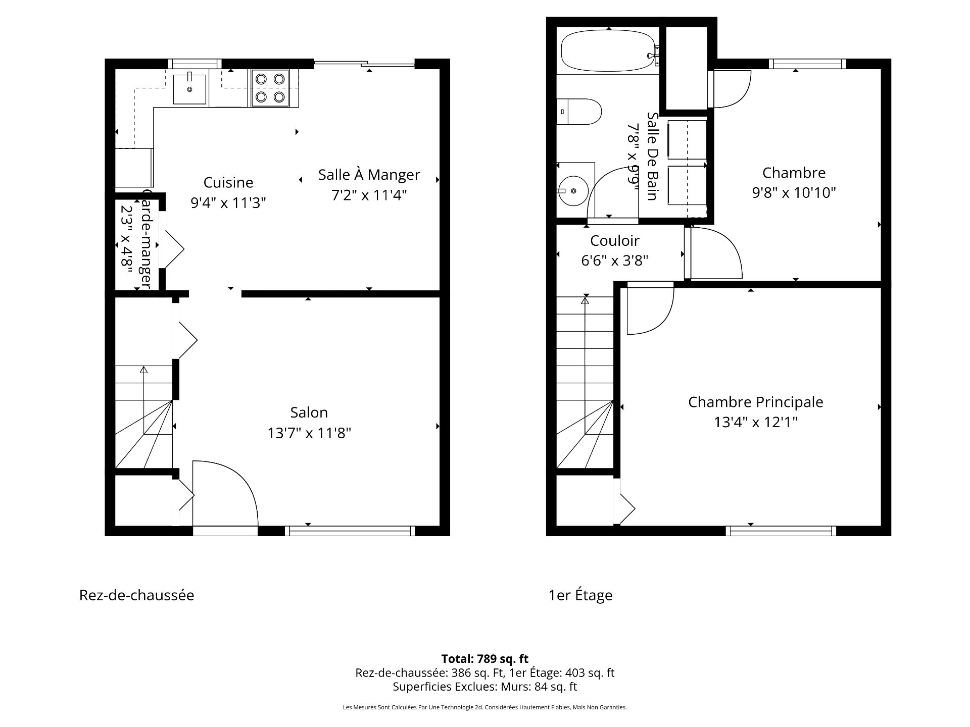
Duplex en vente situé dans le secteur Buckingham, Gatineau. 2 unités de 2 chambres à coucher + 1 salle de bain, unités très propres, revenu de 26 160$ / annuel, spacieux, aucun sous-sol, espace de rangement extérieur, entrée asphaltée et plusieurs espaces de stationnement. Parfait pour investisseur ou propriétaire occupant.
Détails
Proximité
Autoroute/Voie rapide, Parc-espace vert, École primaire, École secondaire, Transport en commun, Garderie/CPE
Taxes et dépenses
| Taxes scolaires | 253 $ |
| Taxes municipales | 3 007 $ |
| Coût d'énergie | 1 250 $ |
Bâtiment et intérieur de la propriété
| Chambres | 2 |
| Salles de bain | 1 |
| Nombre de pièces | 4 |
| Aire habitable | 1894 PC |
| Éléments inclus lors de la vente | 2x chauffe-eau, 2x remises. |
| Dimension de la façade du bâtiment | 11.06 M |
| Dimension de la profondeur du bâtiment | 7.99 M |
| Superficie du terrain | 6098 PC |
| Dimension de la façade du terrain | 18.59 M |
| Dimension de la profondeur du terrain | 30.48 M |
| Année de construction | 1985 |
| Évaluation municipale (terrain) | 127 500 $ |
| Évaluation municipale (bâtiment) | 249 600 $ |
| Évaluation municipale (total) | 377 100 $ |
| Année d'évaluation | 2025 |
| Nombre d'étages | 2 |
| Superficie du bâtiment | 88.36 PC |
| Revenus bruts potentiels | 26 160 $ |
| Allée | Asphalte |
| Aménagement du terrain | Terrain/cour bordé de haies |
| Armoires | Mélamine |
| Mode de chauffage | Plinthes électriques |
| Approvisionnement en eau | Municipalité |
| Énergie pour le chauffage | Électricité |
| Fenêtres | PVC |
| Fondation | Bloc de béton |
| Revêtements | Brique, Vinyle |
| Particularités | Cul-de-sac |
| Sous-sol | Aucun sous-sol |
| Stationnement | Extérieur |
| Système d'égouts | Municipal |
| Type de fenêtre | Coulissante, Porte-fenêtre |
| Toiture | Bardeaux d'asphalte |
| Topographie | En pente, Plat |
| Zonage | Résidentiel |
Addendas
| 119-121 Rue Raby, Gatineau: |
| - Duplex |
| - Secteur: Buckingham |
| - 2x 2 chambres à coucher |
| - 2x 1 salle de bain |
| - Revenu: 26 160$ / annuel |
| - Spacieux |
| - Plancher de bois flottant & céramique |
| - Aucun sous-sol |
| - Chauffe-eau (2017) |
| - Toiture (2023) |
| - 2x remises extérieures |
| - Entrée asphaltée |
| - Plusieurs espaces de stationnement |
| - Cul-de-sac |
| - Près des services essentiels de Buckingham (magasins, |
| écoles, autobus, autoroute) |
| Servitudes sur le terrain - voir certificat de localisation |
| (2020) |


















































