Gatineau (Gatineau)
Description de la propriété
Superbe propriété de 5 chambres à coucher située dans le secteur Gatineau. Concept à aire ouverte, 2 salles de bains, 1 salle d'eau, fenestration abondante, cuisine digne d'un chef avec îlot central, plancher de bois franc & céramique, chambre des maîtres avec walk-in et sous-sol de type walk-out complètement aménagé pouvant servir de logement parental. Terrain privé avec balcon privé. Grand garage simple avec rangement et rangement au sous-sol. Plusieurs espaces de stationnement. Secteur très familial et en demande, une visite s'impose!
Détails
Proximité
Autoroute/Voie rapide, Parc-espace vert, École primaire, École secondaire, Transport en commun, Piste cyclable, Garderie/CPE
Dimension des pièces
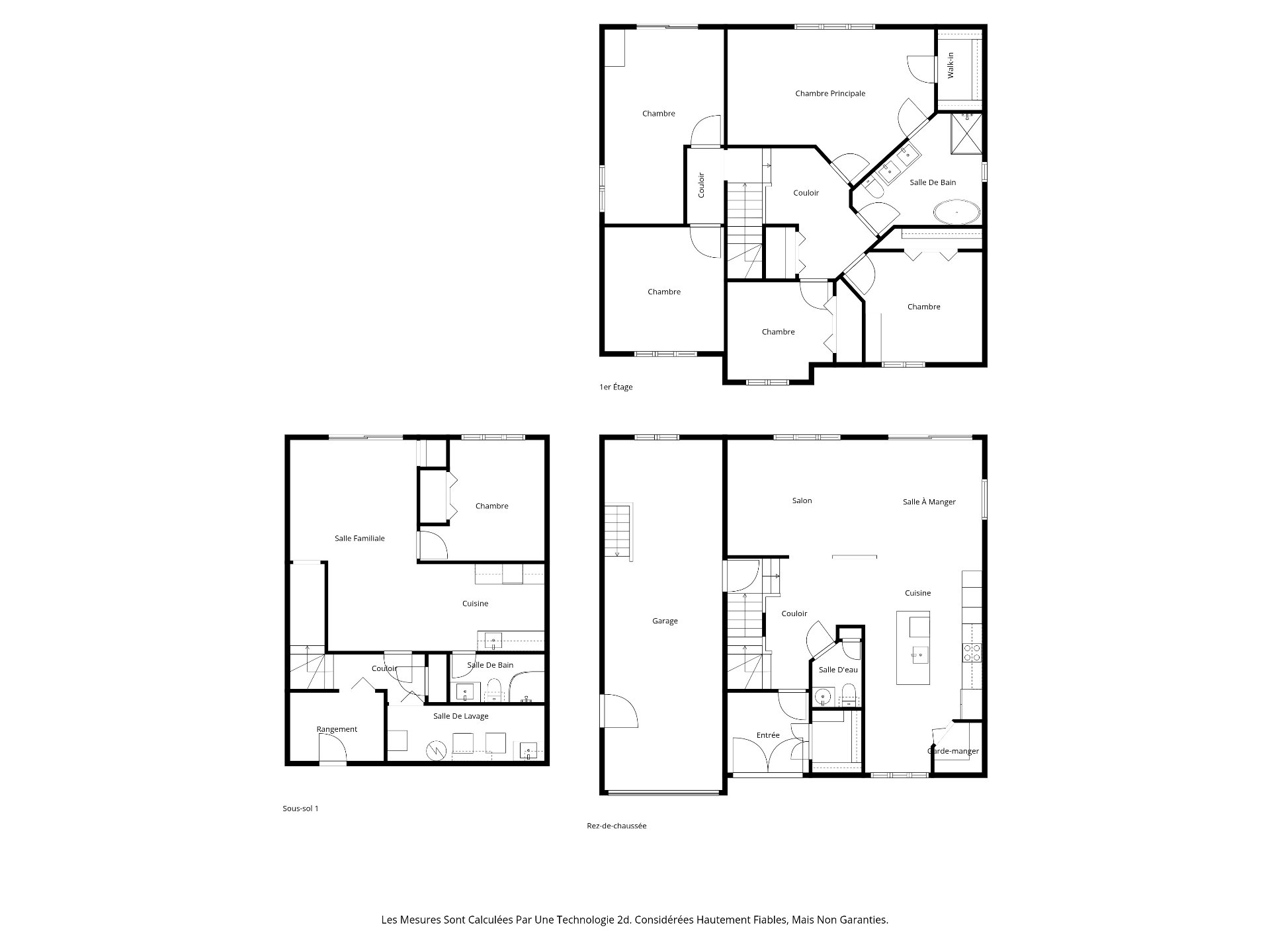
| Pièce | Niveau | Dimensions | Couvre plancher |
|---|---|---|---|
| Hall d'entrée | 1er niveau/RDC | 8.1x8 P | Céramique |
| Rangement | 1er niveau/RDC | 4.7x7 P | Céramique |
| Salle d'eau | 1er niveau/RDC | 5.7x4.7 P | Céramique |
| Cuisine | 1er niveau/RDC | 21.1x11.6 P | Céramique |
| Salle à manger | 1er niveau/RDC | 13.8x10.6 P | Bois |
| Salon | 1er niveau/RDC | 14.8x11.7 P | Bois |
| Chambre à coucher principale | 2ième étage | 19.4x12.2 P | Bois |
| Salle de bains | 2ième étage | 13.6x10.5 P | Céramique |
| Chambre à coucher | 2ième étage | 12.4x11.1 P | Bois |
| Chambre à coucher | 2ième étage | 10.1x10.2 P | Bois |
| Chambre à coucher | 2ième étage | 29.9x12.6 P | Bois |
| Bureau à domicile | 2ième étage | 12.7x12.6 P | Bois |
| Salle de bains | Sous-sol | 10.2x5.2 P | Céramique |
| Rangement | Sous-sol | 8x7.8 P | Béton |
| Atelier | Sous-sol | 16.6x6.10 P | Béton |
| Salle familiale | Sous-sol | 11.8x11.5 P | Plancher flottant |
| Salle à manger | Sous-sol | 8.8x7.9 P | Plancher flottant |
| Chambre à coucher | Sous-sol | 12.3x11.11 P | Tapis |
| Rangement | Sous-sol | 11.4x12.9 P | Béton |
Taxes et dépenses
| Taxes municipales | 6 102 $ |
| Taxes scolaires | 551 $ |
| Coût d'énergie | 1 770 $ |
Bâtiment et intérieur de la propriété
| Chambres | 5 |
| Salles de bain | 2 |
| Salles d'eau | 1 |
| Nombre de pièces | 21 |
| Nombre de chambres hors sol | 4 |
| Nombre de chambres au sous-sol | 1 |
| Aire habitable | 2406 PC |
| Éléments inclus lors de la vente | Stores, tringles à rideaux, rideaux, luminaires, lave-vaisselle, four, micro-onde, plaque de cuisson, réfrigérateur, luminaires, 2 meubles-penderie dans les chambres en haut du garage, fournaise et ouvre-porte automatique du garage. |
| Éléments exclus lors de la vente | Chauffe-eau (location) |
| Superficie du terrain | 5003 PC |
| Dimension de la façade du terrain | 15.24 M |
| Dimension de la profondeur du terrain | 30.5 M |
| Année de construction | 2008 |
| Évaluation municipale (terrain) | 220 800 $ |
| Évaluation municipale (bâtiment) | 569 300 $ |
| Évaluation municipale (total) | 790 100 $ |
| Année d'évaluation | 2026 |
| Allée | Asphalte, Double largeur ou plus |
| Aménagement du terrain | Clôturé, Terrain/cour bordé de haies |
| Mode de chauffage | Air soufflé, Plinthes électriques, Plinthes à convection |
| Approvisionnement en eau | Municipalité |
| Énergie pour le chauffage | Électricité, Gaz naturel |
| Équipement disponible | Système d'alarme, Installation aspirateur central, Porte de garage électrique, Échangeur d'air, Climatiseur mural, Climatiseur central |
| Fenêtres | PVC |
| Fondation | Béton coulé |
| Garage | Attaché, Simple largeur |
| Revêtements | Pierre, Vinyle |
| Restrictions/Permissions | Animaux permis |
| Salle de bains/salle d'eau | Attenante à la chambre principale, Douche indépendante |
| Sous-sol | 6 pieds et plus, Entrée indépendante, Totalement aménagé |
| Stationnement | Extérieur, Au garage |
| Système d'égouts | Municipal |
| Type de fenêtre | Coulissante, Porte-fenêtre, Manivelle |
| Toiture | Bardeaux d'asphalte |
| Topographie | En pente, Plat |
| Zonage | Résidentiel |
Addendas
| 151 Rue du Pradet, Gatineau: |
| - Maison à étage |
| - Secteur: Gatineau |
| - Concept à aire ouverte |
| - 5 chambres à coucher (4+1) |
| - 2 salles de bains (1+1) |
| - 1 salle d'eau |
| - Superbe cuisine avec îlot central |
| - Garde-manger |
| - Plancher de bois franc & céramique (RDC-2e) |
| - Chambres très spacieuses |
| - Chambre des maîtres avec walk-in et accès sdb |
| - Sous-sol complètement aménagé de type walk-out |
| - Aménagé pour logement parental (salon-sm-cuisine-chambre) |
| - Chauffe-eau (2022) |
| - Toiture (2008) |
| - Balcon privé |
| - Terrain clôturé et bordé par des haies |
| - Garage simple |
| - Rangement sous garage |
| - Entrée asphaltée double |
| - Servitude Bell et Hydro-Québec |
| - Secteur très familial et tranquille |
| - Près des services essentiels |































































