Gatineau (Gatineau)
Description de la propriété
Propriété offrant 3 chambres à coucher, une salle de bain complète et une salle d'eau attenante à la chambre principale, idéale pour la vie familiale. Située dans une rue calme et pratique avec deux écoles primaires accessibles à pied. À l'extérieur, cette charmante maison se démarque par son style chaleureux, fenêtres à larges bordures et façade gris pâle élégante. Implantée sur un terrain d'environ 100 x 100 pieds, la cour lumineuse avec clôture blanche, arbres et aménagements floraux crée un espace invitant avec patios et pergola. Grande entrée pouvant accueillir jusqu'à 6 voitures et garage et demi pratique. Une propriété coup de coeur!
Détails
Proximité
Autoroute/Voie rapide, Golf, Hôpital, Parc-espace vert, École primaire, École secondaire, Transport en commun, Piste cyclable, Ski alpin, Ski de fond
Dimension des pièces
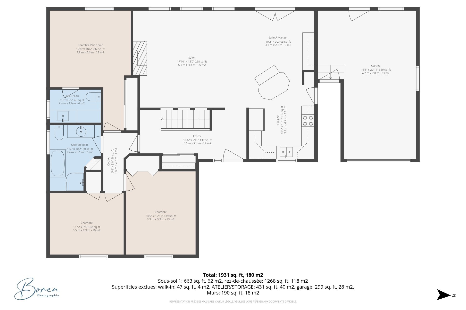
| Pièce | Niveau | Dimensions | Couvre plancher |
|---|---|---|---|
| Hall d'entrée | 1er niveau/RDC | 7.3x5.4 P | Céramique |
| Salon | 1er niveau/RDC | 13.7x15.0 P | Bois |
| Salle à manger | 1er niveau/RDC | 12.0x9.0 P | Bois |
| Cuisine | 1er niveau/RDC | 13.7x10.4 P | Céramique |
| Salle de bains | 1er niveau/RDC | 7.8x12.4 P | Céramique |
| Chambre à coucher principale | 1er niveau/RDC | 18.0x12.5 P | Parqueterie |
| Salle d'eau | 1er niveau/RDC | 5.0x7.8 P | Céramique |
| Chambre à coucher | 1er niveau/RDC | 11.2x13.0 P | Parqueterie |
| Chambre à coucher | 1er niveau/RDC | 11.0x9.5 P | Parqueterie |
| Salle familiale | Sous-sol | 28.9x21.8 P | Plancher flottant |
| Salle de lavage | Sous-sol | 10.4x21.5 P | Béton |
| Rangement | Sous-sol | 14.3x22.0 P | Béton |
Taxes et dépenses
| Taxes municipales | 3 664 $ |
| Taxes scolaires | 317 $ |
Bâtiment et intérieur de la propriété
| Chambres | 3 |
| Salles de bain | 1 |
| Salles d'eau | 1 |
| Nombre de pièces | 13 |
| Nombre de chambres hors sol | 3 |
| Aire habitable | 126.9 MC |
| Éléments inclus lors de la vente | Tous les rideaux, les stores, tous les électroménagers (réfrigérateur, four), laveuse/sécheuse, télévision au sous-sol, vaisselier et l'armoire au mur du vaisselier, les 2 tabourets, le miroir du salon |
| Éléments exclus lors de la vente | Tous les meubles et effets personnels |
| Superficie du terrain | 901.2 MC |
| Dimension de la façade du terrain | 30.48 M |
| Dimension de la profondeur du terrain | 29.41 M |
| Année de construction | 1975 |
| Évaluation municipale (terrain) | 237 800 $ |
| Évaluation municipale (bâtiment) | 239 100 $ |
| Évaluation municipale (total) | 476 900 $ |
| Année d'évaluation | 2026 |
| Superficie du bâtiment | 1268 PC |
| Allée | Asphalte |
| Aménagement du terrain | Clôturé, Paysager, Terrain/cour bordé de haies |
| Mode de chauffage | Plinthes à convection, Plinthes électriques |
| Approvisionnement en eau | Municipalité |
| Énergie pour le chauffage | Électricité |
| Équipement disponible | Installation aspirateur central, Thermopompe murale |
| Fenêtres | PVC |
| Fondation | Béton coulé |
| Foyers-poêles | Foyer au bois |
| Garage | Attaché |
| Particularités | Boisé |
| Salle de bains/salle d'eau | Attenante à la chambre principale, Baignoire thermo-masseur, Douche indépendante |
| Sous-sol | Totalement aménagé |
| Stationnement | Extérieur, Au garage |
| Système d'égouts | Municipal |
| Type de fenêtre | Guillotine, Oscillo-battant, Manivelle |
| Toiture | Bardeaux d'asphalte |
| Topographie | Plat |
| Zonage | Résidentiel |












































