L'Ange-Gardien
Après TPS/TVQ et remboursements si applicable
Description de la propriété
Maison de prestige dans le magnifique secteur de L'ange-Gardien. Tout est pensé pour y avoir votre propriété de rêve. Cuisine haute game, sous-sol fini, escalier en érable , garage triple, douche italienne sur mesure SDB RDC, plafonds cathédrale dans la salle familiale RDC, Foyer au gaz avec boite de cheminée intérieur maçonnerie et bien plus. Situé à quelques pas d'une nouvelle école primaire et de de l'autoroute 50, le magnifique projet Vol-à-voile vous offre aussi l'opportunité de créer/modifier votre propre propriété, soit avec Alaro prestige de A à Z ou avec tâches partagées! Un rêve devenu réalité! Terrain #49 - Voir addenda -
Détails
Proximité
Autoroute/Voie rapide, École primaire
Dimension des pièces
| Pièce | Niveau | Dimensions | Couvre plancher |
|---|---|---|---|
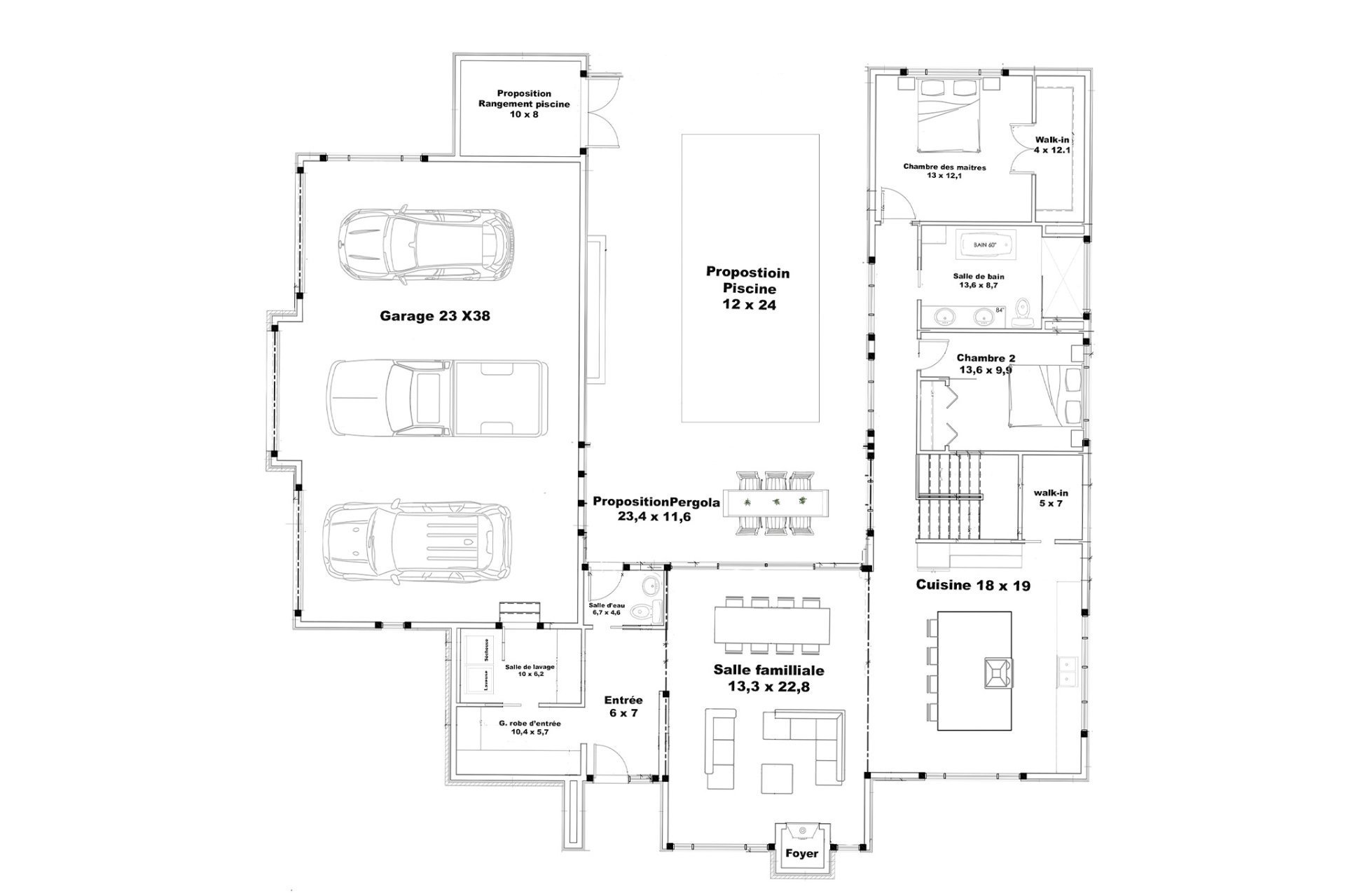
| Hall d'entrée | 1er niveau/RDC | 6.0x7.0 P | Céramique |
| Salle de lavage | 1er niveau/RDC | 10.0x6.2 P | Céramique |
| Salle d'eau | 1er niveau/RDC | 6.7x4.6 P | Céramique |
| Salle familiale | 1er niveau/RDC | 13.3x22.8 P | Bois |
| Cuisine | 1er niveau/RDC | 18.0x19.0 P | Céramique |
| Chambre à coucher | 1er niveau/RDC | 13.6x9.9 P | Bois |
| Chambre à coucher principale | 1er niveau/RDC | 13.0x12.1 P | Bois |
| Salle de bains | 1er niveau/RDC | 13.6x8.7 P | Céramique |
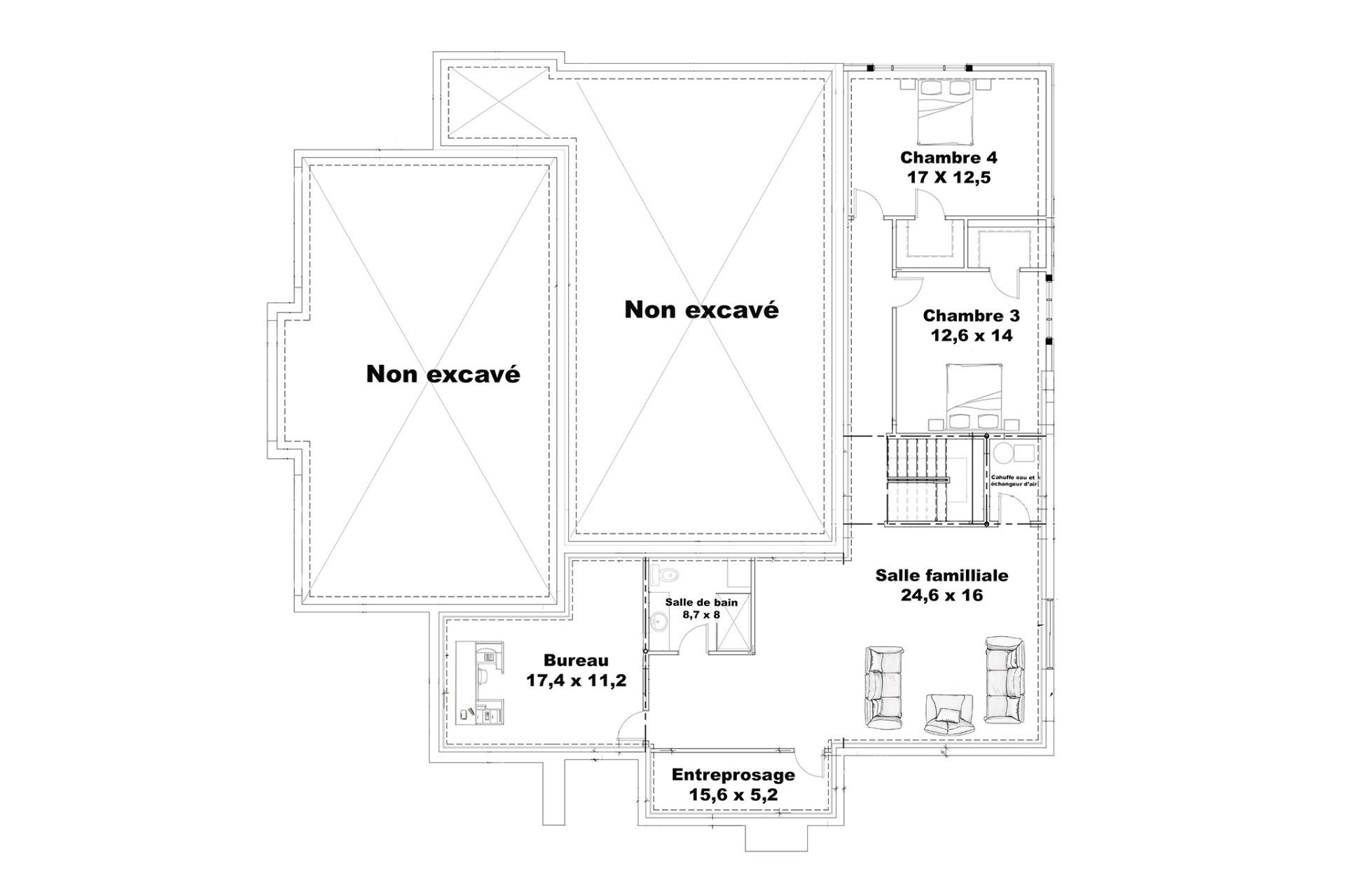
| Chambre à coucher | Sous-sol | 17.0x12.5 P | Vinyle |
| Chambre à coucher | Sous-sol | 12.6x14.0 P | Vinyle |
| Salle familiale | Sous-sol | 24.6x16.0 P | Vinyle |
| Bureau à domicile | Sous-sol | 17.4x11.2 P | Vinyle |
| Salle de bains | Sous-sol | 8.7x8.0 P | Céramique |
| Entreposage | Sous-sol | 15.6x5.2 P | Vinyle |
Taxes et dépenses
| Taxes municipales | 542 $ |
| Taxes scolaires | 62 $ |
Bâtiment et intérieur de la propriété
| Chambres | 4 |
| Salles de bain | 2 |
| Salles d'eau | 1 |
| Nombre de pièces | 17 |
| Nombre de chambres hors sol | 2 |
| Nombre de chambres au sous-sol | 2 |
| Aire habitable | 1807 PC |
| Délai d'occupation prévu | 120 jours |
| Éléments inclus lors de la vente | Façade fibrociment et 3 autres côtés vinyle Bois franc et céramique pour certaines pièces Escalier en érable Vinyle Sous-sol et Céramique salle de bain Niches pour les douches Douche italienne sur mesure salle de bain RDC Fournaise / climatiseur centrale |
| Éléments exclus lors de la vente | - piscine et pergola - Latte de pin et poutre de bois massif salle familial |
| Dimension de la façade du bâtiment | 66.5 P |
| Dimension de la profondeur du bâtiment | 65.2 P |
| Superficie du terrain | 4571 MC |
| Évaluation municipale (terrain) | 112 900 $ |
| Évaluation municipale (bâtiment) | 1 $ |
| Évaluation municipale (total) | 112 901 $ |
| Année d'évaluation | 2025 |
| Code année construction | À construire |
| Superficie du bâtiment | 2791 PC |
| Allée | Non pavée |
| Armoires | Polyester |
| Mode de chauffage | Air soufflé |
| Approvisionnement en eau | Puits artésien |
| Énergie pour le chauffage | Électricité |
| Équipement disponible | Climatiseur central, Échangeur d'air |
| Fenêtres | PVC |
| Fondation | Béton coulé |
| Foyers-poêles | Foyer au gaz |
| Garage | Attaché |
| Revêtements | Vinyle |
| Particularités | Boisé |
| Sous-sol | 6 pieds et plus, Totalement aménagé |
| Stationnement | Extérieur, Au garage |
| Système d'égouts | Champ d'épuration, Fosse septique |
| Type de fenêtre | Coulissante, Manivelle |
| Toiture | Bardeaux d'asphalte |
| Zonage | Résidentiel |
Addendas
| - Depuis 1992 dans le domaine de la construction, Alaro |
| Prestige a su se démarquer. |
| - 3 autres modèles déjà créés pour vous ( Aly, Eliot et |
| Théo) |
| - Terrains dans le projet Vol à voile, a quelques minutes |
| de marche d'une école primaire. |
| - Plusieurs terrains de disponibles avec prix différents. |
| - Terrains privés et boisés. |
| - Créez votre propre modèle et Alaro Prestige s'occupe de |
| tout. |
| - Option d'avoir les tâches partagées durant la |
| construction. |
| - Autre projet disponible - Projet Boréal - |
| infos projets : (informez-vous pour les prix) |
| ALY |
| Ce superbe plain-pied d'environ 1540 pi2 saura en charmer |
| plusieurs! Vous y trouverez beaucoup de rangement dans |
| chacune des pièces. |
| La douche, de type Italienne, dans la salle de bain |
| principale est l'un des atouts de cette demeure. De plus, |
| vous y trouverez 3 chambres sur le même plancher, 1 salle |
| d'eau, 1 grand walk-in à l'entrée principale et une entrée |
| séparée menant au garage qui donne sur un 2e garde-robe. |
| La cuisine a également un grand garde-manger fermé pour |
| maximiser votre espace. Nous vous proposons ici un |
| aménagement optionnel au S-S, une chambre et une SDB |
| complète supplémentaire, ainsi qu'une salle familiale à |
| faire rêver! |
| ---- |
| ELIOTT |
| Le modèle ELIOTT est une magnifique maison à 2 étages, le |
| rez-de-chaussée et l'étage totalisant un peu plus de 2150 |
| pi2 sauront plaire à plusieurs. |
| L'espace de vie est spacieux avec cuisine, salle de séjour |
| et salle à manger à aire ouverte. Votre terrasse arrière |
| sera la continuité de votre grande cuisine et de votre |
| séjour, elle pourra vous faire profiter de l'extérieur, |
| beau temps, mauvais temps comme elle est couverte! |
| À l'étage, on compte la suite des maîtres avec la salle de |
| bain privée et un walk-in, 2 chambres, 1 bureau et 1 salle |
| de bain supplémentaire. Elle est dotée d'un garage simple |
| et le sous-sol offre plusieurs possibilités pour y aménager |
| une salle de gym, cinéma maison ou une salle de jeux pour |
| petits et grands. |
| Que dire de ce porche d'entrée qui est à couper le souffle |
| avec ces accents de bois, quoi de mieux pour souhaiter la |
| bienvenue dans votre demeure! |
| ---- |
| THÉO |
| Arborant un style ''farmhouse'' mais ses touches plus |
| contemporaines la distinguent et la rend unique! Le modèle |
| THÉO compte environ 1800pi2 pour les 2 étages principaux et |
| les nombreuses fenêtres procurent une belle luminosité. |
| La vaste cuisine sera certainement au centre de nombreux |
| repas pris entre famille et amis. Avec ses 3 chambres à |
| l'étage s'ajoutent 1 salle de bain et la salle de lavage, |
| ce qui laisse le sous-sol libre pour y aménager tout ce |
| dont vous rêvez! |
| Ce modèle a également un garage simple, avec la double |
| entrée qui mène à un grand walk-in commun pour maximiser le |
| rangement. Vous pourrez également profiter d'une terrasse |
| arrière couverte. |
| *Terrain vendu sans garantie légale aux risques et périls |
| de l'acheteur |
| * Prix peu différé selon le type de sol et terrain choisi. |
| Pour dynamitage et autres. |
| * Photos d'inspiration à titre indicatif |













