Gatineau (Gatineau)
Description de la propriété
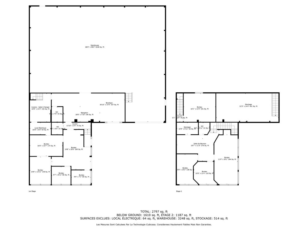
À qui la chance! Magnifique bâtiment situé dans le secteur de Gatineau, à proximité de tous les services essentiels. Un environnement idéal pour faire prospérer et évoluer votre entreprise. Ce bien polyvalent offre la possibilité de combiner location et entreposage sous un même toit, avec deux étages de bureaux modernes, un petit magasin accueillant et un vaste entrepôt. Les propriétaires actuels, en quête de plus d'espace pour développer leur propre entreprise, offrent cette opportunité unique. À saisir, une chance rare!
Détails
Proximité
Autoroute/Voie rapide, Transport en commun
Taxes et dépenses
| Taxes municipales | 24 082 $ |
| Taxes scolaires | 644 $ |
Bâtiment et intérieur de la propriété
| Délai d'occupation prévu | 90 jours |
| Éléments inclus lors de la vente | Fournaise au gaz (2), A/C central (2), A/C mural, luminaires, chauffe-eau, 2 comptoirs de service, système d'alarme. |
| Éléments exclus lors de la vente | Système de téléphone et caméras, étagères et tout le contenu, mobiliers, toiles solaires. |
| Superficie du terrain | 929 MC |
| Dimension de la façade du terrain | 24.38 M |
| Dimension de la profondeur du terrain | 38.1 M |
| Année de construction | 1986 |
| Évaluation municipale (terrain) | 400 000 $ |
| Évaluation municipale (bâtiment) | 423 100 $ |
| Évaluation municipale (total) | 823 100 $ |
| Année d'évaluation | 2025 |
| Nombre d'étages | 2 |
| Superficie du bâtiment | 613.5 MC |
| Approvisionnement en eau | Municipalité |
| Sous-sol | Aucun sous-sol |
| Système d'égouts | Municipal |
| Type de commerce/Industrie | Detail, Service, Grossiste, Fabrication, Entreposage |
| Zonage | Commercial |




































