Gatineau (Aylmer)
Description de la propriété
Découvrez l'élégance moderne dans cette superbe demeure contemporaine construite en 2020, située au coeur de Wychwood. Offrant près de 2 200 pc, cette résidence lumineuse se distingue par son extérieur sophistiqué en pierre et bois ainsi qu'une configuration polyvalente de 4+2 chambres. L'espace de vie à aire ouverte, complété par un sous-sol entièrement aménagé et une cour privée avec pergola stylée, crée un cadre de vie exceptionnel. Parfaitement située près des meilleures écoles, parcs et services vibrants de Gatineau, cette maison offre l'équilibre idéal entre luxe et confort pour une famille active.
Détails
Proximité
Golf, Parc-espace vert, École primaire, École secondaire, Transport en commun, Piste cyclable, Garderie/CPE
Dimension des pièces
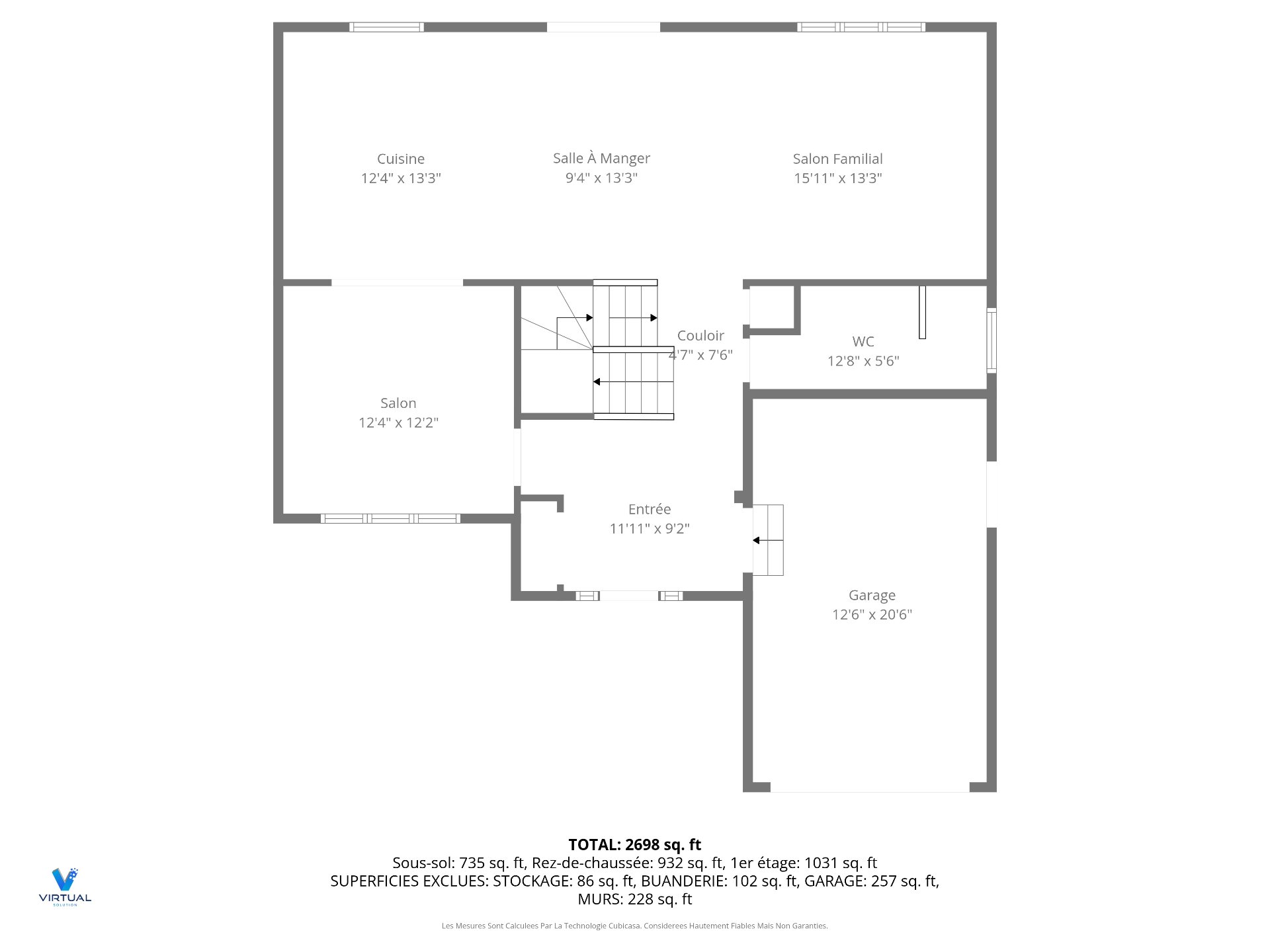
| Pièce | Niveau | Dimensions | Couvre plancher |
|---|---|---|---|
| Hall d'entrée | 1er niveau/RDC | 11.11x9.2 P | Céramique |
| Salon | 1er niveau/RDC | 12.4x12.2 P | Bois |
| Cuisine | 1er niveau/RDC | 12.4x13.3 P | Céramique |
| Salle à manger | 1er niveau/RDC | 9.4x13.3 P | Bois |
| Salle familiale | 1er niveau/RDC | 15.11x13.3 P | Bois |
| Salle d'eau | 1er niveau/RDC | 12.8x5.6 P | Céramique |
| Chambre à coucher principale | 2ième étage | 12.8x15.10 P | Bois |
| Salle de bains | 2ième étage | 12.8x10.6 P | Céramique |
| Chambre à coucher | 2ième étage | 12.4x12.2 P | Bois |
| Chambre à coucher | 2ième étage | 11.6x9.6 P | Bois |
| Chambre à coucher | 2ième étage | 11.11x9.2 P | Bois |
| Salle de bains | 2ième étage | 6.10x9.6 P | Céramique |
| Salle de lavage | 2ième étage | 5.7x3.3 P | Bois |
| Salle de jeux | Sous-sol | 17.6x16.8 P | Plancher flottant |
| Chambre à coucher | Sous-sol | 12.4x16 P | Plancher flottant |
| Chambre à coucher | Sous-sol | 12.4x9.5 P | Plancher flottant |
| Salle de bains | Sous-sol | 7.1x8.9 P | Céramique |
| Salle mécanique | Sous-sol | 12.8x10.1 P | Béton |
| Rangement | Sous-sol | 10.10x9.2 P | Béton |
Taxes et dépenses
| Taxes municipales | 7 127 $ |
| Taxes scolaires | 655 $ |
| Coût d'énergie | 2 227 $ |
Bâtiment et intérieur de la propriété
| Chambres | 6 |
| Salles de bain | 3 |
| Salles d'eau | 1 |
| Nombre de pièces | 20 |
| Nombre de chambres hors sol | 4 |
| Nombre de chambres au sous-sol | 2 |
| Aire habitable | 2196 PC |
| Délai d'occupation prévu | 60 jours |
| Éléments inclus lors de la vente | Réfrigérateur, cuisinière, lave-vaisselle, réfrigérateur à vin, laveuse, sécheuse, stores, rideaux et tringles, pergola, fournaise. |
| Éléments exclus lors de la vente | Chauffe-eau en location. |
| Dimension de la façade du bâtiment | 11.91 M |
| Dimension de la profondeur du bâtiment | 12.82 M |
| Superficie du terrain | 615.1 MC |
| Dimension de la façade du terrain | 27.23 M |
| Dimension de la profondeur du terrain | 49.3 M |
| Année de construction | 2020 |
| Évaluation municipale (terrain) | 213 000 $ |
| Évaluation municipale (bâtiment) | 738 400 $ |
| Évaluation municipale (total) | 951 400 $ |
| Année d'évaluation | 2026 |
| Bâtiment irrégulier | Oui |
| Superficie du bâtiment | 119.67 MC |
| Terrain irrégulier | Oui |
| Allée | Asphalte, Double largeur ou plus |
| Aménagement du terrain | Clôturé, Paysager |
| Mode de chauffage | Air soufflé |
| Approvisionnement en eau | Municipalité |
| Énergie pour le chauffage | Gaz naturel |
| Équipement disponible | Installation aspirateur central, Porte de garage électrique, Échangeur d'air, Climatiseur central, Borne de recharge - niveau 2 |
| Fenêtres | PVC |
| Fondation | Béton coulé |
| Garage | Intégré, Simple largeur |
| Appareils en location | Chauffe-eau |
| Revêtements | Fibre pressée, Pierre |
| Particularités | Cul-de-sac |
| Salle de bains/salle d'eau | Douche indépendante |
| Sous-sol | 6 pieds et plus, Totalement aménagé |
| Stationnement | Extérieur, Au garage |
| Système d'égouts | Municipal |
| Type de fenêtre | Coulissante, Manivelle |
| Toiture | Bardeaux d'asphalte |
| Topographie | Plat |
| Zonage | Résidentiel |
Addendas
| + Maison à deux étages de construction 2020 offrant 2 196 |
| pi² d'espace de vie raffiné. |
| + Façade contemporaine prestigieuse alliant pierre de |
| qualité et revêtement horizontal. |
| + Configuration spacieuse de 4+2 chambres, dont quatre au |
| deuxième niveau et deux au sous-sol. |
| + Trois salles de bain complètes plus une salle d'eau |
| pratique pour faciliter la routine matinale des familles |
| actives. |
| + Rez-de-chaussée à aire ouverte baigné de lumière |
| naturelle, idéal pour recevoir et pour la vie de famille au |
| quotidien. |
| + Finitions haut de gamme et fenestration abondante créant |
| une ambiance chaleureuse pour vos soirées entre amis. |
| + Sous-sol entièrement fini proposant une vaste salle |
| familiale, des chambres d'invités et du rangement--parfait |
| pour un cinéma maison ou une salle de jeux. |
| + Garage simple intégré avec entrée asphaltée et excellente |
| présence de rue. |
| + Cour arrière privée et clôturée avec terrasse, rampes en |
| verre et pergola en bois sur patio de pierre. Clôture |
| ajoutée en 2024 et entrée élargie en 2025. |
| + Imaginez vos repas d'été sous la pergola ou un café |
| paisible le matin dans votre oasis privée. |
| + Aménagement paysager à faible entretien incluant des |
| plates-bandes bordées de murets de pierre. |
| + Située dans le quartier prisé de Wychwood, reconnu pour |
| sa tranquillité et son esprit communautaire où les voisins |
| deviennent des amis. |
| + À quelques minutes de la rivière des Outaouais, des |
| sentiers cyclables et des espaces verts pour un mode de vie |
| actif. |
| + Proximité immédiate des écoles renommées, des garderies |
| et des complexes sportifs, simplifiant la logistique |
| familiale. |
| + Accès rapide aux boutiques, restaurants gourmets et |
| terrasses branchées du secteur Aylmer. |
| + Emplacement idéal pour les navetteurs, à courte distance |
| du centre-ville de Gatineau et du pont Champlain vers |
| Ottawa. |
| + Propriété clé en main offrant une qualité de vie |
| exceptionnelle où vous pourrez créer des souvenirs dès le |
| premier jour. |



































































