Gatineau (Hull)
Description de la propriété
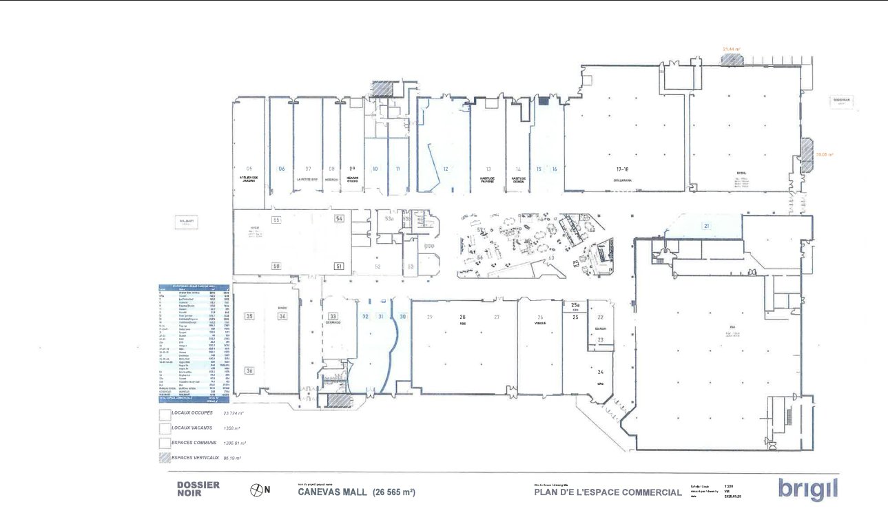
Location d'espaces commerciaux - Situé dans un emplacement exceptionnel au coeur de Gatineau, cet immeuble offre des espaces commerciaux modernes et fonctionnels, idéals pour bureaux, cliniques ou commerces de proximité. Profitez d'une visibilité remarquable sur St-Joseph et d'un accès facile aux principales artères et aux transports en commun. Chaque espace est lumineux, bien agencé et peut être adapté selon vos besoins. Des places de stationnement sont également disponibles pour vos clients et employés, garantissant confort et accessibilité. Ne manquez pas cette occasion d'implanter votre entreprise dans un emplacement stratégique et prisé.
Détails
Taxes et dépenses
| Taxes municipales | 1 068 361 $ |
Bâtiment et intérieur de la propriété
| Délai d'occupation prévu | 15 jours |
| Superficie du terrain | 63118 MC |
| Évaluation municipale (terrain) | 19 095 600 $ |
| Évaluation municipale (bâtiment) | 4 957 700 $ |
| Évaluation municipale (total) | 24 053 300 $ |
| Année d'évaluation | 2025 |
| Superficie du bâtiment | 3251 MC |
| Zonage | Commercial |











