Gatineau (Hull)
Description de la propriété
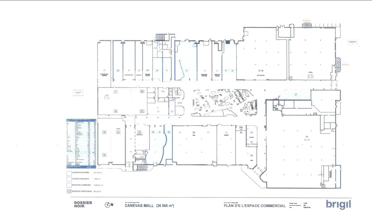
Location d'espaces commerciaux - Situé au coeur de Gatineau, cet immeuble neuf offre des espaces commerciaux modernes et fonctionnels, idéals pour bureaux, cliniques ou commerces de proximité. Profitez d'une visibilité exceptionnelle sur St-Joseph et d'un accès facile aux principales artères et aux transports en commun. Chaque espace est lumineux, bien agencé et peut être adapté selon vos besoins. L'immeuble dispose également de stationnement pour vos clients et employés, garantissant confort et accessibilité. Ne manquez pas cette occasion unique d'implanter votre entreprise dans un emplacement stratégique et en pleine croissance.
Détails
Taxes et dépenses
| Taxes municipales | 1 068 361 $ |
Bâtiment et intérieur de la propriété
| Délai d'occupation prévu | 15 jours |
| Superficie du terrain | 63118 MC |
| Évaluation municipale (terrain) | 19 095 600 $ |
| Évaluation municipale (bâtiment) | 4 957 700 $ |
| Évaluation municipale (total) | 24 053 300 $ |
| Année d'évaluation | 2025 |
| Superficie du bâtiment | 210 MC |
| Zonage | Commercial |

















































































