795 000 $
252 Ch. du Lac-des-Quatre-Chemins
Saint-André-Avellin
Saint-André-Avellin
Type
Maison à étages
Chambres
3
Aire habitable
1297 PC
Salles de bain
2
MLS® 26589107
Description de la propriété
Wow! absolument magnifique ! Niché au bout d'une route de campagne, au bord d'un lac paisible, ce petit coin de paradis offre une tranquillité exceptionnelle et une vue imprenable sur le lac. Les jardins paysagers sont conçus pour un entretien facile, et la maison présente des finitions modernes et élégantes. Entièrement équipée de tout ce dont vous avez besoin -- prête à emménager. Tout est à jour !
Détails
Proximité
Parc-espace vert
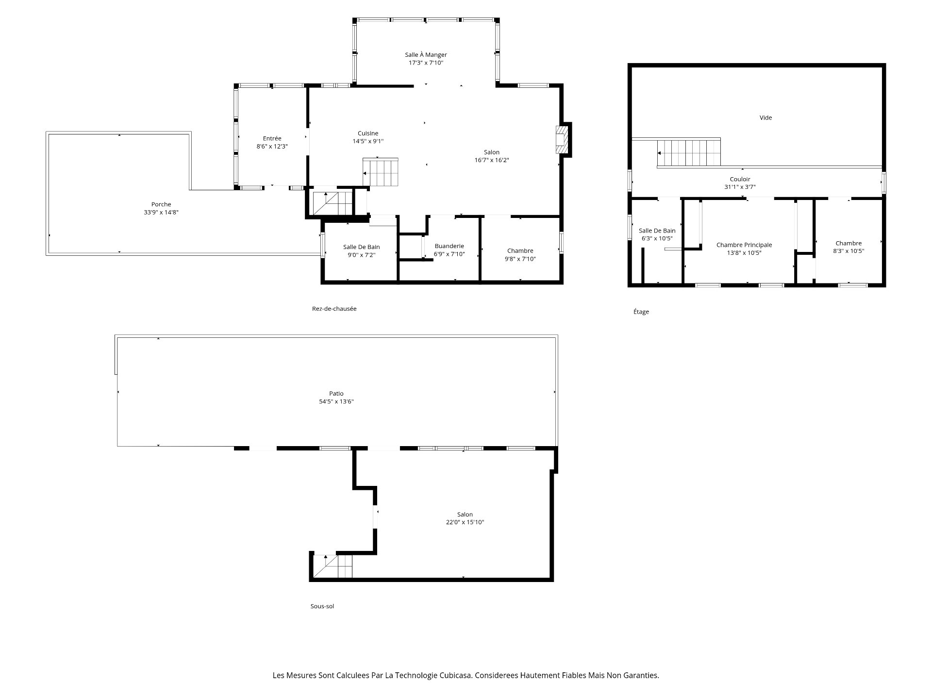
Dimension des pièces
| Pièce | Niveau | Dimensions | Couvre plancher |
|---|---|---|---|
| Entréé Vistibule | 1er niveau/RDC | 12.3x8.6 P | Linoléum |
| Cuisine | 1er niveau/RDC | 16.5x9.1 P | Céramique |
| Salle à manger | 1er niveau/RDC | 17.3x7.10 P | Bois |
| Salon | 1er niveau/RDC | 16.7x16.2 P | Bois |
| Chambre à coucher | 1er niveau/RDC | 9.8x7.10 P | Bois |
| Salle de bains | 1er niveau/RDC | 9x7.2 P | Céramique |
| Salle de lavage | 1er niveau/RDC | 6.9x7.10 P | Céramique |
| Chambre à coucher principale | 2ième étage | 13.8x10.5 P | Bois |
| Chambre à coucher | 2ième étage | 8.3x10.5 P | Bois |
| Salle de bains | 2ième étage | 6.3x10.5 P | Céramique |
Taxes et dépenses
| Taxes municipales | 3 827 $ |
| Taxes scolaires | 228 $ |
Bâtiment et intérieur de la propriété
| Chambres | 3 |
| Salles de bain | 2 |
| Nombre de pièces | 12 |
| Nombre de chambres hors sol | 3 |
| Aire habitable | 1297 PC |
| Délai d'occupation prévu | 60 jours |
| Éléments inclus lors de la vente | Tous les appareils : réfrigérateurs (2), plaque de cuisson à induction, doubles fours à convection, lave-vaisselle, micro-ondes, petit cellier à vin, laveuse/sécheuse neufs (2025), outils de cheminée et bois restant, climatiseur portable, aspirateur centr |
| Éléments exclus lors de la vente | Contenu du garage et outils dans la chambre d'entreposage au sous-sol et effets personnels. |
| Dimension de la façade du bâtiment | 40 P |
| Dimension de la profondeur du bâtiment | 34 P |
| Superficie du terrain | 12938 PC |
| Dimension de la façade du terrain | 137 P |
| Dimension de la profondeur du terrain | 102 P |
| Année de construction | 1975 |
| Évaluation municipale (terrain) | 48 200 $ |
| Évaluation municipale (bâtiment) | 246 700 $ |
| Évaluation municipale (total) | 294 900 $ |
| Année d'évaluation | 2025 |
| Bâtiment irrégulier | Oui |
| Superficie du bâtiment | 1095 PC |
| Terrain irrégulier | Oui |
| Allée | Non pavée |
| Aménagement du terrain | Paysager |
| Armoires | Bois |
| Mode de chauffage | Autre, Plinthes à convection |
| Approvisionnement en eau | Puits de surface |
| Énergie pour le chauffage | Autre, Électricité, Bois |
| Équipement disponible | Meublé, Thermopompe murale, Porte de garage électrique |
| Fenêtres | PVC |
| Fondation | Bloc de béton |
| Foyers-poêles | Autre, Foyer au bois |
| Garage | Détaché, Simple largeur |
| Revêtements | Bois |
| Particularités | Aucun voisin à l'arrière, Navigable, Bordé par l'eau, Cul-de-sac, Boisé |
| Restrictions/Permissions | Non-fumeurs |
| Sous-sol | 6 pieds et plus, Entrée indépendante, Autre, Totalement aménagé |
| Stationnement | Extérieur, Au garage |
| Système d'égouts | Champ d'épuration, Fosse septique |
| Toiture | Autre |
| Topographie | En pente |
| Vue | Sur l'eau, Sur la montagne |
| Zonage | Récréotouristique, Résidentiel |
Addendas
| Améliorations récentes |
| 2025 : Nouvelle laveuse et sécheuse |
| 2023 : Toiture en métal neuve sur la maison et le garage |
| (50 000 $) -- garantie de 50 ans |
| 2023 : Isolation du grenier refaite (16 000 $) |
| 2020 : Nouvelle thermopompe |
| 2023 : Nouveau quai ajouté (4 000 $) |
| 2020/2023 : Travaux de ciment réalisés |
| Équipements inclus |
| Kayak double |
| Deux planches à pagaie |
| Chaloupe avec moteur électrique |
| 2023 - Pédalo |
| 2014 Spa 8 personnes -- faire attention lors du remplissage |
| du spa, |
| Rénovations majeures (2014--2017) |
| Fenêtres (2014--2017) |
| Plomberie et panneau électrique (2014) |
| Murs, plafonds et planchers (2014) |
| Rampes, portes, escaliers et moulures |
| Salles de bain et buanderie |
| Cuisine moderne rénovée avec électroménagers en acier |
| inoxydable |
| Garage et solarium améliorés |
| Éclairage DEL partout |
| Aménagement paysager, murs et plusieurs patios |
| 2019 nouveau certificat de localisation |

















































































