Lochaber-Partie-Ouest
Property description
Stunning multi-generational home in Lochaber-Ouest, bordering L'Ange-Gardien. Main house (1,465 sq. ft.) features 2 bedrooms, vast living areas, 2 living rooms, kitchen with large island, and attached garage. The bright walk-out basement suite includes a private entrance, 1 bedroom, and a wood fireplace. Separate laundry for each unit. Private 2.5-acre lot with detached garage and RV parking. Bionest septic system (4-bedroom capacity) installed in 2019. Perfect for multi-generational living or extra income!
Details
Located near
Highway, Park - green area, Elementary school, Daycare centre
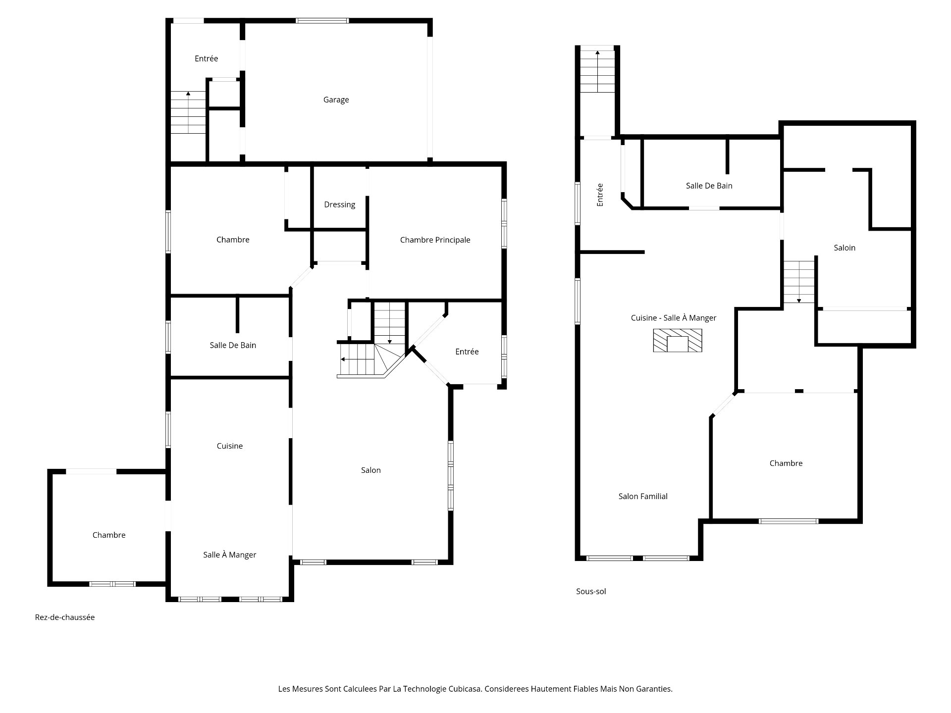
Room dimension
| Room | Floor | Dimensions | Floor covering |
|---|---|---|---|
| Kitchen | Basement | 8.3x11.7 P | Ceramic tiles |
| Dining room | Basement | 12.5x15.0 P | Ceramic tiles |
| Living room | Basement | 12.3x12.5 P | cork flooring |
| Master bedroom | Basement | 13.9x14.9 P | cork flooring |
| Bathroom | Basement | 6.2x12.7 P | Ceramic tiles |
| Hallway | Basement | 5.1x7.9 P | Ceramic tiles |
| Kitchen | 1st level/Ground floor | 10.5x11.8 P | Ceramic tiles |
| Dining room | 1st level/Ground floor | 9.5x11.8 P | Ceramic tiles |
| Living room | 1st level/Ground floor | 15.6x16.3 P | Wood |
| Master bedroom | 1st level/Ground floor | 12.9x13.5 P | Wood |
| Bedroom | 1st level/Ground floor | 12.0x13.6 P | Wood |
| Home office | 1st level/Ground floor | 11.1x11.4 P | Wood |
| Bathroom | 1st level/Ground floor | 7.8x11.8 P | Ceramic tiles |
| Hallway | 1st level/Ground floor | 7.2x8.2 P | Ceramic tiles |
| Family room | Basement | 8.2x9.7 P | Ceramic tiles |
| Storage | Platform at the top of the garage | 7.9x14.3 P | Wood |
Taxes and expenses
| Municipal Taxes | $3,770 |
| School taxes | $400 |
Building and interior of the property
| Bedrooms | 2 |
| Bathrooms | 1 |
| Number of rooms | 9 |
| Number of rooms above ground | 2 |
| Living area | 136.43 SM |
| Expected delay of occupancy | 90 days |
| Items included in the sale | Light fixtures, blinds, curtain rods, curtains in the main unit, dishwasher, two kitchen island stools, wooden wall cabinet in the main floor music room, alarm system (not connected), washer and dryer in the basement unit, outdoor play structure for child |
| Items excluded in the sale | All TV wall mounts (3 x main unit and 2 x basement), wall shelf (IKEA cube) in the music room, five wall shelves (3 x main floor living room and 2 x children's bedroom), curtain rods and curtains in the basement unit. |
| Dimension of the front of the building | 17.78 M |
| Dimension of the depth of building | 10.42 M |
| Land area | 10007.7 SM |
| Dimension of the front of the land | 60 M |
| Dimension of the depth of the land | 157.21 M |
| Year built | 2008 |
| Municipal assessment (land) | $59,200 |
| Municipal assessment (building) | $511,800 |
| Municipal assessment (total) | $571,000 |
| Assessment year | 2026 |
| Irregular building | Yes |
| Area of the building | 136.43 SM |
| Irregular land | Yes |
| Driveway | Double width or more, Not Paved |
| Landscaping | Land / Yard lined with hedges |
| Heating system | Electric baseboard units |
| Water supply | Artesian well |
| Heating energy | Electricity |
| Hearth stove | Wood fireplace |
| Garage | Attached, Single width, Detached |
| Siding | Pressed fibre |
| Distinctive features | Wooded, Intergeneration |
| Basement | Finished basement, Separate entrance |
| Parking | Outdoor, Garage |
| Sewage system | BIONEST system, Septic tank, Purification field |
| Roofing | Asphalt shingles |
| Topography | Sloped, Flat |
| Zoning | Residential |
Addendum
| Unique Opportunity: Multi-Generational Home on a Vast |
| 2.5-Acre Estate! |
| Discover this stunning property located in Lochaber-Ouest, |
| on the border of L'Ange-Gardien, offering the perfect |
| balance of rural tranquility and proximity to city |
| services. Whether you are looking for a private suite for a |
| family member or extra income potential, this home meets |
| every requirement. |
| Main Unit (Main Floor & Basement): |
| Spanning 1,465 sq. ft., the main residence features bright |
| and expansive common areas. |
| Living Spaces: Enjoy two spacious living rooms, a welcoming |
| dining area, and a modern kitchen with a large central |
| island, perfect for family gatherings. |
| Bedrooms & Comfort: It offers two well-sized bedrooms and |
| an additional family room in the basement, perfect for a |
| home theater or playroom. |
| Parking: A convenient attached garage provides easy access |
| during the winter months. |
| Parental Suite / Multi-Generational Unit (Basement): |
| The secondary unit features a private walk-out entrance, |
| ensuring complete autonomy for its occupants. |
| It includes one bedroom and an inviting dining area |
| enhanced by a wood fireplace for a cozy atmosphere. |
| Key feature: Each unit has its own dedicated laundry space |
| (washer/dryer hookups), ensuring privacy for everyone. |
| Exterior & Lot: |
| The private 2.5-acre lot is a true sanctuary with no |
| immediate rear neighbors. |
| Storage & RV: An additional detached garage offers plenty |
| of room for tools or projects. A dedicated parking space is |
| also available for an RV. |
| Septic System: A major investment was made in 2019 with the |
| installation of a Bionest septic system, compliant for a |
| 4-bedroom capacity. |
| In a peaceful sought-after area. A visit is essential to |
| truly appreciate the lifestyle offered by this estate! |

















































































