Blue Sea
Property description
Discover this splendid property on the shores of Blue Sea Lake, where comfort and nature come together in perfect harmony. Offering breathtaking views of the water and direct access to the lake, this turnkey home with garage stands out for its brightness and impeccable maintenance. You will find an open living space combining a cozy living room with a wood-burning fireplace, a functional kitchen with a central island, and a convivial dining room. With its 4 bedrooms, 1 bathroom, and 1 shower room adjoining the master bedroom, it meets all your family's needs. Enjoy a covered terrace and a peaceful location just steps from the beach.
Details
Located near
Golf, Park - green area, Elementary school, Alpine skiing
Room dimension
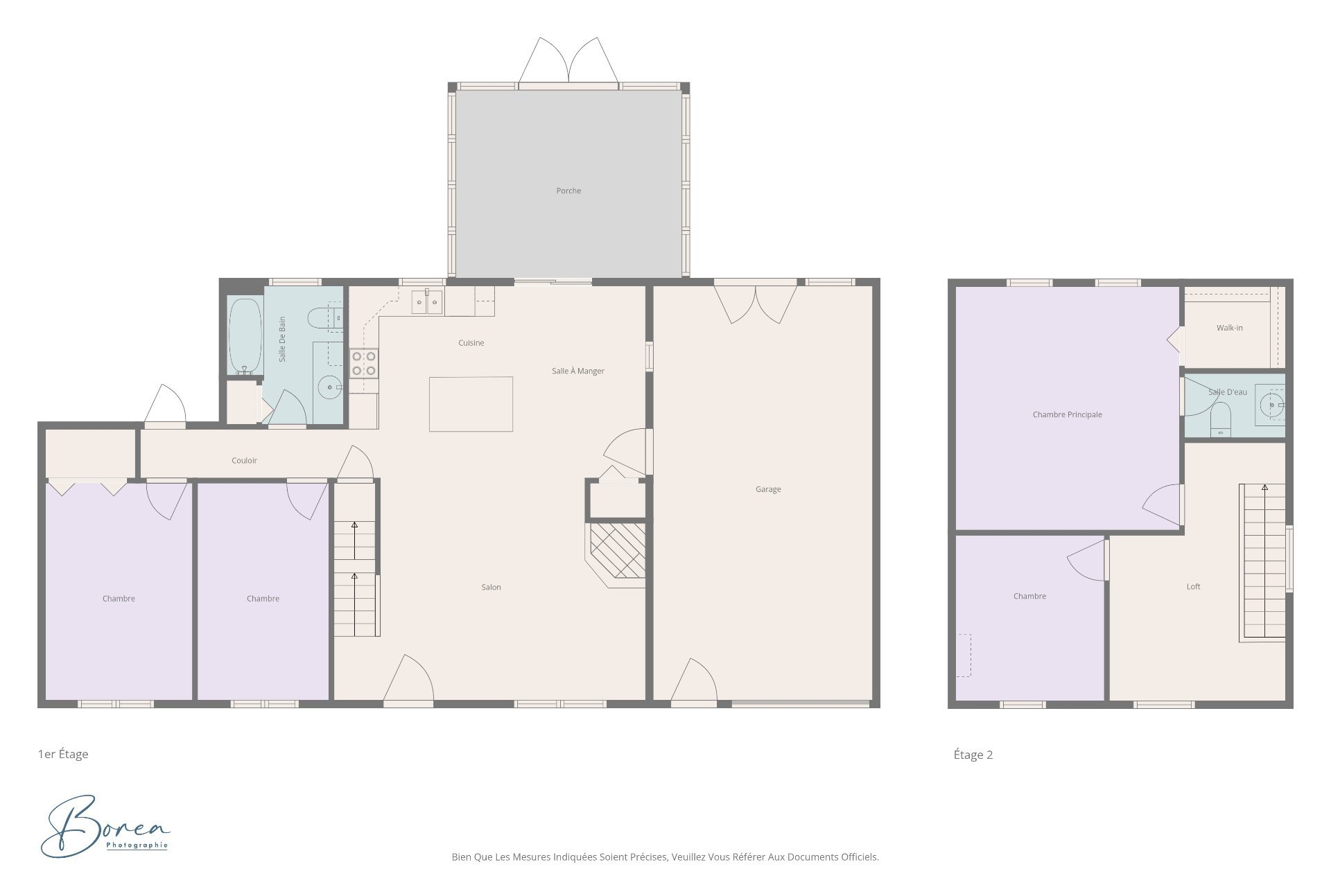
| Room | Floor | Dimensions | Floor covering |
|---|---|---|---|
| Living room | 1st level/Ground floor | 20.3x14.5 P | Wood |
| Dining room | 1st level/Ground floor | 8.3x12.6 P | Ceramic tiles |
| Kitchen | 1st level/Ground floor | 10.11x12.6 P | Ceramic tiles |
| Bathroom | 1st level/Ground floor | 7.7x9.0 P | Ceramic tiles |
| Bedroom | 1st level/Ground floor | 8.6x14.1 P | Floating floor |
| Bedroom | 1st level/Ground floor | 9.7x14.1 P | Floating floor |
| Other | 2nd floor | 11.5x16.9 P | Floating floor |
| Master bedroom | 2nd floor | 14.6x15.10 P | Floating floor |
| Washroom | 2nd floor | 6.7x4.2 P | Ceramic tiles |
| Bedroom | 2nd floor | 9.8x10.9 P | Floating floor |
Taxes and expenses
| Municipal Taxes | $3,047 |
| School taxes | $205 |
Building and interior of the property
| Bedrooms | 4 |
| Bathrooms | 1 |
| Washrooms | 1 |
| Number of rooms | 11 |
| Number of rooms above ground | 4 |
| Living area | 103.7 SM |
| Expected delay of occupancy | 30 days |
| Items included in the sale | Heat pump, water heater, stove, refrigerator, microwave hood, washer, dryer, poles, curtains, blinds, dishwasher, water machine, light fixtures, patio table, BBQ, central vacuum and accessories, sump pump, camera system. |
| Items excluded in the sale | Furniture and personal belongings |
| Dimension of the front of the building | 18.11 M |
| Dimension of the depth of building | 8.54 M |
| Land area | 636.3 SM |
| Dimension of the front of the land | 22.49 M |
| Dimension of the depth of the land | 27.26 M |
| Year built | 1992 |
| Municipal assessment (land) | $38,200 |
| Municipal assessment (building) | $300,400 |
| Municipal assessment (total) | $338,600 |
| Assessment year | 2025 |
| Driveway | Asphalt |
| Landscaping | Patio, Landscape |
| Cupboard | Melamine |
| Heating system | Space heating baseboards, Electric baseboard units |
| Water supply | Lake water |
| Heating energy | Electricity |
| Equipment available | Central vacuum cleaner system installation, Wall-mounted heat pump, Wall-mounted air conditioning |
| Windows | PVC |
| Foundation | Concrete block |
| Hearth stove | Wood fireplace |
| Garage | Attached, Single width |
| Siding | Brick, Vinyl |
| Distinctive features | Water access, Navigable, Waterfront, No neighbours in the back |
| Restrictions/Permissions | Short-term rentals allowed |
| Bathroom / Washroom | Adjoining to the master bedroom |
| Parking | Outdoor, Garage |
| Sewage system | Purification field, Septic tank |
| Window type | Sliding, Hung |
| Roofing | Asphalt shingles |
| Topography | Flat |
| View | Water, Panoramic, Mountain |
| Zoning | Recreational and tourism, Residential |
Addendum
| Nestled on the shores of Blue Sea Lake, this magnificent |
| property combines charm, comfort, and nature. Offering |
| breathtaking views of the water and direct access to the |
| lake, it offers a unique lifestyle where serenity and |
| convenience meet. Perfect for a family or as a second home, |
| it stands out for its impeccable maintenance and warm |
| atmosphere. |
| Key features |
| -Magnificent property with garage offering sublime views of |
| the water |
| -Direct access to Blue Sea Lake, ideal for outdoor and |
| water sports enthusiasts |
| -Turnkey, carefully maintained and exceptionally bright |
| -Open-concept design combining comfort, warmth, and |
| functionality |
| Living spaces |
| -Welcoming living room with wood-burning fireplace, |
| creating a cozy atmosphere |
| -Bright dining room and functional kitchen with central |
| island |
| -4 bedrooms, including the master with en-suite bathroom |
| -Carefully designed full bathroom |
| -Open-concept loft space, perfect for a reading nook, |
| relaxation area, or office |
| Land and surroundings |
| -Approximately 6,849 sq. ft. of carefully maintained land |
| -Covered terrace, ideal for enjoying beautiful days in any |
| season |
| -Peaceful cottage setting, yet close to amenities |
| -Located a few steps from Blue Sea Beach |
| Additional details |
| -Short-term rentals permitted (CITQ license compliant) |
| -Shoreline area with restricted use according to regulations |
| -Central vacuum and wall-mounted heat pump for year-round |
| comfort |






























