New price
$414,900
405 Boul. St-René O.
Gatineau (Gatineau)
Gatineau (Gatineau)
Type
Bungalow
Bedrooms
2
Living area
1049 PC
Bathrooms
2
MLS® 14578560
Property description
Beautiful bungalow located in Gatineau. Perfect for DIYers/renovators, one owner since construction, two bathrooms, abundant windows, kitchen with island and wood cabinets, large master bedroom, fully finished basement, and plenty of storage space. Private fenced yard with solarium and outdoor shed. Paved driveway and several parking spaces.
Details
Located near
Highway, Golf, Hospital, Park - green area, Elementary school, High school, Public transport, Bicycle path, Daycare centre
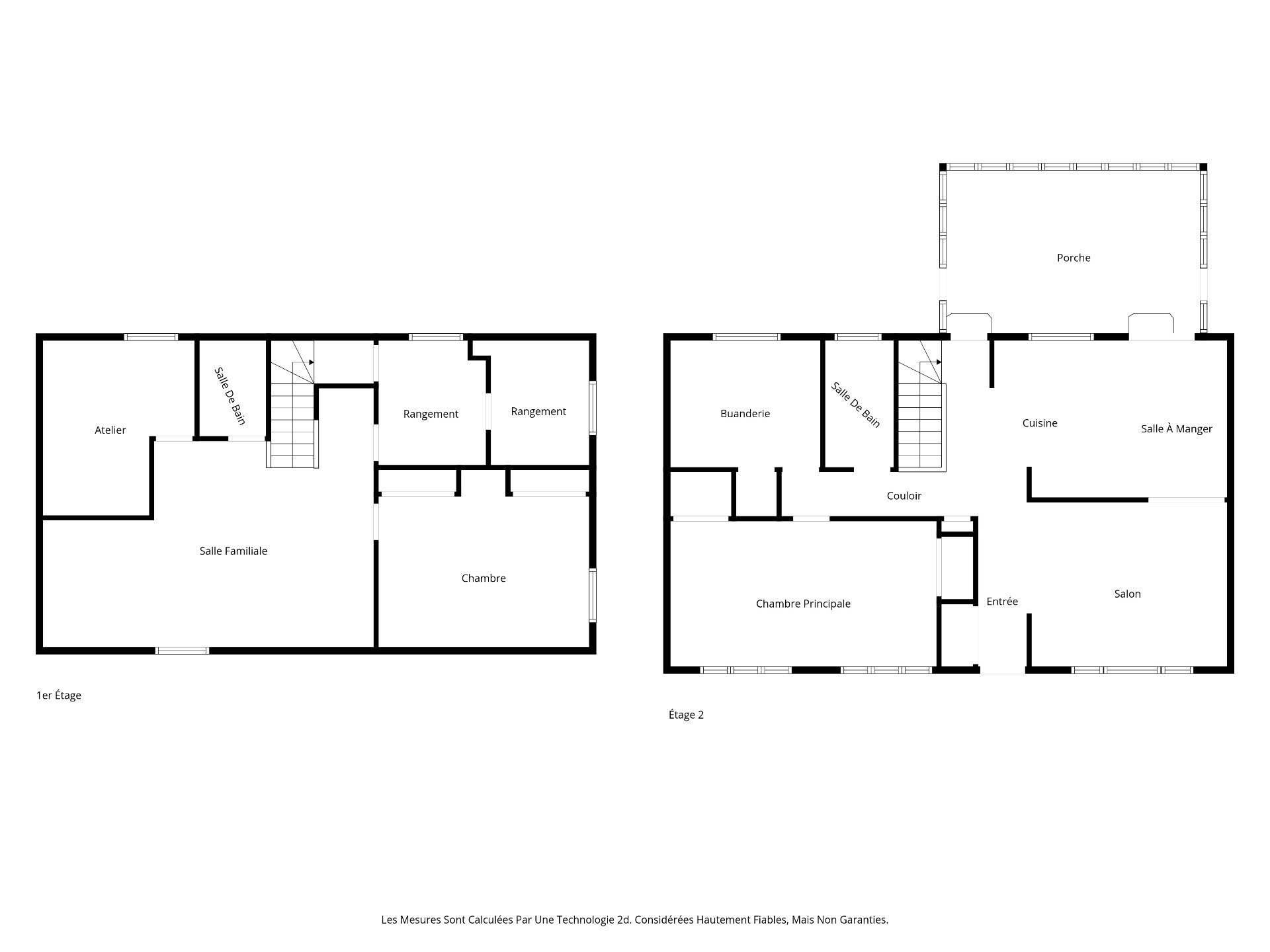
Room dimension
| Room | Floor | Dimensions | Floor covering |
|---|---|---|---|
| Hallway | 1st level/Ground floor | 11.5x3.7 P | Ceramic tiles |
| Living room | 1st level/Ground floor | 11.9x14.6 P | Floating floor |
| Kitchen | 1st level/Ground floor | 11.3x10.1 P | Ceramic tiles |
| Dining room | 1st level/Ground floor | 11.3x7 P | Ceramic tiles |
| Bathroom | 1st level/Ground floor | 9.8x4.11 P | Ceramic tiles |
| Master bedroom | 1st level/Ground floor | 10.7x19.4 P | Floating floor |
| Laundry room | 1st level/Ground floor | 9.2x10.11 P | Flexible floor coverings |
| Family room | Basement | 18.8x23.9 P | Carpet |
| Bedroom | Basement | 15.6x11.1 P | Carpet |
| Storage | Basement | 7.9x9.9 P | Carpet |
| Storage | Basement | 7.8x10 P | Flexible floor coverings |
| Bathroom | Basement | 7.6x4.11 P | Flexible floor coverings |
| Workshop | Basement | 10.10x12.9 P | Carpet |
| Solarium | 1st level/Ground floor | 12x18 P | Flexible floor coverings |
Taxes and expenses
| School taxes | $273 |
| Municipal Taxes | $3,071 |
| Energy cost | $840 |
Building and interior of the property
| Bedrooms | 2 |
| Bathrooms | 2 |
| Number of rooms | 14 |
| Number of rooms above ground | 1 |
| Number of basement bedrooms | 1 |
| Living area | 1049 SF |
| Items included in the sale | Blinds, curtain rods, curtains, storage room, central air conditioning, furnace, light fixtures, microwave, stove, refrigerator, washer, dryer. |
| Items excluded in the sale | Water heater (rental) |
| Land area | 5999 SF |
| Dimension of the front of the land | 18.29 M |
| Dimension of the depth of the land | 30.48 M |
| Year built | 1962 |
| Municipal assessment (land) | $220,700 |
| Municipal assessment (building) | $189,400 |
| Municipal assessment (total) | $410,100 |
| Assessment year | 2025 |
| Driveway | Asphalt, Double width or more |
| Landscaping | Fenced |
| Cupboard | Wood |
| Heating system | Air circulation |
| Water supply | Municipality |
| Heating energy | Natural gas |
| Equipment available | Central vacuum cleaner system installation, Central air conditioning |
| Windows | PVC |
| Foundation | Poured concrete |
| Siding | Brick |
| Restrictions/Permissions | Animals allowed |
| Bathroom / Washroom | Seperate shower |
| Basement | 6 feet and over, Finished basement |
| Parking | Outdoor |
| Sewage system | Municipal sewer |
| Window type | Sliding, French window, Crank handle |
| Roofing | Asphalt shingles |
| Topography | Flat |
| Zoning | Residential |
Addendum
| 405 St-René Blvd West, Gatineau: |
| - Bungalow |
| - Area: Gatineau |
| - One owner since 1962 |
| - 2 bedrooms (possibility of 3) |
| - 2 bathrooms |
| - Abundant windows |
| - Kitchen with wood cabinets and central island |
| - Large master bedroom |
| - Fully finished basement |
| - Several storage spaces |
| - Water heater (2024, rented) |
| - Solarium |
| - Fenced yard |
| - Roof (+/- 10 years old) |
| - Outdoor shed |
| - Paved driveway |
| - Several parking spaces |
| - Great location in Gatineau, close to essential services |
| ** Sale without legal warranty ** |














































