Val-des-Monts
Property description
CHARM & TRANQUILITY IN PERKINS, VAL-DES-MONTS! Impeccably maintained two-storey home offering 3 bedrooms, 2 full bathrooms, and 1 powder room. Warm and inviting layout featuring hardwood floors, a welcoming living room with a stone accent wall, and abundant natural light. Functional kitchen with full-height cabinetry and modern backsplash. Stunning bathroom with glass shower and freestanding tub. Private, wooded lot with a large terrace--perfect for relaxing. Finished basement with excellent potential. Heated attached garage + storage shed. Located in a peaceful, sought-after area close to schools and services. Only 8 minutes from Highway 50.
Details
Located near
Highway, Golf, Park - green area, Elementary school, Public transport, Daycare centre
Room dimension
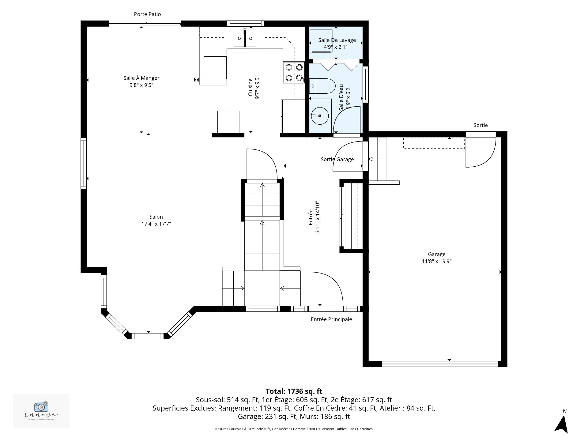
| Room | Floor | Dimensions | Floor covering |
|---|---|---|---|
| Hallway | 1st level/Ground floor | 6.11x14.10 P | Ceramic tiles |
| Living room | 1st level/Ground floor | 17.4x17.7 P | Wood |
| Kitchen | 1st level/Ground floor | 9.7x9.5 P | Ceramic tiles |
| Dining room | 1st level/Ground floor | 9.8x9.5 P | Wood |
| Washroom | 1st level/Ground floor | 4.9x6.2 P | Ceramic tiles |
| Laundry room | 1st level/Ground floor | 4.9x2.11 P | Ceramic tiles |
| Master bedroom | 2nd floor | 13.7x17.3 P | Wood |
| Bedroom | 2nd floor | 13.5x9.5 P | Wood |
| Bedroom | 2nd floor | 10.7x9.5 P | Wood |
| Bathroom | 2nd floor | 6.11x14.1 P | Ceramic tiles |
| Family room | Basement | 24.4x13.7 P | Carpet |
| Bathroom | Basement | 6.11x5.10 P | Ceramic tiles |
| Workshop | Basement | 7.2x13.3 P | Carpet |
| Storage | Basement | 21.6x4.6 P | Carpet |
| Storage | Basement | 5.1x8.0 P | Wood |
| Storage | Basement | 3.1x4.10 P | Concrete |
Taxes and expenses
| School taxes | $335 |
| Municipal Taxes | $4,016 |
| Energy cost | $2,640 |
Building and interior of the property
| Bedrooms | 3 |
| Bathrooms | 2 |
| Washrooms | 1 |
| Number of rooms | 16 |
| Number of rooms above ground | 3 |
| Living area | 131.5 SM |
| Expected delay of occupancy | 90 days |
| Items included in the sale | Washer and dryer, refrigerator x 2, freezer, stove, water softener, water heater, a dual-head heat pump, light fixtures as attached, propane gas BBQ, patio set and 6 chairs, an umbrella with the base, basement sofas, rods, curtains and blinds, upstairs ha |
| Items excluded in the sale | All personal belongings and furniture, all contents of the garage and the shed, floor lamps, artworks and frames/paintings on the walls. |
| Dimension of the front of the building | 11.6 M |
| Dimension of the depth of building | 10.98 M |
| Land area | 2800 SM |
| Dimension of the front of the land | 37.33 M |
| Dimension of the depth of the land | 75 M |
| Year built | 2002 |
| Municipal assessment (land) | $68,000 |
| Municipal assessment (building) | $412,300 |
| Municipal assessment (total) | $480,300 |
| Assessment year | 2026 |
| Driveway | Asphalt |
| Landscaping | Patio |
| Heating system | Electric baseboard units |
| Water supply | Artesian well |
| Heating energy | Electricity, Propane |
| Equipment available | Central vacuum cleaner system installation, Alarm system, Electric garage door, Ventilation system |
| Windows | PVC |
| Foundation | Poured concrete |
| Hearth stove | Gaz fireplace |
| Garage | Attached, Single width, Heated |
| Siding | Concrete stone, Vinyl |
| Distinctive features | Wooded |
| Bathroom / Washroom | Seperate shower |
| Available services | Fire detector |
| Basement | 6 feet and over, Separate entrance, Other, Finished basement |
| Parking | Outdoor, Garage |
| Sewage system | Purification field, Septic tank |
| Window type | Sliding, French window, Crank handle |
| Roofing | Asphalt shingles |
| Topography | Sloped, Flat |
| View | Other |
| Zoning | Residential |
Addendum
| ELEGANCE, NATURE & QUALITY OF LIFE -- VAL-DES-MONTS |
| (PERKINS SECTOR) |
| From the moment you arrive, this property stands out for |
| its exceptional natural setting and harmonious positioning |
| on a mature wooded lot, offering privacy, tranquility, and |
| a true sense of escape. |
| The residence features a timeless, warm architecture where |
| every space has been carefully maintained. The main floor |
| showcases a bright, inviting living area enhanced by |
| abundant windows that flood the space with natural light. |
| The living room, highlighted by a stone accent wall, |
| creates an elegant and welcoming atmosphere--perfect for |
| entertaining or relaxing. |
| The kitchen is both functional and stylish, offering an |
| optimized workspace with ample cabinetry and a modern |
| backsplash. It flows seamlessly into the dining area and |
| provides direct access to a large outdoor terrace--ideal |
| for al fresco dining and enjoying peaceful, private |
| surroundings. |
| Upstairs, the bedrooms are well-sized, comfortable, and |
| filled with natural light. The main bathroom stands out |
| with its quality finishes, featuring a glass shower and |
| freestanding tub, creating a spa-like retreat. |
| The finished basement offers excellent versatility, whether |
| for a family room, home office, additional storage, or |
| further customization based on your needs. |
| Outside, the property benefits from an outstanding natural |
| environment with a private wooded lot--perfect for outdoor |
| enthusiasts. The large elevated terrace allows you to fully |
| enjoy the surrounding nature. A heated attached garage and |
| storage shed add significant practical value. |
| WHY CHOOSE VAL-DES-MONTS | A HIGHLY DESIRABLE LIFESTYLE |
| Val-des-Monts is recognized as one of the most sought-after |
| areas in the Outaouais for its exceptional quality of life. |
| Just minutes from Gatineau with quick access to Highway 50, |
| it offers a rare balance between nature and urban |
| convenience. |
| * Peaceful, safe, low-density environment |
| * Access to numerous lakes, trails, and outdoor activities |
| * Ideal setting for families, remote workers, and nature |
| lovers |
| * Close to schools, daycare centers, and essential services |
| * Strong long-term value in a high-demand area |
| THE BENEFITS OF A NATURE-FOCUSED LIFESTYLE |
| Living in a wooded environment like this provides tangible |
| everyday advantages: |
| * Reduced stress and improved overall well-being |
| * Superior air quality and a healthier environment |
| * Direct access to outdoor activities |
| * Enhanced privacy and tranquility |
| * Improved quality of life year-round, in every season |











































