New price
$329,900
1490 Boul. Maloney E. 2
Gatineau (Gatineau)
Gatineau (Gatineau)
Type
Apartment
Bedrooms
3
Living area
1132 PC
Bathrooms
1
MLS® 17180710
Property description
Gatineau area. Superb, well-maintained 1,132 sq. ft. condo built in 2010, featuring 3 bedrooms, a bathroom, a comfortable and functional living space, plus 2 outdoor parking spaces. Strategically located near shops, ideal for a simple and accessible lifestyle. A great opportunity not to be missed!
Details
Located near
Highway, Golf, Hospital, Elementary school, High school, Public transport, Bicycle path, Daycare centre
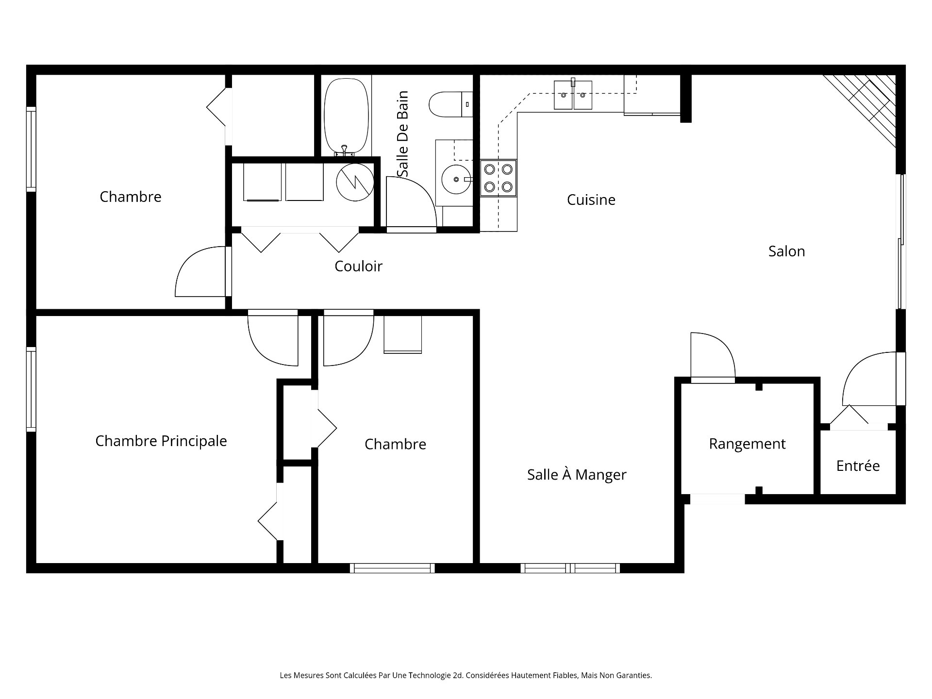
Room dimension
| Room | Floor | Dimensions | Floor covering |
|---|---|---|---|
| Hallway | 2nd floor | 4.3x4.5 P | Ceramic tiles |
| Living room | 2nd floor | 16.4x12.1 P | Floating floor |
| Dining room | 2nd floor | 10.2x14.0 P | Floating floor |
| Kitchen | 2nd floor | 9.4x10.8 P | Ceramic tiles |
| Bathroom | 2nd floor | 8.7x7.10 P | Ceramic tiles |
| Bedroom | 2nd floor | 11.7x9.0 P | Floating floor |
| Master bedroom | 2nd floor | 10.4x12.6 P | Floating floor |
| Bedroom | 2nd floor | 11.10x11.8 P | Floating floor |
| Storage | 2nd floor | 4.2x7.1 P | Floating floor |
Taxes and expenses
| School taxes | $201 |
| Municipal Taxes | $2,384 |
| Co-ownership fees | $2,100 |
Building and interior of the property
| Co-ownership fees | $2,100 |
| Bedrooms | 3 |
| Bathrooms | 1 |
| Number of rooms | 9 |
| Number of rooms above ground | 3 |
| Living area | 1132 SF |
| Expected delay of occupancy | 30 days |
| Items included in the sale | Stove, refrigerator, washer, dryer, wall-mounted air conditioner, air exchanger, light fixtures, blinds, curtains, water heater, living room TV mount. |
| Items excluded in the sale | Bedroom TV mount. |
| Dimension of the front of the building | 26 F |
| Dimension of the depth of building | 48 F |
| Land area | 1873 SF |
| Dimension of the front of the land | 12 F |
| Dimension of the depth of the land | 149 F |
| Year built | 2010 |
| Municipal assessment (land) | $54,000 |
| Municipal assessment (building) | $262,700 |
| Municipal assessment (total) | $316,700 |
| Assessment year | 2026 |
| Type of ownership | Divided |
| Condo floor | 2 |
| Number of stories | 3 |
| Irregular building | Yes |
| Landscaping | Landscape |
| Cupboard | Melamine |
| Heating system | Electric baseboard units |
| Water supply | Municipality |
| Heating energy | Electricity |
| Windows | PVC |
| Hearth stove | Other |
| Siding | Brick, Vinyl |
| Parking | Outdoor |
| Sewage system | Municipal sewer |
| Window type | Crank handle |
| Roofing | Asphalt shingles |
| Topography | Flat |
| Zoning | Residential |
























