La Pêche
Property description
Stunning turnkey property nestled directly on Lake Beauclair! This bright and inviting home offers 3 bedrooms, a dedicated office space, 2 full bathrooms and a powder room. Beautiful windows and a charming lakeside veranda frame captivating water views, creating a peaceful atmosphere throughout. The flat, beautifully landscaped 1.8-acre lot features 170 feet of shoreline along a calm, pristine lake. Attached and insulated garage, storage shed, and a lower level providing extra storage space. A truly enchanting setting where nature, comfort, and serenity come together. Located at only 30 minutes from Hull. An exceptional opportunity!
Details
Located near
Park - green area
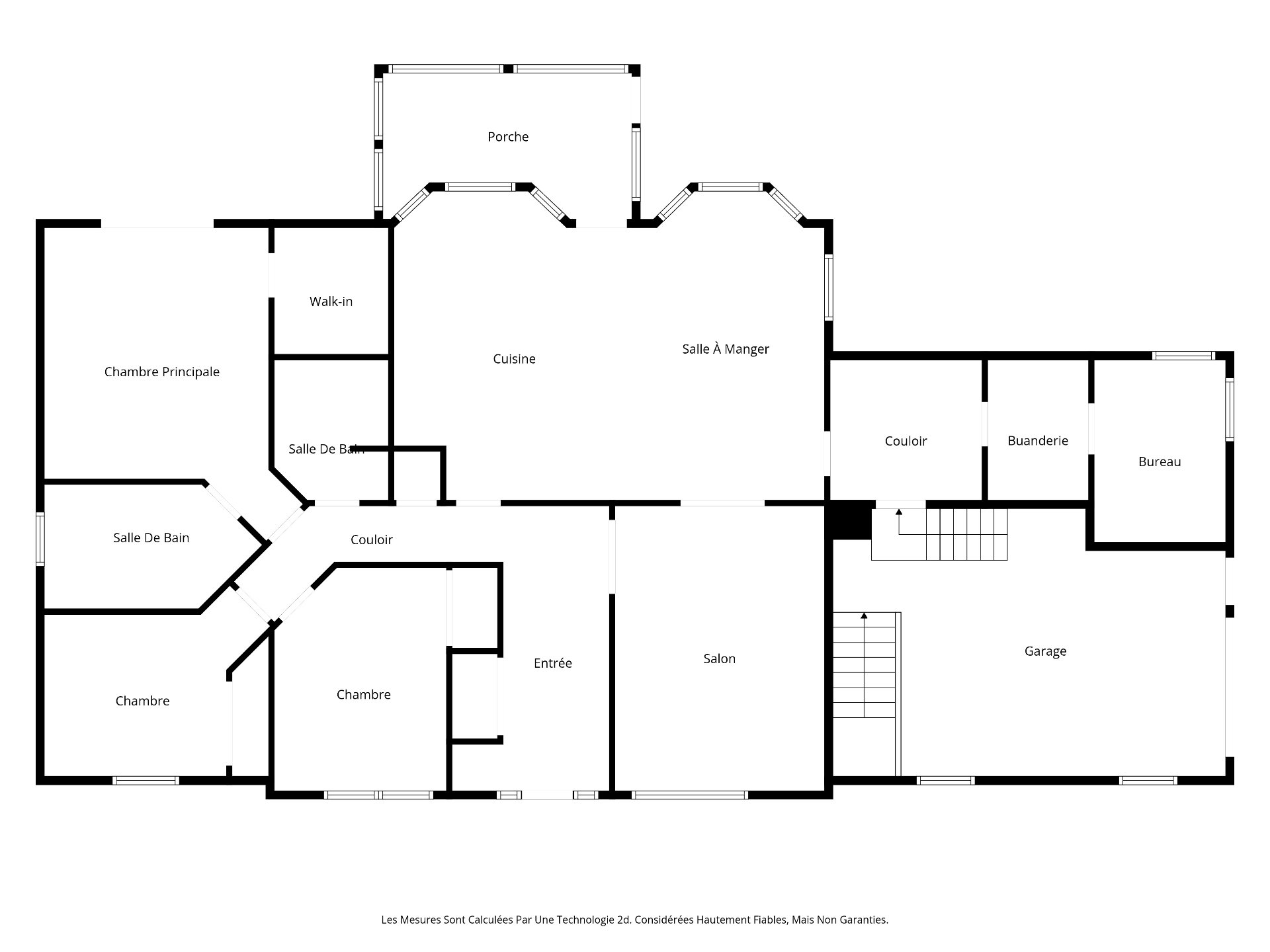
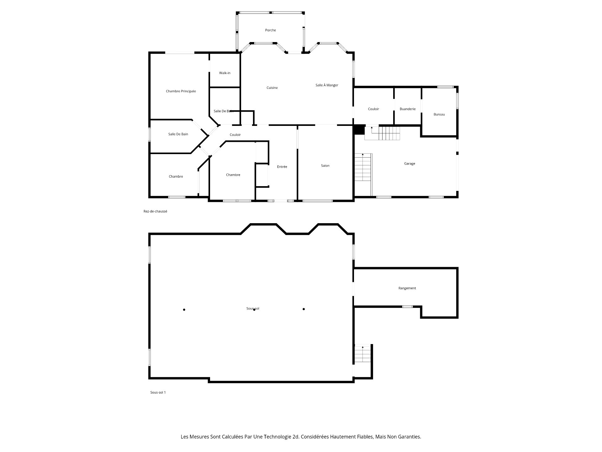
Room dimension
| Room | Floor | Dimensions | Floor covering |
|---|---|---|---|
| Hallway | 1st level/Ground floor | 9.8x6.10 P | Ceramic tiles |
| Bedroom | 1st level/Ground floor | 14.6x11 P | Wood |
| Bedroom | 1st level/Ground floor | 11x10 P | Wood |
| Master bedroom | 1st level/Ground floor | 16.3x13.9 P | Wood |
| Bathroom | 1st level/Ground floor | 6.10x12 P | Ceramic tiles |
| Bathroom | 1st level/Ground floor | 7.10x7 P | Ceramic tiles |
| Kitchen | 1st level/Ground floor | 19.10x11 P | Ceramic tiles |
| Dining room | 1st level/Ground floor | 11x19.4 P | Ceramic tiles |
| Veranda | 1st level/Ground floor | 9.8x16.4 P | Wood |
| Hallway | 1st level/Ground floor | 8.10x8.6 P | Wood |
| Washroom | 1st level/Ground floor | 5.10x8.6 P | Wood |
| Home office | 1st level/Ground floor | 9.2x11 P | Wood |
Taxes and expenses
| School taxes | $440 |
| Municipal Taxes | $3,568 |
| Energy cost | $880 |
Building and interior of the property
| Bedrooms | 3 |
| Bathrooms | 2 |
| Washrooms | 1 |
| Number of rooms | 16 |
| Number of rooms above ground | 3 |
| Living area | 2490 SF |
| Expected delay of occupancy | 30 days |
| Items excluded in the sale | Furniture in the living room (tables and armchairs), wooden furniture in the dining room, furniture in the walk-in closet, wooden furniture in the entrance leading to the garage. |
| Land area | 7254.7 SM |
| Dimension of the front of the land | 51.92 M |
| Year built | 2003 |
| Municipal assessment (land) | $83,500 |
| Municipal assessment (building) | $463,000 |
| Municipal assessment (total) | $546,500 |
| Assessment year | 2025 |
| Area of the building | 2490 SF |
| Irregular land | Yes |
| Driveway | Asphalt, Not Paved, Double width or more |
| Landscaping | Landscape |
| Cupboard | Wood |
| Heating system | Air circulation |
| Water supply | Lake water, Shallow well |
| Heating energy | Bi-energy, Heating oil, Wood |
| Equipment available | Central vacuum cleaner system installation, Electric garage door, Ventilation system |
| Windows | PVC |
| Foundation | Concrete block |
| Garage | Attached, Single width, Heated |
| Siding | Vinyl |
| Distinctive features | No neighbours in the back, Non navigable, Waterfront |
| Restrictions/Permissions | Animals allowed |
| Bathroom / Washroom | Adjoining to the master bedroom, Seperate shower |
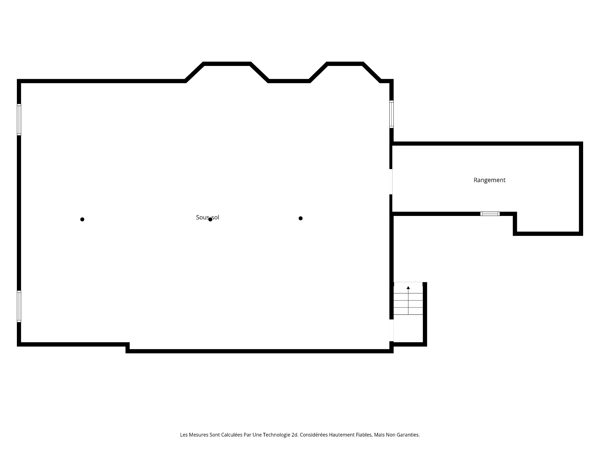
| Basement | 6 feet and over, Other, Unfinished |
| Parking | Outdoor, Garage |
| Sewage system | Purification field, Septic tank |
| Window type | Sliding, Hung |
| Roofing | Asphalt shingles |
| Topography | Flat |
| View | Water, Mountain |
| Zoning | Residential |
Addendum
| * Impeccable, spotless, and very well-maintained property |
| with exceptional natural light. |
| * Spacious and functional kitchen, ideal for cooking and |
| entertaining. |
| * Three generous bedrooms, including a primary suite with |
| walk-in closet and ensuite bathroom. |
| * Two full bathrooms plus a powder room with washer/dryer |
| connections. |
| * Large office space, perfect for working from home. |
| * Dual-energy furnace (oil and wood). |
| * Practical basement with direct access from the garage, |
| ideal for storage. |
| * Attached, insulated, and heated garage, plus storage shed. |
| * Wide, paved driveway with ample parking. |
| * Beautifully landscaped and flat 1.8-acre lot. |
| * 170 feet of frontage on Lake Beauclair, a peaceful, |
| non-motorized lake ideal for swimming, kayaking, and |
| relaxing. |
| * Screened-in veranda with lake views, perfect for enjoying |
| all seasons. |
| * Located on a paved municipal road. |
| * Highly desirable location near the village of Masham |
| (grocery store, pharmacy, restaurants, hardware store, |
| CLSC). |
| * Minutes from Gatineau Park, Lac Philippe, the village of |
| Wakefield, lakes, trails, and year-round outdoor activities. |
| * Only 30 minutes from Hull and 45 minutes from Ottawa. |
| * The municipality is Pontiac. Property located in the |
| Masham-Lac-des-Loups sector. |
| * Opportunity to purchase the adjacent 3.4-acre lot (419 |
| Route 366 O.), bordering Gatineau Park - ideal for creating |
| an exceptional private estate. |





























































