Gatineau (Gatineau)
Property description
Beautifully Renovated Semi-Detached! Become a Homeowner Today.This stunning semi-detached home offers over 1,000 sq. ft. of living space (excluding the basement). Featuring a fully renovated kitchen, a bright and spacious living room, 3 bedrooms on the upper level and 1 in the basement - perfect for family life or a home office setup. You'll also find 2 full bathrooms and vinyl flooring. Outside, enjoy a large backyard ideal for outdoor activities or gardening, a patio, and a carport for your vehicle and much more. A tastefully renovated property, more affordable than renting. Take the step toward homeownership today or invest in real estate.
Details
Located near
Highway, Cegep, Golf, Park - green area, Elementary school, High school, Public transport, Bicycle path, Daycare centre
Room dimension
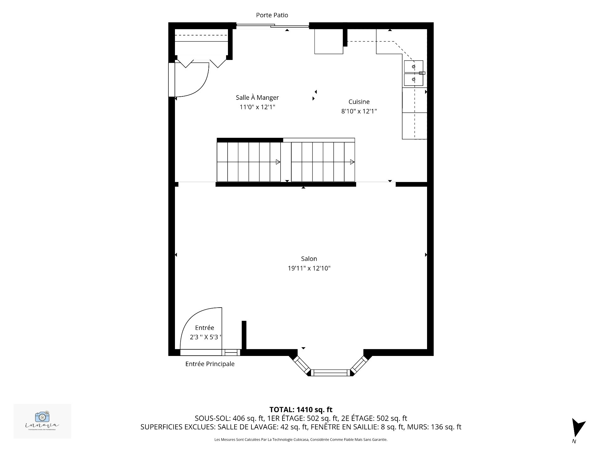
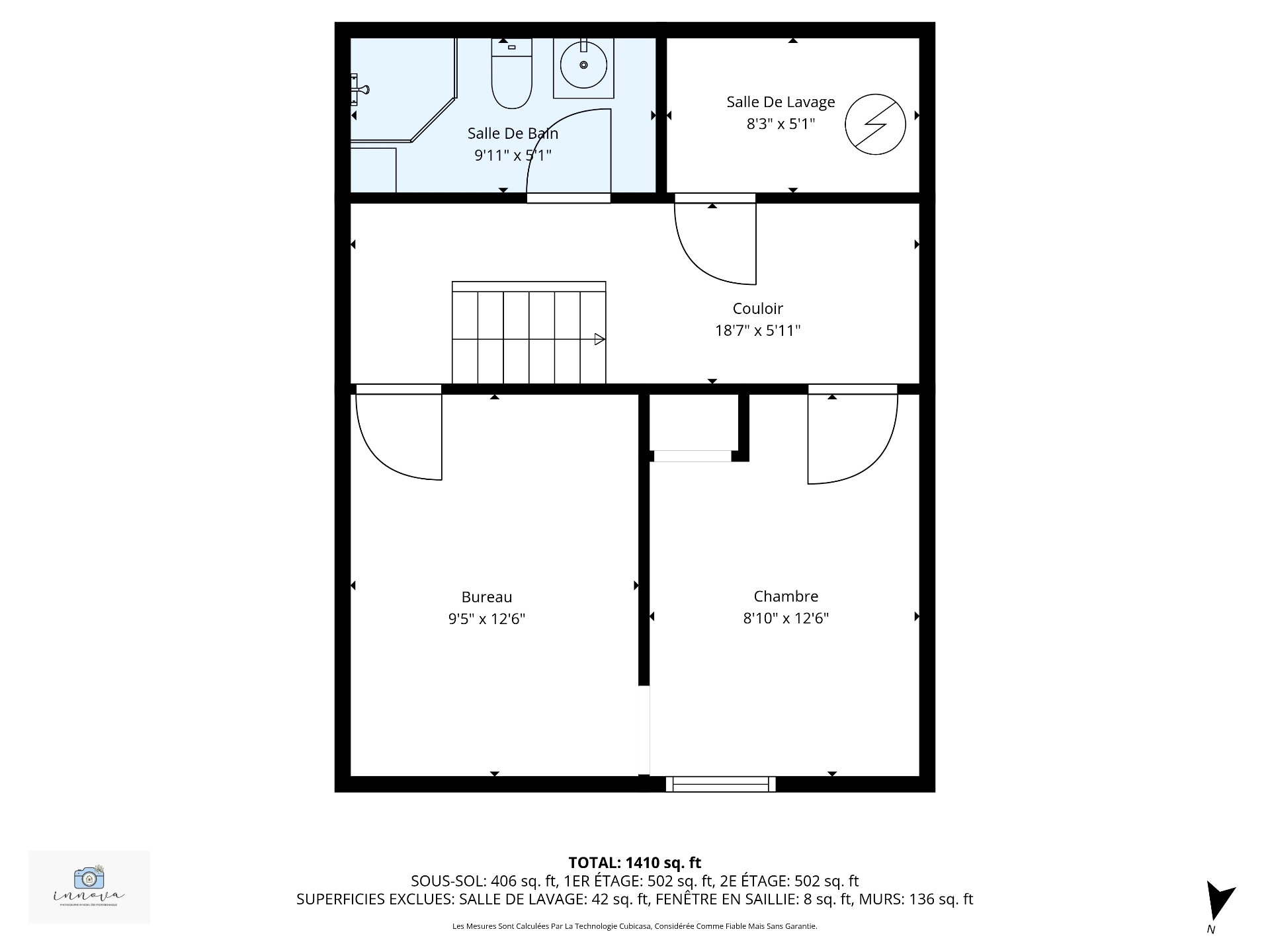
| Room | Floor | Dimensions | Floor covering |
|---|---|---|---|
| Hallway | 1st level/Ground floor | 2.3x5.3 P | Vinyl |
| Living room | 1st level/Ground floor | 19.11x12.10 P | Vinyl |
| Dining room | 1st level/Ground floor | 11.0x12.1 P | Vinyl |
| Kitchen | 1st level/Ground floor | 8.10x12.1 P | Vinyl |
| Master bedroom | 2nd floor | 13.10x12.11 P | Vinyl |
| Bedroom | 2nd floor | 9.5x9.6 P | Vinyl |
| Bedroom | 2nd floor | 12.1x8.7 P | Vinyl |
| Bathroom | 2nd floor | 7.5x5.3 P | Vinyl |
| Bedroom | Basement | 8.10x12.6 P | Vinyl |
| Home office | Basement | 9.5x12.6 P | Floating floor |
| Bathroom | Basement | 9.11x5.1 P | Tiles |
| Laundry room | Basement | 8.3x5.1 P | Tiles |
Taxes and expenses
| Municipal Taxes | $2,430 |
| School taxes | $210 |
Building and interior of the property
| Bedrooms | 4 |
| Bathrooms | 2 |
| Number of rooms | 12 |
| Number of rooms above ground | 3 |
| Number of basement bedrooms | 1 |
| Living area | 98.5 SM |
| Expected delay of occupancy | 15 days |
| Items included in the sale | All light fixtures, air conditionning working but there is a water leek, may need repairs. The seller cannot guarantee proper fonctionning, may need repairs. The seller will not pay to repair. |
| Items excluded in the sale | Hot water tank rental with Hydro-Solution. |
| Dimension of the front of the building | 6.1 M |
| Dimension of the depth of building | 7.96 M |
| Land area | 329.7 SM |
| Dimension of the front of the land | 10.67 M |
| Dimension of the depth of the land | 21.67 M |
| Year built | 1977 |
| Municipal assessment (land) | $131,700 |
| Municipal assessment (building) | $180,200 |
| Municipal assessment (total) | $311,900 |
| Assessment year | 2025 |
| Irregular land | Yes |
| Carport | Attached |
| Driveway | Not Paved |
| Landscaping | Fenced |
| Cupboard | Other, Melamine |
| Heating system | Electric baseboard units |
| Water supply | Municipality |
| Heating energy | Electricity |
| Windows | PVC |
| Foundation | Poured concrete |
| Siding | Aluminum |
| Distinctive features | Wooded |
| Bathroom / Washroom | Seperate shower |
| Basement | 6 feet and over, Finished basement |
| Parking | In carport, Outdoor |
| Sewage system | Municipal sewer |
| Window type | Sliding, Crank handle |
| Roofing | Asphalt shingles |
| Topography | Flat |
| Zoning | Residential |
Addendum
| Discover this beautifully renovated semi-detached home |
| Offering over 1,000 sq. ft. of bright and inviting living |
| space (excluding the basement). |
| Every room combines comfort and functionality for a warm, |
| modern atmosphere. |
| Main Floor: |
| Open-concept layout featuring a spacious living and dining |
| area. Durable vinyl floors bring a contemporary touch. The |
| fully redesigned kitchen offers a clean, modern look with |
| full-height white cabinets, wooden countertops, and direct |
| access to the backyard deck. |
| Upper Level: |
| Three well-sized, sunlit bedrooms -- ideal for a family or |
| a home office setup. A renovated bathroom with a combined |
| bathtub and sleek finishes completes this level. |
| Basement: |
| Additional living space includes a fourth bedroom |
| (non-conforming window), a full bathroom with a shower, and |
| a practical storage area. |
| Exterior: |
| Enjoy a large fenced yard, an expansive patio perfect for |
| entertaining or relaxing, and a carport for added |
| convenience. |
| Nestled in a peaceful, family-friendly neighborhood |
| surrounded by mature trees -- yet close to everything. |
| The Advantages of Living in Gatineau |
| Gatineau offers the perfect balance between quality of life |
| and affordability. |
| You'll enjoy a lower cost of living than in the greater |
| Ottawa area while staying close to downtown via quick |
| access to bridges and major roadways. |
| Within minutes--by foot or car--you'll find all essential |
| services: schools, daycares, grocery stores, pharmacies, |
| parks, restaurants, shopping centers, and public transit. |
| Living in Gatineau also means access to abundant green |
| spaces, bike paths, and outdoor activities. |
| A vibrant city where it feels good to live, raise a family, |
| and invest in a solid future. |































