Val-des-Monts
Property description
Majestic waterfront estate on Lake McGregor! High-end materials, extensive renovations, modern systems (24kW generator, heat pump, new windows). Soaring cathedral ceilings, abundant natural light, panoramic lake & mountain views. Gourmet kitchen, 3rd-floor pine mezzanine, main-level guest suite. 168 ft on a quiet bay with dock and beach. Triple-car garage + shed. Absolute privacy, turnkey, with many inclusions. *Possibility to include almost everything you see in the property; which could be ideal for a secondary residence (can be discussed). Less than 1 hour from Ottawa on fully paved roads. A unique, luxurious concept!
Details
Located near
Highway, Golf, Alpine skiing, Cross-country skiing
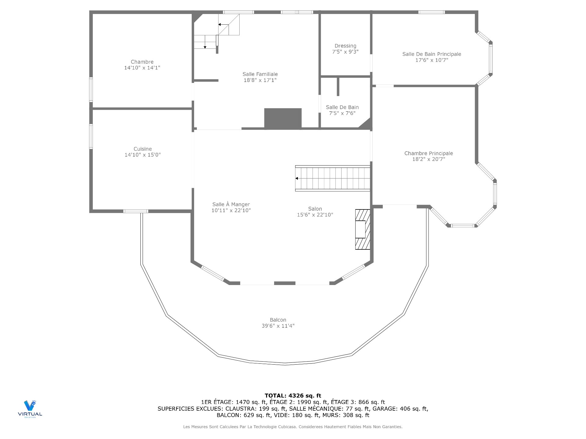
Room dimension
| Room | Floor | Dimensions | Floor covering |
|---|---|---|---|
| Hallway | 1st level/Ground floor | 16.11x10.10 P | Ceramic tiles |
| Sitting nook | 1st level/Ground floor | 9.6x13.9 P | Ceramic tiles |
| Living room | 1st level/Ground floor | 12.11x17.1 P | Floating floor |
| Dining room | 1st level/Ground floor | 13.6x13.7 P | Floating floor |
| Kitchen | 1st level/Ground floor | 13.6x8.10 P | Floating floor |
| Solarium | 1st level/Ground floor | 23.7x9.7 P | Concrete |
| Home office | 1st level/Ground floor | 14.10x11.7 P | Floating floor |
| Bedroom | 1st level/Ground floor | 14.10x17.6 P | Floating floor |
| Laundry room | 1st level/Ground floor | 13.4x8.1 P | Floating floor |
| Bathroom | 1st level/Ground floor | 9.9x9.1 P | Floating floor |
| Living room | 2nd floor | 15.6x22.10 P | Wood |
| Dining room | 2nd floor | 10.11x22.10 P | Wood |
| Kitchen | 2nd floor | 14.10x15.0 P | Slate |
| Master bedroom | 2nd floor | 18.2x20.7 P | Wood |
| Bathroom | 2nd floor | 17.6x10.7 P | Ceramic tiles |
| Family room | 2nd floor | 18.8x17.1 P | Wood |
| Bedroom | 2nd floor | 14.10x14.1 P | Wood |
| Bathroom | 2nd floor | 7.5x7.6 P | Ceramic tiles |
| Sitting area | 3rd floor | 12.10x22.2 P | Wood |
| Home office | 3rd floor | 13.3x13.6 P | Wood |
| Bathroom | 3rd floor | 11.1x7.9 P | Ceramic tiles |
| Bedroom | 3rd floor | 10.11x17.9 P | Wood |
| Mezzanine | 3rd floor | 7.6x22.11 P | Wood |
Taxes and expenses
| School taxes | $852 |
| Municipal Taxes | $12,278 |
| Energy cost | $5,050 |
Building and interior of the property
| Bedrooms | 4 |
| Bathrooms | 4 |
| Number of rooms | 24 |
| Number of rooms above ground | 4 |
| Living area | 4572 SF |
| Expected delay of occupancy | 30 days |
| Items included in the sale | 24kw Generac generator, 2x propane tanks, 2x electric garage door openers, heat pump, bi-energy furnace, hot water tank. All main home appliances: Siemens refrigerator, built-in Siemens wine fridge, Siemens dishwasher, 2x built-in Siemens ovens, Siemens c |
| Dimension of the front of the building | 18.33 M |
| Dimension of the depth of building | 11.73 M |
| Land area | 7484.3 SM |
| Year built | 2008 |
| Municipal assessment (land) | $303,700 |
| Municipal assessment (building) | $881,000 |
| Municipal assessment (total) | $1,184,700 |
| Assessment year | 2025 |
| Irregular building | Yes |
| Driveway | Asphalt, Double width or more |
| Landscaping | Landscape |
| Basement foundation | Concrete slab on the ground |
| Heating system | Air circulation |
| Water supply | Artesian well |
| Heating energy | Bi-energy |
| Equipment available | Central vacuum cleaner system installation, Alarm system, Electric garage door, Other |
| Windows | PVC |
| Hearth stove | Wood fireplace, Wood burning stove |
| Garage | Heated, Fitted, Double width or more, Detached |
| Siding | Wood |
| Distinctive features | Navigable, Water access, Waterfront, Cul-de-sac, Wooded, Resort/Cottage, No neighbours in the back |
| Bathroom / Washroom | Adjoining to the master bedroom, Seperate shower |
| Available services | Fire detector |
| Basement | No basement |
| Parking | Outdoor, Garage |
| Sewage system | BIONEST system |
| Window type | Crank handle |
| Roofing | Asphalt shingles |
| Topography | Steep, Flat, Sloped |
| View | Water, Panoramic, Mountain |
| Zoning | Residential |
Addendum
| ++ Located on a 1.85-acre lot with 168 feet of frontage on |
| the prestigious McGregor Lake, this exceptional property, |
| built in 2008, offers over 4,572 sq.ft. of refined living |
| space spread across 3 storeys including a fully finished |
| garden level walk-out. With 4 bedrooms + 2 offices/dens, 4 |
| bathrooms, and a rare 3-car garage, this custom home |
| combines space, elegance, and functionality in a |
| breathtaking natural setting. Used to have an in-law/guest |
| suite |
| ++ This residence stands out for its unique architectural |
| design and quality materials: solid wood beams, substantial |
| door and window frames, sloped ceilings, a multifunctional |
| 4x7 ft central kitchen island, 32 linear feet of granite |
| countertops, and a wood-burning fireplace with an 18-ft |
| stone mantle. Attention to detail is evident on every level. |
| ++ Enjoy 51 windows, including several patio doors, that |
| flood the home with natural light. The house offers |
| spectacular views of McGregor Lake and the surrounding |
| mountains from nearly every room. Cathedral ceilings and |
| spacious rooms enhance the sense of grandeur and openness. |
| ++ This peaceful bayfront location offers a long dock and |
| deep waters, ideal for swimming or docking boats, along |
| with a private beach. Its exposure and orientation ensure |
| tranquility, privacy, and breathtaking views. |
| ++ Truly turnkey thanks to numerous recent upgrades: new |
| windows, high-efficiency heat pump, and a 24 kW generator |
| ensuring autonomy and year-round comfort. No detail has |
| been overlooked in delivering superior quality of life. |
| ++ The ground floor includes a full guest suite with |
| private bathroom and separate entrance--perfect for hosting |
| visitors or generating rental income. Versatile and |
| refined, this part of the home maintains the same high-end |
| finishes found throughout. |
| ++ The kitchen impresses with both its layout and |
| materials: high-end stainless steel appliances, granite |
| countertops, abundant storage, and a large island--ideal |
| for cooking, dining, or gathering. The heart of the home, |
| designed for culinary enthusiasts. |
| ++ The property includes an integrated double garage for |
| your vehicles, as well as a separate garage--perfect for |
| storing watercraft, seasonal equipment, or creating a |
| workshop. Four additional outdoor parking spaces complete |
| the offering. |
| ++ Located less than an hour from Ottawa, the property is |
| easily accessible via fully paved roads. The area offers |
| privacy, serenity, and a direct connection to |
| nature--without compromising on accessibility. |


































































































