$1,000,000
36 Ch. de la Montagne
L'Ange-Gardien
L'Ange-Gardien
Type
Two or more storey
Bedrooms
3
Living area
2470 PC
Bathrooms
3
MLS® 26018632
Details
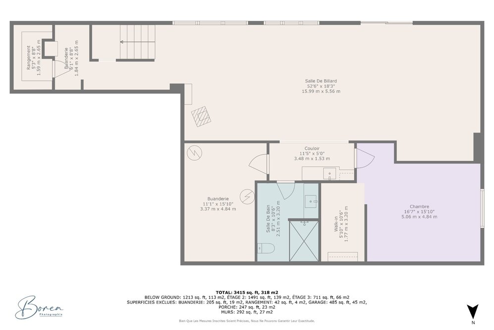
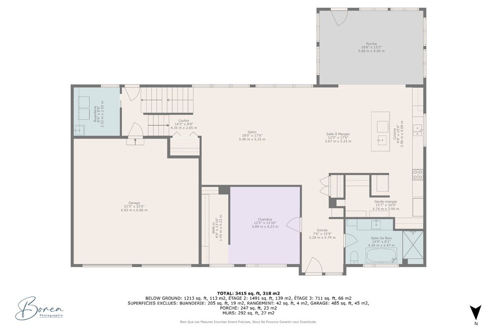
Room dimension
| Room | Floor | Dimensions | Floor covering |
|---|---|---|---|
| Hallway | 1st level/Ground floor | 7.6x15.9 P | Floating floor |
| Living room | 1st level/Ground floor | 18x17.6 P | Floating floor |
| Dining room | 1st level/Ground floor | 12x17.6 P | Floating floor |
| Kitchen | 1st level/Ground floor | 9.8x15.4 P | Floating floor |
| Other | 1st level/Ground floor | 15.7x10 P | Floating floor |
| Bathroom | 1st level/Ground floor | 14x8.1 P | Floating floor |
| Bedroom | 1st level/Ground floor | 12.9x13.10 P | Floating floor |
| Family room | 2nd floor | 14.2x16.1 P | Floating floor |
| Bathroom | 2nd floor | 7.10x11.3 P | Floating floor |
| Master bedroom | 2nd floor | 14.2x15.3 P | Floating floor |
| Laundry room | 3rd floor | 6.1x8.8 P | Floating floor |
| Storage | 3rd floor | 5.3x8.8 P | Floating floor |
| Family room | 3rd floor | 52.6x18.3 P | Floating floor |
| Laundry room | 3rd floor | 11.1x15.10 P | Floating floor |
| Bathroom | 3rd floor | 8.3x10.6 P | Ceramic tiles |
| Bedroom | 3rd floor | 16.7x15.10 P | Floating floor |
Taxes and expenses
| Municipal Taxes | $5,410 |
| School taxes | $716 |
Building and interior of the property
| Bedrooms | 3 |
| Bathrooms | 3 |
| Number of rooms | 20 |
| Number of rooms above ground | 3 |
| Living area | 2470 SF |
| Expected delay of occupancy | 90 days |
| Dimension of the front of the building | 30 M |
| Dimension of the depth of building | 18 M |
| Land area | 17001.4 SM |
| Dimension of the front of the land | 170 F |
| Dimension of the depth of the land | 117 F |
| Year built | 2021 |
| Municipal assessment (land) | $110,000 |
| Municipal assessment (building) | $903,200 |
| Municipal assessment (total) | $1,013,200 |
| Assessment year | 2025 |
| Irregular building | Yes |
| Irregular land | Yes |
| Heating system | Radiant |
| Water supply | Artesian well |
| Heating energy | Electricity |
| Equipment available | Central vacuum cleaner system installation |
| Windows | PVC |
| Foundation | Poured concrete |
| Hearth stove | Wood fireplace |
| Garage | Attached, Double width or more, Detached |
| Distinctive features | No neighbours in the back, Cul-de-sac |
| Pool | Heated, Above-ground |
| Bathroom / Washroom | Seperate shower |
| Basement | Finished basement |
| Parking | Garage |
| Sewage system | Purification field, Septic tank |
| Window type | Crank handle |
| Zoning | Residential |






































































