Gatineau (Gatineau)
Property description
South-facing waterfront home with panoramic river views, custom 2018 construction built to flood-zone standards, never flooded, concrete slab, no basement. Open-concept main floor with cathedral ceiling, stone feature wall and two-sided fireplace, radiant heated floors, large chef's kitchen and primary suite with two walk-in closets, luxury bathroom and direct access to the pool. Legal income unit on the second floor plus independent guest suite, ideal for family or rental. Resort-style backyard with heated in-ground pool, decks, gazebo, outdoor lounge with daybed, shed, storage building and potential to add a dock.
Details
Located near
Other, Highway, Cegep, Golf, Hospital, Park - green area, Elementary school, High school, Public transport, Bicycle path, Daycare centre
Room dimension
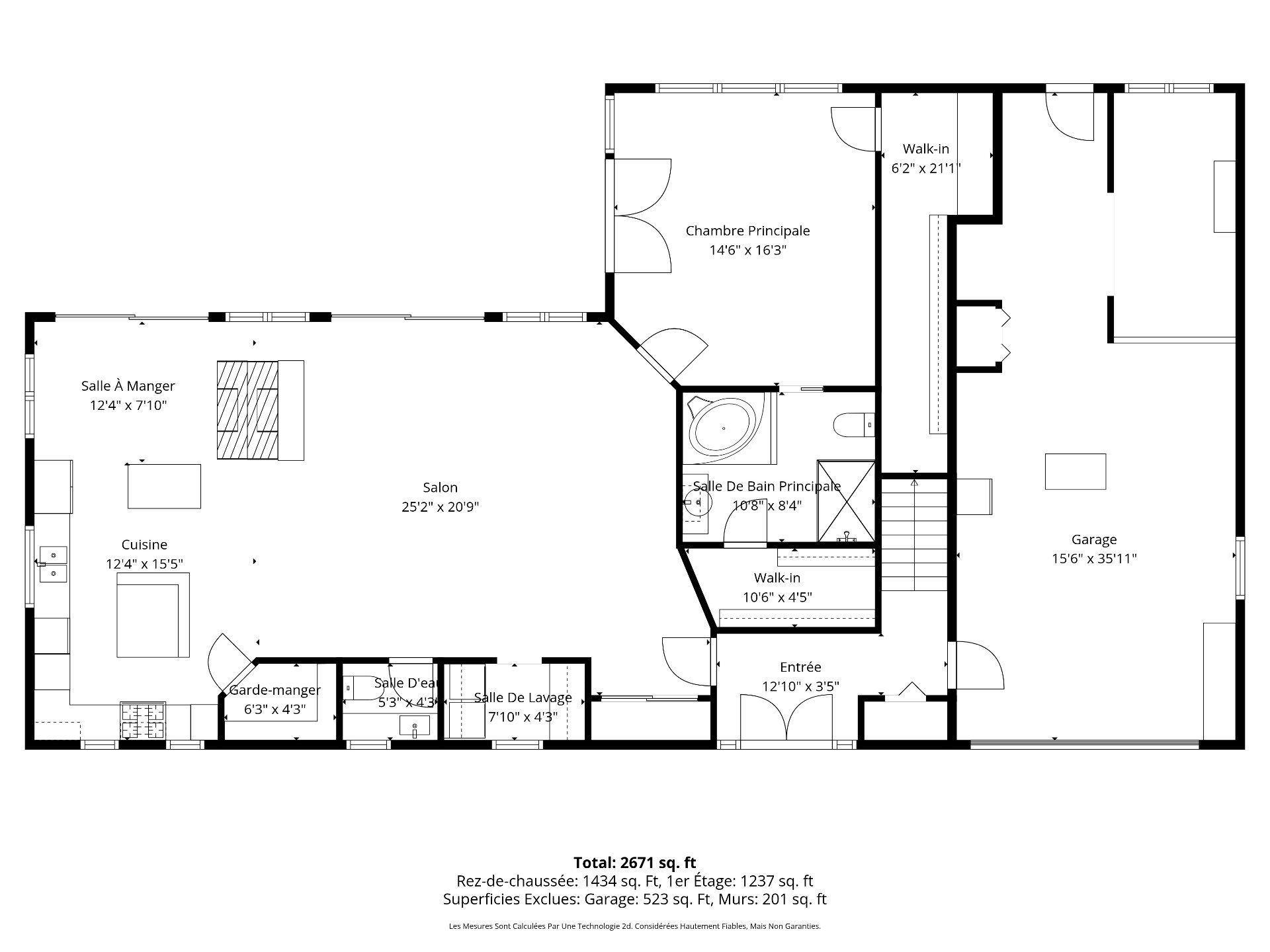
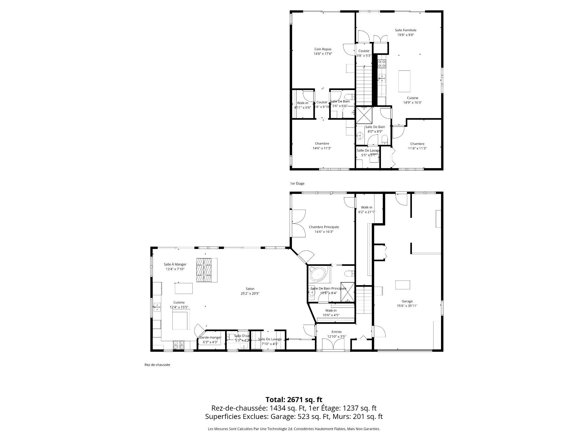
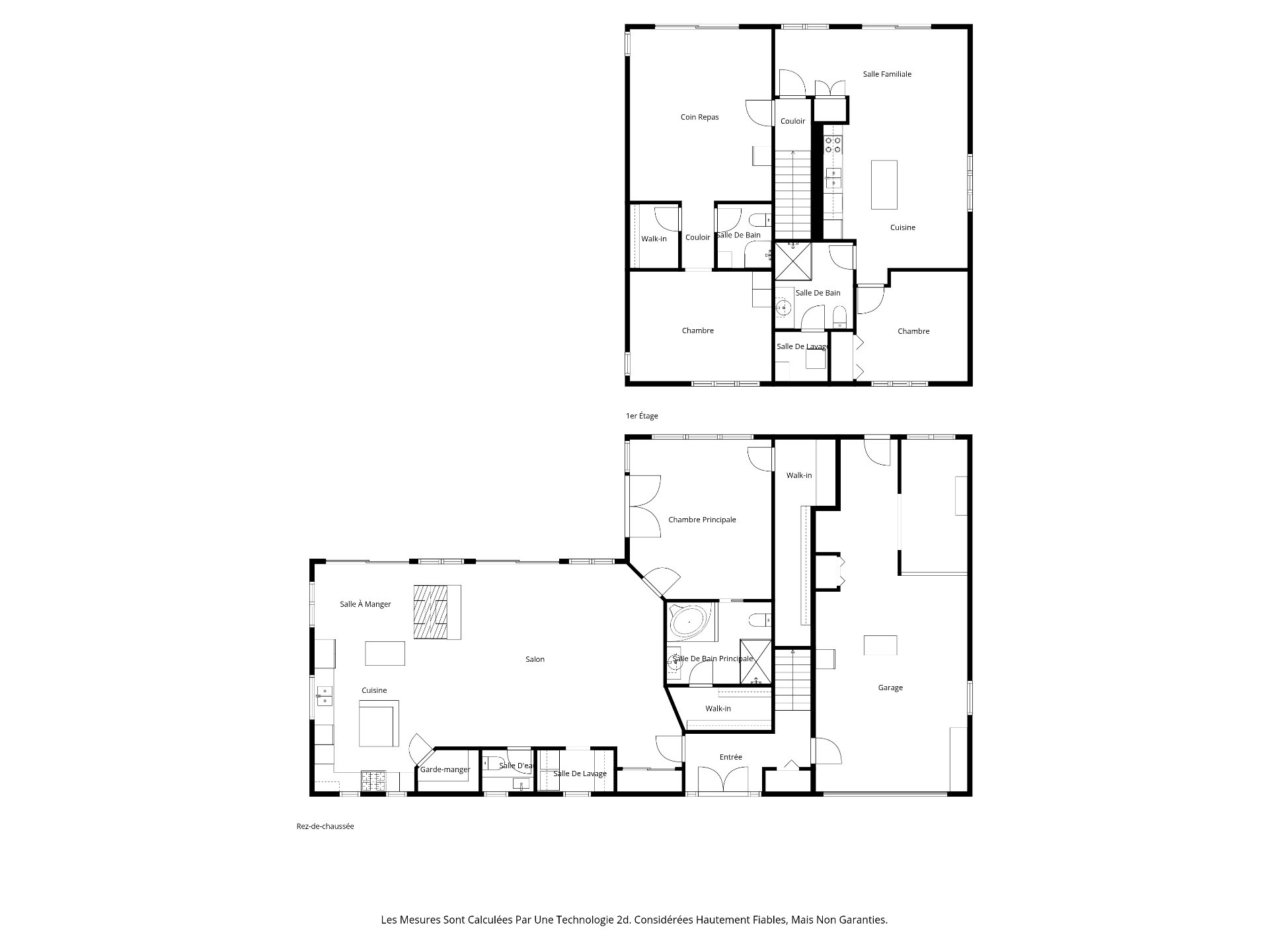
| Room | Floor | Dimensions | Floor covering |
|---|---|---|---|
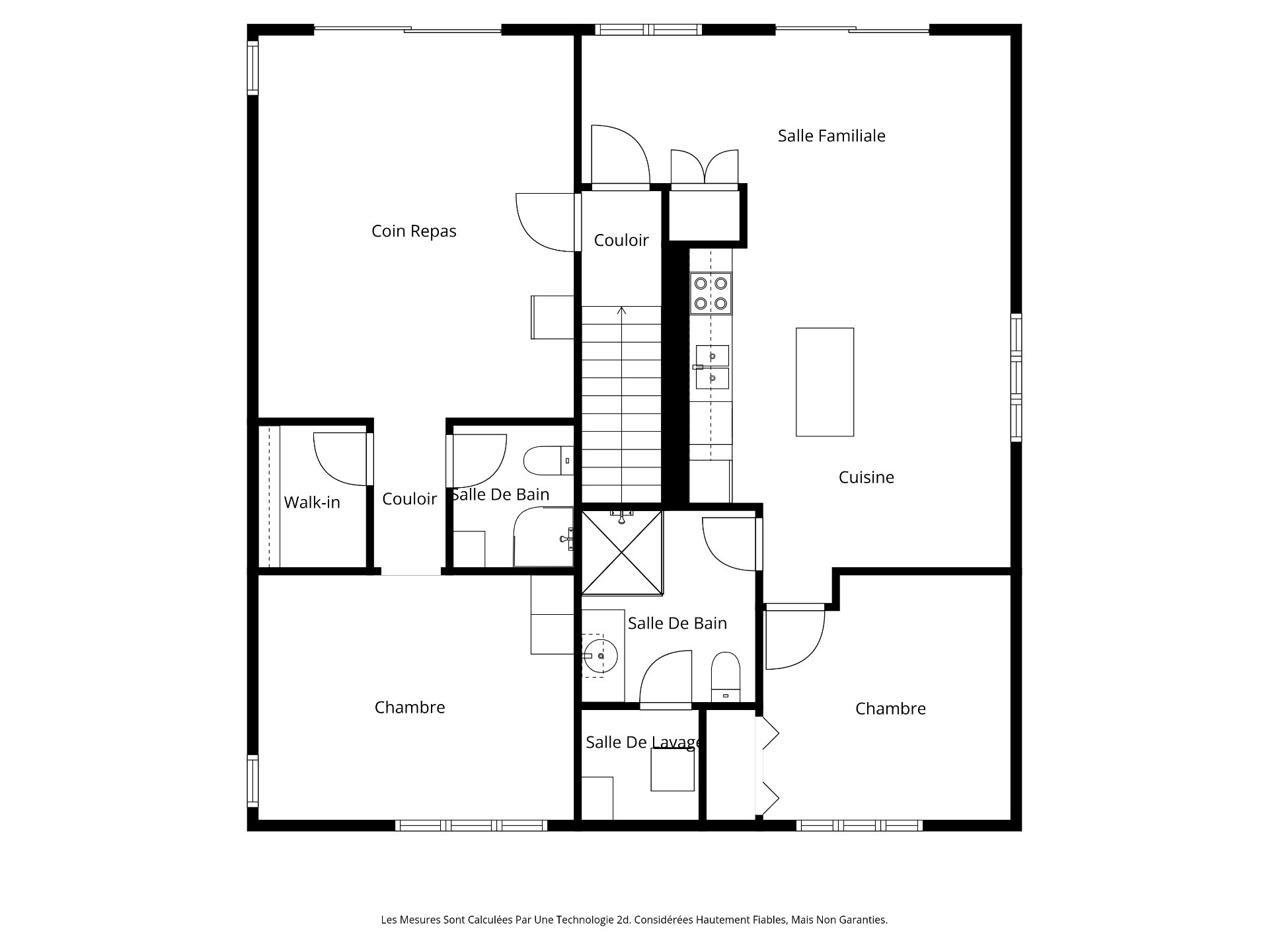
| Living room | 2nd floor | 13x11.1 P | Floating floor |
| Kitchen | 2nd floor | 15.9x8.6 P | Floating floor |
| Dining room | 2nd floor | 10.9x7.7 P | Floating floor |
| Bathroom | 2nd floor | 13.7x7.6 P | Ceramic tiles |
| Bedroom | 2nd floor | 11.9x11.6 P | Floating floor |
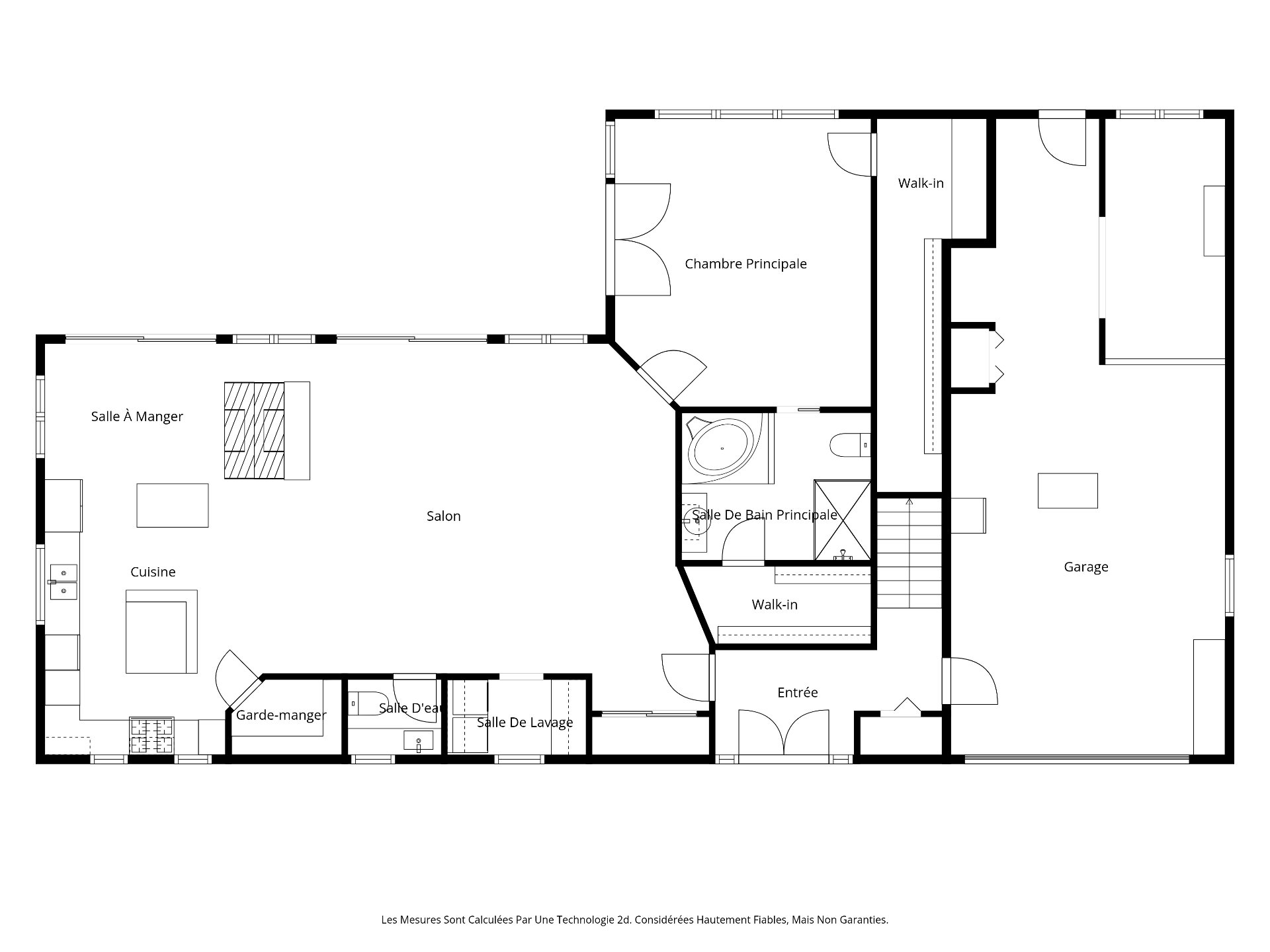
| Hallway | 1st level/Ground floor | 13.2x6.5 P | Ceramic tiles |
| Living room | 1st level/Ground floor | 24x19 P | Ceramic tiles |
| Kitchen | 1st level/Ground floor | 17x13.4 P | Ceramic tiles |
| Walk in pantry | 1st level/Ground floor | 5x4.6 P | Ceramic tiles |
| Dining room | 1st level/Ground floor | 8.6x6.10 P | Ceramic tiles |
| Master bedroom | 1st level/Ground floor | 16.1x15 P | Ceramic tiles |
| Bathroom | 1st level/Ground floor | 11.2x8 P | Ceramic tiles |
| Laundry room | 1st level/Ground floor | 8x5 P | Ceramic tiles |
| Washroom | 1st level/Ground floor | 5.9x5 P | Ceramic tiles |
| Family room | 2nd floor | 18.5x15.1 P | Floating floor |
| Bathroom | 2nd floor | 5.9x5.5 P | Ceramic tiles |
| Bedroom | 2nd floor | 15.2x11.2 P | Floating floor |
Taxes and expenses
| Municipal Taxes | $9,199 |
| School taxes | $797 |
Building and interior of the property
| Bedrooms | 3 |
| Bathrooms | 3 |
| Washrooms | 1 |
| Number of rooms | 14 |
| Number of rooms above ground | 3 |
| Living area | 3225 SF |
| Expected delay of occupancy | 60 days |
| Items included in the sale | 2 sided wood-burning fireplace , 3 wall-mounted heat pumps, air exchanger, in-ground pool 32 x 14 with accessories, pool heat pump, 2 water heaters, TV mount, generator, 2 refrigerators, 1 stove, 2 dishwashers, 1 washer, 1 dryer, 3 sheds, outdoor firewood |
| Items excluded in the sale | The stove on the main floor, the blue washer and dryer, the freezer and refrigerator in the main kitchen on the main floor, the dining room light fixture on the main floor, the ceiling fan in the primary bedroom, the propane tank for the stove is rented, |
| Land area | 1323 SM |
| Dimension of the front of the land | 28.96 M |
| Dimension of the depth of the land | 45.72 M |
| Year built | 2018 |
| Municipal assessment (land) | $462,500 |
| Municipal assessment (building) | $635,600 |
| Municipal assessment (total) | $1,098,100 |
| Assessment year | 2026 |
| Driveway | Double width or more |
| Landscaping | Landscape |
| Cupboard | Thermoplastic |
| Basement foundation | Concrete slab on the ground |
| Heating system | Electric baseboard units, Radiant |
| Water supply | Municipality |
| Heating energy | Electricity |
| Equipment available | Central vacuum cleaner system installation, Wall-mounted heat pump, Electric garage door, Other |
| Windows | PVC |
| Hearth stove | Wood fireplace |
| Garage | Attached, Double width or more, Heated |
| Siding | Stone, Vinyl |
| Distinctive features | Water access, Navigable, Intergeneration, Waterfront |
| Pool | Heated, Inground |
| Bathroom / Washroom | Adjoining to the master bedroom, Seperate shower |
| Available services | Fire detector |
| Basement | No basement |
| Parking | Outdoor, Garage |
| Sewage system | Municipal sewer |
| Window type | Crank handle |
| Roofing | Asphalt shingles |
| Topography | Flat |
| View | Water, Panoramic |
| Zoning | Residential |
Addendum
| · Waterfront, south-facing yard with panoramic river views, |
| never flooded, 2018 custom flood-compliant construction on |
| concrete slab, no basement, no sump pump. |
| · In the same family for over three generations, rebuilt |
| after 2017 with quality materials and modern comfort. |
| · 3 bedrooms, 3.5 bathrooms, approx. 3,325 sq. ft., |
| multi-generational layout with legal upper apartment and |
| separate guest suite. |
| · Open concept main floor with cathedral ceilings, |
| oversized fans, stone feature wall and two-sided fireplace |
| that can also be used for cooking. |
| · Large chef's kitchen: stainless steel and wood counters, |
| oversized island with seating, second island with wine |
| racks, walk-in pantry, appliance garages, spice drawer, |
| pull- |
| outs, propane or electric stove hookup, space for upright |
| fridge and freezer, country sink, paneled dishwasher, |
| central-vac kick plate. |
| · Primary suite facing the river with garden doors to patio |
| and heated in-ground pool, 2 walk-in closets, luxurious |
| ensuite with soaker tub, large glass shower and |
| makeup/vanity area. |
| · Exceptional outdoor living: heated in-ground pool with |
| diving stone, gazebo, 2 large decks overlooking the river, |
| pond, fire pit, pergola under mature maple, circular nook |
| poolside for drinks and meals, mature landscaping, flowers, |
| crabapple tree, fully fenced backyard. |
| · Interlock patio for large dining table or full outdoor |
| living area ideal for an outdoor kitchen; pool shed with |
| outdoor shower and potential changing room; wood shed plus |
| large storage/garden shed with extended sleeping nook |
| designed for a queen mattress for naps or camping by the |
| river. |
| · Dock can easily be added for boating, fishing, water |
| sports and swimming. |
| · Main floor with radiant heated concrete floors (17 zones |
| including garage) for maximum comfort; two hot water tanks |
| (up/down). |
| · Heated double garage with automatic opener and flexible |
| small office (non-permanent walls) with river view and door |
| to quiet rear deck. |
| · Legal second-floor apartment: open concept living/dining, |
| galley kitchen, south-facing balcony, king-size bedroom, |
| glass shower with grab bars, separate laundry, all |
| appliances included; previously rented 32+ days at approx. |
| $2,300/month and can be reintegrated into the main home. |
| · Separate second-floor guest suite: large bedroom, |
| walk-in, bathroom with shower, living area facing the river |
| with Juliet balcony, workspace, eating area, snack station |
| with fridge -- ideal for teen, young adult, friends or |
| parents. |
| · Comfort systems: radiant floors on main, baseboards |
| upstairs with wall thermostats, heat pumps and A/C with |
| individual heads for each living space, concrete slab, |
| flood-compliant design, never flooded. |
| · Exterior & parking: circular driveway, parking for up to |
| 6 vehicles including dedicated space for apartment, mature |
| trees, landscaped front and back yards, no neighbor in |
| front and zoning prohibiting future construction. |
| *Location: quiet street on Route Verte. |























































