$1,295,000
8 Rue St-Andrews
Morin-Heights
Morin-Heights
Type
One-and-a-half-storey house
Bedrooms
3
Living area
2284 PC
Bathrooms
3
MLS® 9557899
Details
Located near
Golf, Park - green area, Elementary school, Bicycle path, Alpine skiing, Cross-country skiing, Daycare centre
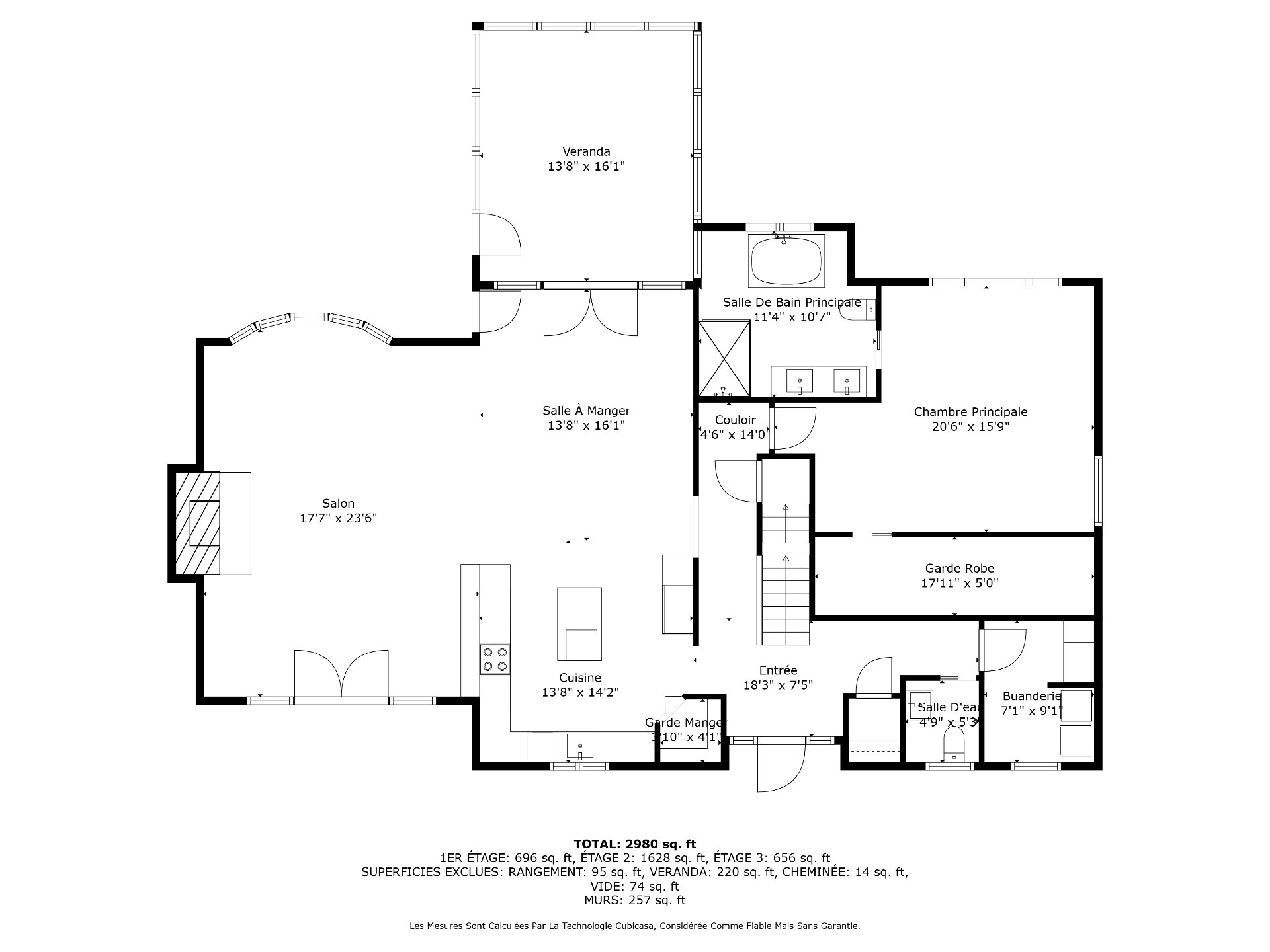
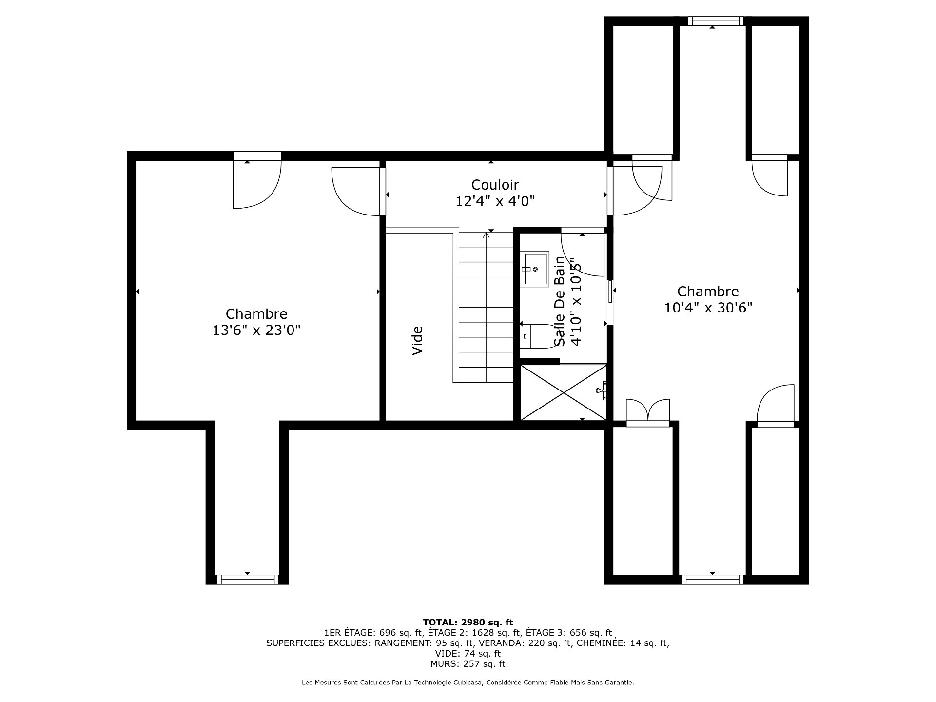
Room dimension
| Room | Floor | Dimensions | Floor covering |
|---|---|---|---|
| Hallway | 1st level/Ground floor | 7.4x5.0 P | Ceramic tiles |
| Kitchen | 1st level/Ground floor | 13.3x13.3 P | Wood |
| Dining room | 1st level/Ground floor | 13.1x13.1 P | Wood |
| Living room | 1st level/Ground floor | 22.9x18.1 P | Wood |
| Master bedroom | 1st level/Ground floor | 17.4x15.6 P | Wood |
| Bathroom | 1st level/Ground floor | 10.10x10.8 P | Ceramic tiles |
| Washroom | 1st level/Ground floor | 4.9x5.2 P | Ceramic tiles |
| Laundry room | 1st level/Ground floor | 6.2x9.0 P | Ceramic tiles |
| Bedroom | 2nd floor | 13.7x14.9 P | Wood |
| Bedroom | 2nd floor | 10.6x14.9 P | Wood |
| Bathroom | 2nd floor | 5.0x10.8 P | Ceramic tiles |
| Family room | Basement | 22.10x21.10 P | Floating floor |
| Bathroom | Basement | 7.8x6.4 P | Ceramic tiles |
| Storage | Basement | 11.6x6.2 P | Floating floor |
| Other | Basement | 10.9x5.6 P | Floating floor |
Taxes and expenses
| Municipal Taxes | $5,845 |
| School taxes | $576 |
Building and interior of the property
| Bedrooms | 3 |
| Bathrooms | 3 |
| Washrooms | 1 |
| Number of rooms | 14 |
| Number of rooms above ground | 3 |
| Living area | 2284 SF |
| Expected delay of occupancy | 68 days |
| Dimension of the front of the building | 58 F |
| Dimension of the depth of building | 32 F |
| Land area | 29369 SF |
| Dimension of the front of the land | 147 F |
| Dimension of the depth of the land | 214 F |
| Year built | 1998 |
| Municipal assessment (land) | $327,400 |
| Municipal assessment (building) | $625,200 |
| Municipal assessment (total) | $952,600 |
| Assessment year | 2025 |
| Irregular building | Yes |
| Area of the building | 1856 SF |
| Irregular land | Yes |
| Driveway | Asphalt |
| Landscaping | Landscape |
| Heating system | Air circulation |
| Water supply | Municipality |
| Heating energy | Electricity |
| Equipment available | Other, Alarm system, Electric garage door, Ventilation system, Central air conditioning |
| Windows | Wood |
| Foundation | Poured concrete |
| Hearth stove | Wood fireplace |
| Garage | Attached, Double width or more |
| Siding | Other, Stone |
| Distinctive features | No neighbours in the back, Cul-de-sac, Wooded |
| Bathroom / Washroom | Adjoining to the master bedroom, Seperate shower |
| Basement | Finished basement |
| Parking | Outdoor, Garage |
| Sewage system | Other |
| Window type | Crank handle |
| Roofing | Asphalt shingles |
| View | Other |
| Zoning | Residential |











































