Gatineau (Gatineau)
Description de la propriété
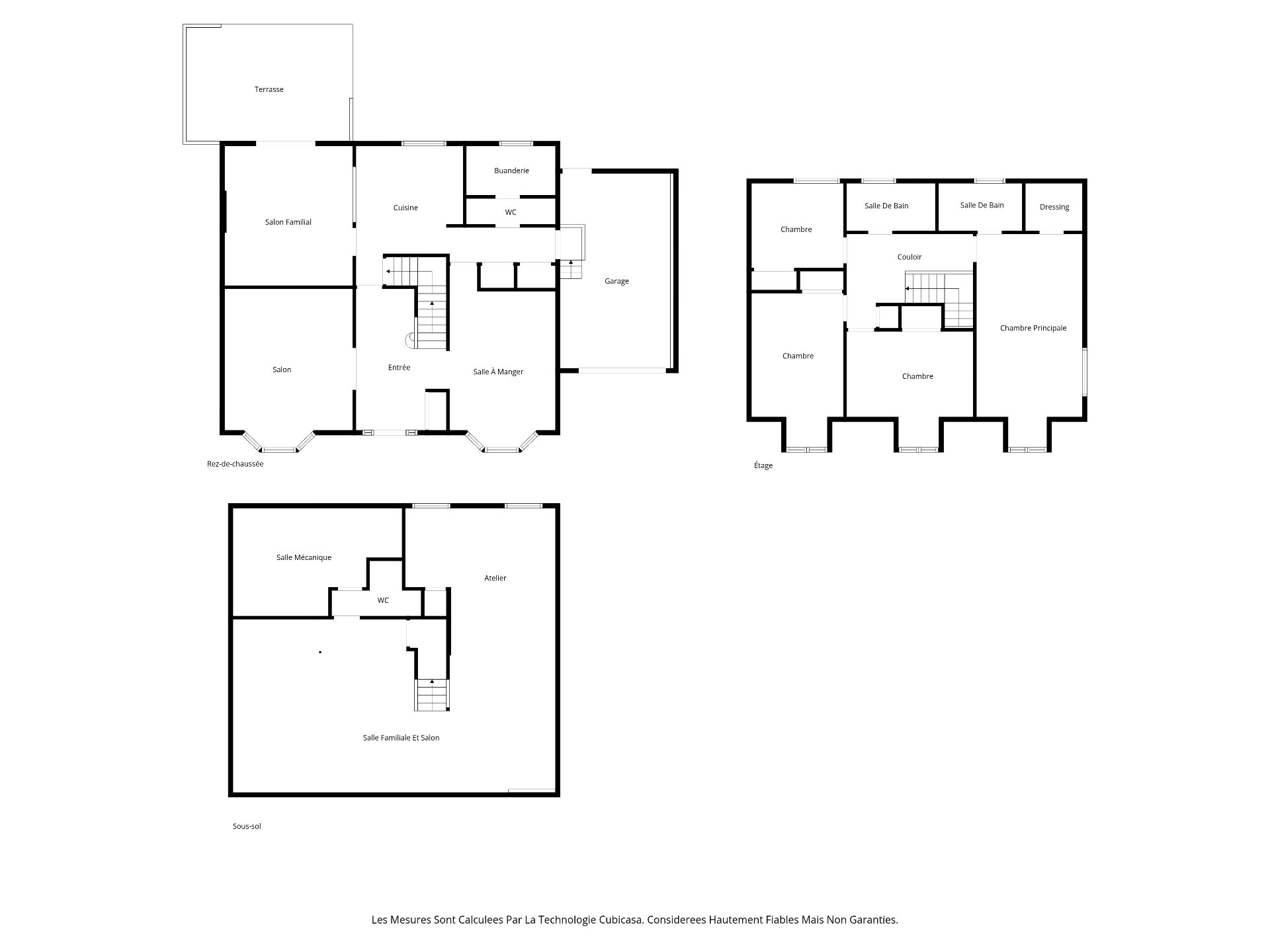
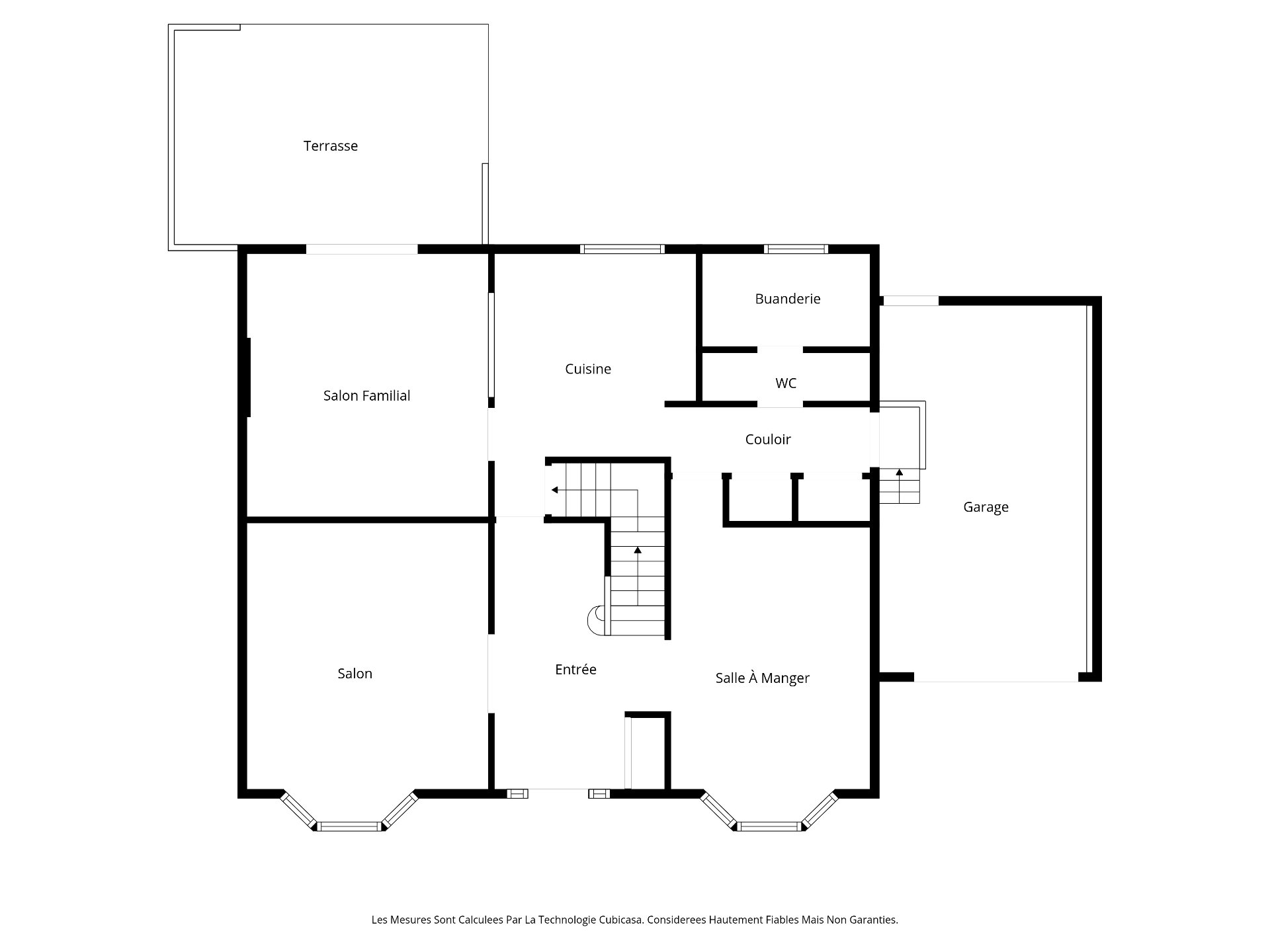
Impeccable propriété de 2275 p.c. dans le secteur prisé de la Côte d'Azur, entretenue avec soin par les mêmes propriétaires depuis 1980. Terrain de 7350 p.c. Rare : 4 chambres à l'étage et 2 salles de bain complètes, dont une attenante à la suite principale. Le RDC offre 2 grands salons, une cuisine modernisée, une salle à manger formelle et une salle de lavage distincte. Sous-sol totalement aménagé : vaste salle familiale, salon supplémentaire, atelier, salle d'eau et rangement abondant. Garage intégré. Emplacement de choix, à proximité de tous les services. Une opportunité rare alliant espace et prestige
Détails
Proximité
Autoroute/Voie rapide, Parc-espace vert, École primaire, École secondaire, Transport en commun, Piste cyclable, Garderie/CPE
Dimension des pièces
| Pièce | Niveau | Dimensions | Couvre plancher |
|---|---|---|---|
| Cuisine | 1er niveau/RDC | 11.2x11.6 P | Bois |
| Salle à manger | 1er niveau/RDC | 11.3x15.2 P | Parqueterie |
| Salon | 1er niveau/RDC | 13.7x14.9 P | Parqueterie |
| Salle familiale | 1er niveau/RDC | 13.7x14.8 P | Parqueterie |
| Salle d'eau | 1er niveau/RDC | 2.7x9.3 P | Couvre-sol souple |
| Salle de lavage | 1er niveau/RDC | 5.2x9.3 P | Couvre-sol souple |
| Hall d'entrée | 1er niveau/RDC | 4.4x7.0 P | Céramique |
| Chambre à coucher principale | 2ième étage | 11.6x20.0 P | Parqueterie |
| Salle de bains | 2ième étage | 4.9x9.1 P | Céramique |
| Chambre à coucher | 2ième étage | 9.7x13.4 P | Parqueterie |
| Chambre à coucher | 2ième étage | 9.5x13.3 P | Parqueterie |
| Chambre à coucher | 2ième étage | 9.2x9.7 P | Parqueterie |
| Salle de bains | 2ième étage | 4.9x9.2 P | Céramique |
| Salle familiale | Sous-sol | 17.6x19.4 P | Tapis |
| Salon | Sous-sol | 11.2x14.0 P | Tapis |
| Salle d'eau | Sous-sol | 5.7x6.5 P | Couvre-sol souple |
| Atelier | Sous-sol | 10.7x15.1 P | Couvre-sol souple |
| Rangement | Sous-sol | 11.0x14.2 P | Béton |
Taxes et dépenses
| Taxes municipales | 5 071 $ |
| Taxes scolaires | 455 $ |
Bâtiment et intérieur de la propriété
| Chambres | 4 |
| Salles de bain | 2 |
| Salles d'eau | 2 |
| Nombre de pièces | 18 |
| Nombre de chambres hors sol | 4 |
| Aire habitable | 2275 PC |
| Éléments inclus lors de la vente | Stores, tringles à rideaux et rideaux, lave-vaisselle, réfrigérateur, aspirateur central et accessoires, trois haut-parleurs au plafond au sous-sol, déshumidificateur, chauffe-eau, abri-soleil et remise. |
| Dimension de la façade du bâtiment | 48.7 P |
| Dimension de la profondeur du bâtiment | 31.5 P |
| Superficie du terrain | 682.8 MC |
| Dimension de la façade du terrain | 70 P |
| Dimension de la profondeur du terrain | 105 P |
| Année de construction | 1977 |
| Évaluation municipale (terrain) | 310 900 $ |
| Évaluation municipale (bâtiment) | 345 800 $ |
| Évaluation municipale (total) | 656 700 $ |
| Année d'évaluation | 2026 |
| Superficie du bâtiment | 1137.5 PC |
| Allée | Asphalte, Double largeur ou plus |
| Aménagement du terrain | Clôturé, Paysager |
| Mode de chauffage | Air soufflé |
| Approvisionnement en eau | Municipalité |
| Énergie pour le chauffage | Électricité |
| Équipement disponible | Climatiseur central, Porte de garage électrique |
| Fondation | Béton coulé |
| Foyers-poêles | Foyer au bois |
| Garage | Attaché, Simple largeur |
| Revêtements | Aluminium, Brique |
| Salle de bains/salle d'eau | Attenante à la chambre principale |
| Sous-sol | Totalement aménagé |
| Stationnement | Extérieur, Au garage |
| Système d'égouts | Municipal |
| Toiture | Bardeaux d'asphalte |
| Topographie | En pente, Plat |
| Zonage | Résidentiel |
Addendas
| Prestige et espace au coeur de la Côte d'Azur -- Entretenue |
| avec fierté depuis 1980 ! |
| Découvrez cette imposante résidence de 2 275 pieds carrés |
| habitables, érigée sur un terrain de 7 350 pieds carrés |
| dans l'un des quartiers les plus recherchés. Cette |
| propriété est une rareté sur le marché : elle appartient |
| aux mêmes propriétaires depuis 1980, témoignant d'un |
| entretien méticuleux et d'un amour soutenu au fil des |
| décennies. |
| Points forts du rez-de-chaussée : |
| Dès l'entrée, vous serez impressionné par les volumes. Le |
| rez-de-chaussée propose deux grands salons distincts, |
| offrant une flexibilité parfaite pour une salle de séjour |
| formelle et un coin détente plus décontracté. La cuisine, |
| modernisée avec goût, s'ouvre sur une salle à manger |
| formelle idéale pour recevoir. Une salle de lavage |
| indépendante avec salle d'eau complète ce niveau pour un |
| maximum de commodité. |
| L'étage -- Un aménagement idéal pour la famille : |
| Fait rare, l'étage supérieur compte quatre chambres à |
| coucher sur le même niveau. La chambre principale est un |
| véritable sanctuaire, dotée de sa propre salle de bain |
| attenante. Une deuxième salle de bain complète dessert les |
| autres chambres, évitant ainsi les bouchons matinaux. |
| Sous-sol et espaces techniques : |
| Le sous-sol est entièrement aménagé et offre un espace de |
| vie supplémentaire considérable. Vous y trouverez une |
| immense salle familiale, un autre salon polyvalent, un |
| atelier pour vos projets et un vaste espace de rangement. |
| Une salle d'eau additionnelle s'y trouve également. |
| Extérieur et localisation : |
| Terrain : Un grand terrain de 7 350 p.c. offrant intimité |
| et espace pour vos projets d'aménagement. |
| Garage : Garage intégré pour protéger votre véhicule ou |
| offrir encore plus de rangement. |
| Secteur : Située dans le secteur privilégié de la Côte |
| d'Azur, à proximité immédiate des écoles, parcs, commerces |
| et services essentiels. |
| Cette maison allie à la perfection l'élégance classique, un |
| entretien rigoureux et un emplacement stratégique. Une |
| occasion unique pour une famille cherchant à s'établir dans |
| un quartier de prestige. |

























































