Gatineau (Gatineau)
Description de la propriété
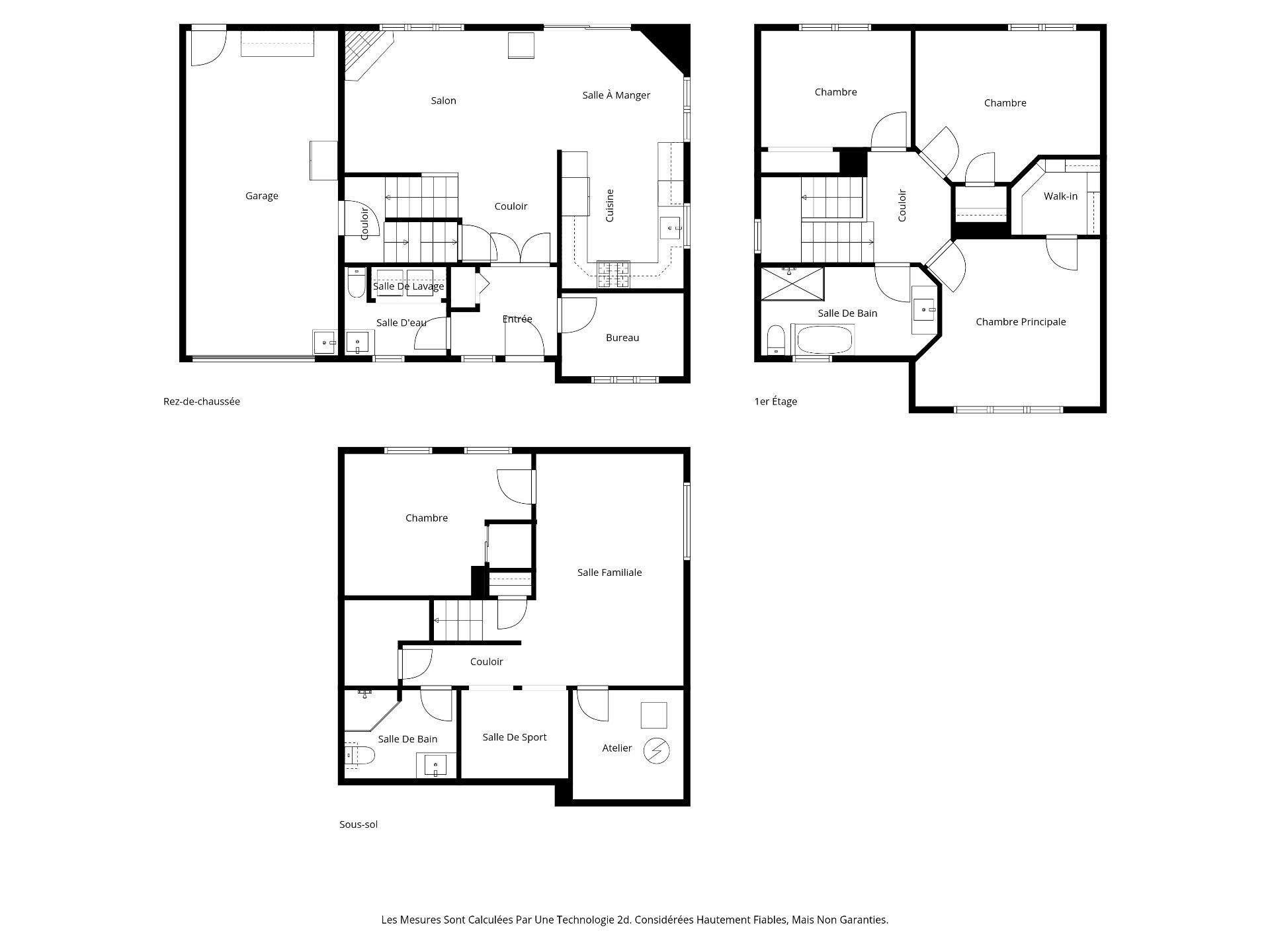
Charmante propriété de 4 chambres à coucher située dans le secteur Limbour, Gatineau. Concept à aire ouverte, 2 salles de bains avec douche indépendante, 1 salle d'eau, 1 bureau, foyer au gaz, plancher de bois franc & céramique, fenestration abondante et sous-sol complètement aménagé. Grand terrain clôturé avec piscine chauffée hors terre, patio, pergola et aucun voisin arrière. Garage simple et entrée asphaltée. Secteur très paisible et près des services essentiels (écoles, autobus, piste de randonnée, etc).
Détails
Proximité
Golf, Parc-espace vert, École primaire, École secondaire, Transport en commun, Piste cyclable, Garderie/CPE
Dimension des pièces
| Pièce | Niveau | Dimensions | Couvre plancher |
|---|---|---|---|
| Hall d'entrée | 1er niveau/RDC | 6.8x8 P | Céramique |
| Bureau à domicile | 1er niveau/RDC | 10x7.3 P | Céramique |
| Salle d'eau | 1er niveau/RDC | 8x6.9 P | Céramique |
| Salon | 1er niveau/RDC | 18x13.5 P | Bois |
| Salle à manger | 1er niveau/RDC | 12.5x9.9 P | Bois |
| Cuisine | 1er niveau/RDC | 11.7x9.10 P | Bois |
| Salle de bains | 2ième étage | 7.3x14 P | Céramique |
| Chambre à coucher | 2ième étage | 14x14 P | Plancher flottant |
| Chambre à coucher | 2ième étage | 15x11.10 P | Plancher flottant |
| Chambre à coucher | 2ième étage | 11.8x11.8 P | Plancher flottant |
| Salle familiale | Sous-sol | 17.8x11.9 P | Plancher flottant |
| Gym | Sous-sol | 10x8.7 P | Plancher flottant |
| Chambre à coucher | Sous-sol | 13.6x11 P | Plancher flottant |
| Salle de bains | Sous-sol | 6.6x7.4 P | Céramique |
| Rangement | Sous-sol | 3.2x6.5 P | Plancher flottant |
| Atelier | Sous-sol | 8.7x8.7 P | Couvre-sol souple |
Taxes et dépenses
| Taxes municipales | 5 279 $ |
| Taxes scolaires | 456 $ |
| Coût d'énergie | 3 040 $ |
Bâtiment et intérieur de la propriété
| Chambres | 4 |
| Salles de bain | 2 |
| Salles d'eau | 1 |
| Nombre de pièces | 18 |
| Nombre de chambres hors sol | 3 |
| Nombre de chambres au sous-sol | 1 |
| Aire habitable | 1297 PC |
| Délai d'occupation prévu | 60 jours |
| Éléments inclus lors de la vente | Cuisinière, micro-onde hotte, lave-vaisselle, luminaires, aspirateur central, spa extérieur, piscine & accessoires, fournaise, stores, tringle à rideaux, rideaux, pergola, supports à téléviseur (salon/chambres), tablette dans la chambre des maîtres, ouvre |
| Éléments exclus lors de la vente | Chauffe-eau (location), règles murale dans la salle à manger et voir la liste des possibilités d'inclusions. |
| Dimension de la façade du bâtiment | 8.86 M |
| Dimension de la profondeur du bâtiment | 12.49 M |
| Superficie du terrain | 7970 PC |
| Dimension de la façade du terrain | 15.06 M |
| Dimension de la profondeur du terrain | 49.17 M |
| Année de construction | 2000 |
| Évaluation municipale (terrain) | 251 300 $ |
| Évaluation municipale (bâtiment) | 414 000 $ |
| Évaluation municipale (total) | 665 300 $ |
| Année d'évaluation | 2026 |
| Allée | Asphalte, Double largeur ou plus |
| Aménagement du terrain | Clôturé, Patio |
| Armoires | Mélamine |
| Mode de chauffage | Air soufflé, Plinthes électriques |
| Approvisionnement en eau | Municipalité |
| Énergie pour le chauffage | Électricité, Gaz naturel |
| Équipement disponible | Installation aspirateur central, Porte de garage électrique, Échangeur d'air, Climatiseur central |
| Fenêtres | PVC |
| Fondation | Béton coulé |
| Foyers-poêles | Foyer au gaz |
| Garage | Attaché, Simple largeur, Chauffé |
| Revêtements | Brique, Vinyle |
| Particularités | Aucun voisin à l'arrière, Boisé |
| Piscine | Chauffée, Hors-terre |
| Salle de bains/salle d'eau | Douche indépendante |
| Sous-sol | 6 pieds et plus, Totalement aménagé |
| Stationnement | Extérieur, Au garage |
| Système d'égouts | Municipal |
| Type de fenêtre | Coulissante, Porte-fenêtre, Manivelle |
| Toiture | Bardeaux d'asphalte |
| Topographie | En pente, Plat |
| Zonage | Résidentiel |
Addendas
| 31 Rue François-Morin, Gatineau: |
| - Maison à étage |
| - Secteur: Limbour, Gatineau |
| - 4 chambres à coucher (3+1) |
| - 1 bureau |
| - 2 salles de bains |
| - 1 salle d'eau |
| - Plancher de bois franc & céramique (RDC) |
| - Foyer au gaz |
| - Fenestration abondante |
| - A/C central |
| - Chambres de bonne grandeur |
| - Sous-sol aménagé |
| - Chauffe-eau (2017 - location) |
| - Toiture (2017) |
| - Terrain clôturé |
| - Piscine hors terre chauffée |
| - Rangement extérieure |
| - Aucun voisin arrière |
| - Garage simple |
| - Entrée asphaltée |
| - Servitude d'égout et d'aqueduc sur le terrain publiée |
| sous le numéro 275 653 |























































