Gatineau (Hull)
Description de la propriété
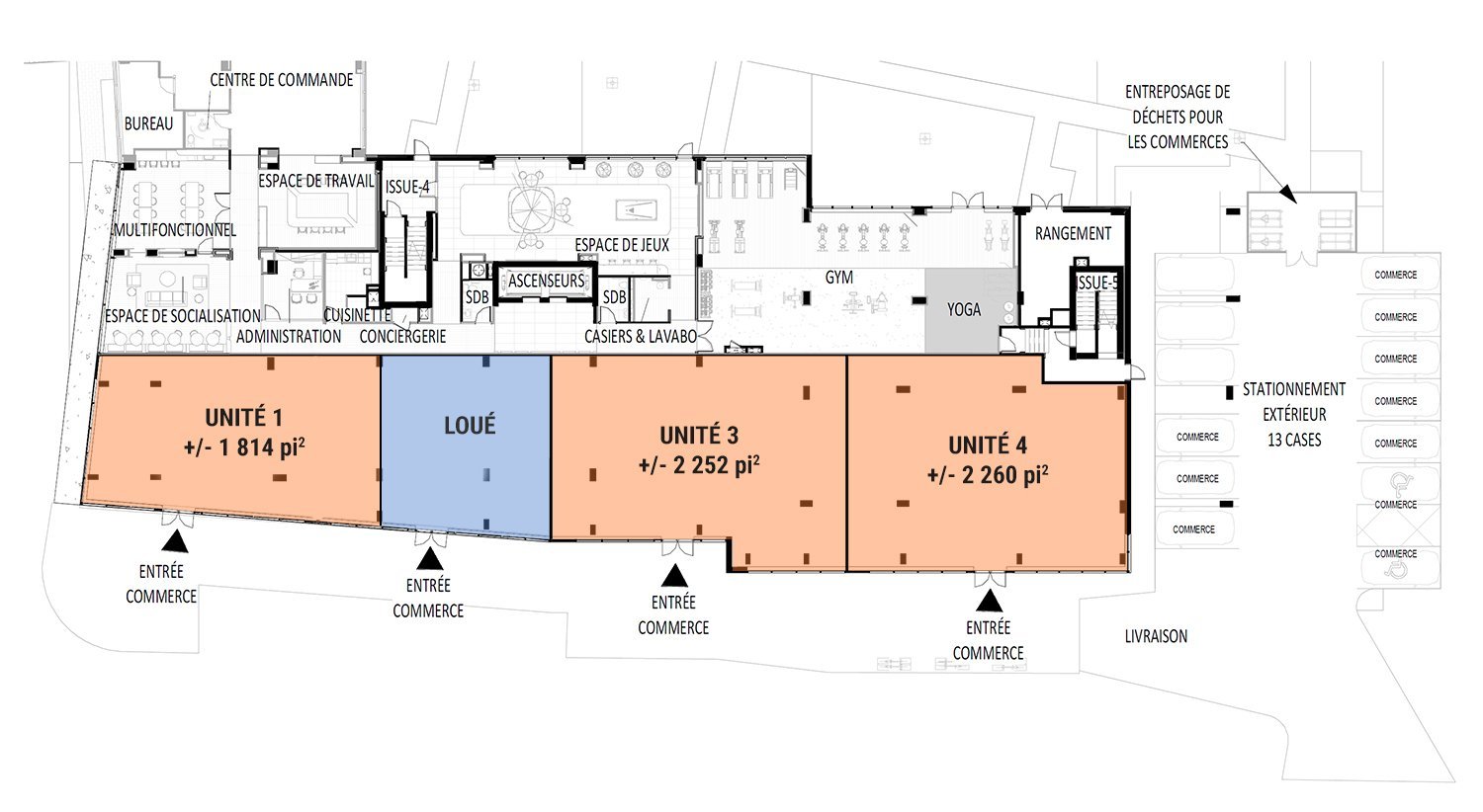
Espace commerciaux au rez-de-chaussée disponibles à la location dans le nouvel édifice "Bloome", qui compte 380 unités résidentielles. Situé à l'intersection du boulevard Saint-Joseph et du boulevard Montclair, cet emplacement bénéficie d'une bonne visibilité et d'un fort passage piéton. Vous serez à proximité de la Galerie de Hull, ainsi que de supermarchés, de pharmacies et d'une large sélection de restaurants, offrant ainsi un cadre dynamique pour votre entreprise. Se trouve à seulement 10 minutes du pont Portage qui mène à Ottawa. Un cadre parfait pour développer votre activité !
Détails
Proximité
Autoroute/Voie rapide, Transport en commun
Taxes et dépenses
| Taxes municipales | 125 279 $ |
| Taxes scolaires | 309 $ |
Bâtiment et intérieur de la propriété
| Délai d'occupation prévu | 15 jours |
| Superficie du terrain | 8573.7 MC |
| Dimension de la façade du terrain | 87.36 M |
| Dimension de la profondeur du terrain | 98.14 M |
| Année de construction | 2024 |
| Évaluation municipale (terrain) | 8 145 000 $ |
| Évaluation municipale (bâtiment) | 1 $ |
| Évaluation municipale (total) | 8 145 001 $ |
| Année d'évaluation | 2024 |
| Type de copropriété | Divise |
| Approvisionnement en eau | Municipalité |
| Système d'égouts | Municipal |
| Zonage | Commercial |
Addendas
| *** 304 Bd Saint-Joseph, Local 4, Gatineau, QC J8Y 3Y3 *** |
| Espaces commerciaux au rez-de-chaussée disponibles à la |
| location dans le nouvel édifice "Bloome", qui compte 380 |
| unités résidentielles. |
| Emplacement stratégique : Situé sur un boulevard fréquenté, |
| ce local bénéficie d'une bonne visibilité et d'un accès |
| facile, attirant ainsi plus de clients. |
| Proximité des services : Le secteur offre des commodités |
| telles que des restaurants, des magasins et des services, |
| ce qui est avantageux pour attirer les clients et les |
| employés. |
| Zone commerciale dynamique : Être dans une zone en |
| développement favorise la croissance de votre entreprise, |
| avec un potentiel d'augmentation de la clientèle. |
| Facilité d'accès : Un bon accès aux transports en commun et |
| aux routes principales facilite l'arrivée des clients et |
| des employés. |
| Possibilités de collaboration : Être à proximité d'autres |
| entreprises peut offrir des opportunités de partenariat ou |
| de collaboration. |
| Image de marque : Un local bien situé contribue à renforcer |
| l'image de marque de votre entreprise et à créer une |
| impression positive sur les clients. |
| Options d'aménagement : Selon le type de local, il peut y |
| avoir des possibilités d'aménagement pour répondre |
| spécifiquement à vos besoins commerciaux. |
| Cet emplacement est à seulement 10 minutes du pont Portage |
| qui mène à Ottawa. Un cadre parfait pour développer votre |
| activité ! |











