Gatineau (Gatineau)
Description de la propriété
Joli 2 étages de plus de 1500 pieds carrés, 3 chambres à coucher, situé dans le secteur de l'hopital. Vous y trouverez bois franc au salon, grande chambre principale, salle de bain avec bain romain et douche en coin. Une cour très privée, clôturée avec une belle remise. Secteur familial, près d'une école primaire
Détails
Proximité
Autoroute/Voie rapide, Hôpital, Parc-espace vert, École primaire, École secondaire, Transport en commun, Piste cyclable, Garderie/CPE
Dimension des pièces
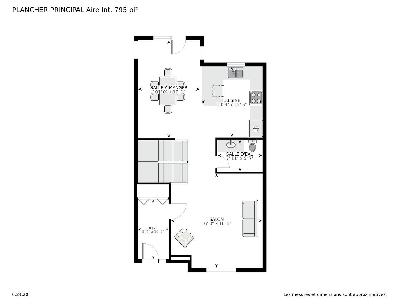
| Pièce | Niveau | Dimensions | Couvre plancher |
|---|---|---|---|
| Salon | 1er niveau/RDC | 14.9x11.6 P | Bois |
| Salle à manger | 1er niveau/RDC | 15.3x11.0 P | Céramique |
| Cuisine | 1er niveau/RDC | 11.3x9.3 P | Céramique |
| Salle d'eau | 1er niveau/RDC | 7.0x4.9 P | Céramique |
| Chambre à coucher principale | 2ième étage | 14.3x11.9 P | Plancher flottant |
| Chambre à coucher | 2ième étage | 10.3x9.0 P | Plancher flottant |
| Chambre à coucher | 2ième étage | 9.3x6.3 P | Plancher flottant |
| Salle de bains | 2ième étage | 12.3x7.9 P | Céramique |
| Salle familiale | Sous-sol | 30.0x9.11 P | Plancher flottant |
| Bureau à domicile | Sous-sol | 14.4x8.6 P | Plancher flottant |
Taxes et dépenses
| Taxes municipales | 3 455 $ |
| Taxes scolaires | 324 $ |
Bâtiment et intérieur de la propriété
| Chambres | 4 |
| Salles de bain | 1 |
| Salles d'eau | 1 |
| Nombre de pièces | 10 |
| Nombre de chambres hors sol | 3 |
| Nombre de chambres au sous-sol | 1 |
| Aire habitable | 1512 PC |
| Éléments inclus lors de la vente | Remise,lave-vaisselle, Laveuse, Sécheuse, échangeur d'air |
| Éléments exclus lors de la vente | Cuisinière, refrigerateur et objets appartenant au locataire |
| Dimension de la façade du bâtiment | 21.5 P |
| Dimension de la profondeur du bâtiment | 35.2 P |
| Superficie du terrain | 3234 PC |
| Dimension de la façade du terrain | 32.2 P |
| Dimension de la profondeur du terrain | 100.4 P |
| Année de construction | 1995 |
| Évaluation municipale (terrain) | 137 000 $ |
| Évaluation municipale (bâtiment) | 347 100 $ |
| Évaluation municipale (total) | 484 100 $ |
| Année d'évaluation | 2025 |
| Bâtiment irrégulier | Oui |
| Superficie du bâtiment | 756 PC |
| Terrain irrégulier | Oui |
| Allée | Asphalte |
| Mode de chauffage | Air soufflé |
| Approvisionnement en eau | Municipalité |
| Énergie pour le chauffage | Gaz naturel |
| Fenêtres | PVC |
| Fondation | Béton coulé |
| Appareils en location | Appareils de chauffage, Chauffe-eau |
| Revêtements | Brique, Vinyle |
| Salle de bains/salle d'eau | Autre |
| Sous-sol | 6 pieds et plus, Partiellement aménagé |
| Stationnement | Extérieur |
| Système d'égouts | Municipal |
| Toiture | Bardeaux d'asphalte |
| Zonage | Résidentiel |
































