Gatineau (Aylmer)
Description de la propriété
Superbe propriété de 5 chambres à coucher située dans le Plateau de la capitale. 2 salles de bains, 1 salle d'eau, grande cuisine avec îlot central, plancher de bois franc & céramique, fenestration abondante, foyer au gaz, chambre des maîtres avec walk-in & sdb et sous-sol complètement aménagé. Beaucoup d'inclusions. Terrain clôturé avec piscine creusée chauffée et rangement extérieur. Garage chauffé et entrée asphaltée double. Secteur de choix, très familial et près des services essentiels/parc de la Gatineau/autobus. 15 minutes d'Ottawa.
Détails
Proximité
Parc-espace vert, École primaire, École secondaire, Transport en commun, Piste cyclable, Ski de fond, Garderie/CPE
Dimension des pièces
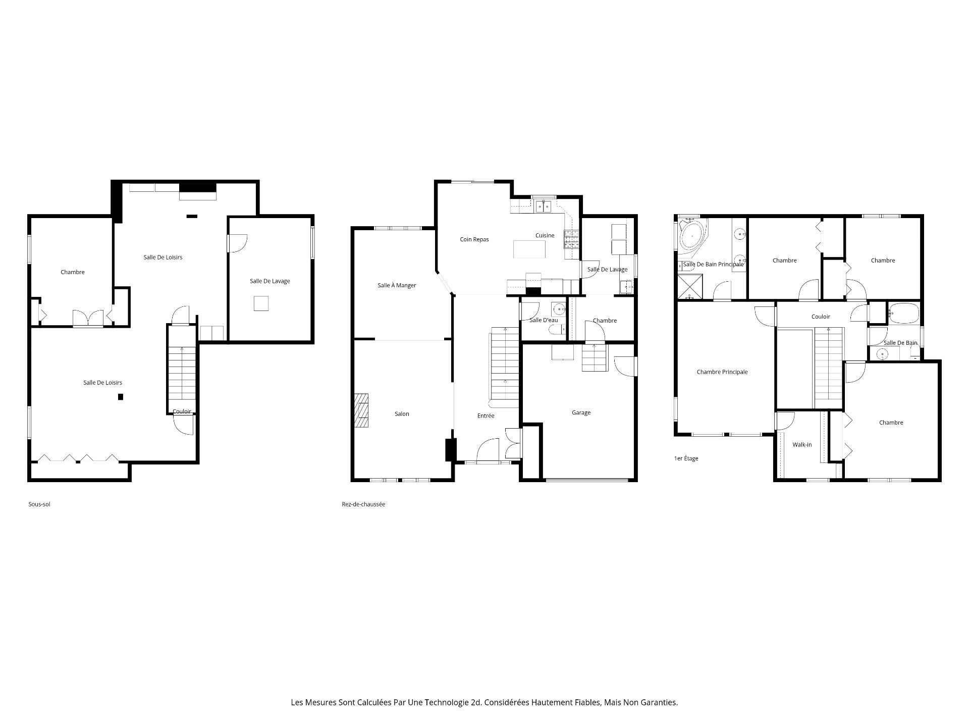
| Pièce | Niveau | Dimensions | Couvre plancher |
|---|---|---|---|
| Hall d'entrée | 1er niveau/RDC | 9.2x7.5 P | Céramique |
| Salon | 1er niveau/RDC | 21.1x13.3 P | Bois |
| Salle à manger | 1er niveau/RDC | 15.1x13.4 P | Bois |
| Cuisine | 1er niveau/RDC | 19.7x16 P | Céramique |
| Salle de lavage | 1er niveau/RDC | 10.1x6.7 P | Céramique |
| Salle d'eau | 1er niveau/RDC | 6.2x5.8 P | Céramique |
| Hall d'entrée | 1er niveau/RDC | 8.11x5.8 P | Céramique |
| Chambre à coucher principale | 2ième étage | 19x14.6 P | Bois |
| Salle de bains | 2ième étage | 11.1x9.11 P | Céramique |
| Chambre à coucher | 2ième étage | 11.4x10.5 P | Bois |
| Chambre à coucher | 2ième étage | 11.6x11.3 P | Bois |
| Chambre à coucher | 2ième étage | 13.5x11.6 P | Bois |
| Salle de bains | 2ième étage | 7.11x8 P | Céramique |
| Gym | Sous-sol | 24.2x18.9 P | Plancher flottant |
| Chambre à coucher | Sous-sol | 14.4x11.1 P | Plancher flottant |
| Salle familiale | Sous-sol | 19.7x15.11 P | Plancher flottant |
| Rangement | Sous-sol | 5.10x3 P | Plancher flottant |
| Atelier | Sous-sol | 15.1x9.10 P | Béton |
Taxes et dépenses
| Taxes municipales | 6 849 $ |
| Taxes scolaires | 646 $ |
| Coût d'énergie | 2 150 $ |
Bâtiment et intérieur de la propriété
| Chambres | 5 |
| Salles de bain | 2 |
| Salles d'eau | 1 |
| Nombre de pièces | 19 |
| Nombre de chambres hors sol | 4 |
| Nombre de chambres au sous-sol | 1 |
| Aire habitable | 2400 PC |
| Éléments inclus lors de la vente | Lave-vaisselle, poêle au gaz, frigidaire garage, frigidaire cuisine, chaufferette garage, aspirateur central + boyau, luminaires salle à manger & cuisine, tous les rideaux/stores, cadre escalier 2e, télévision sous-sol, laveuse, sécheuse, armoire mud room |
| Éléments exclus lors de la vente | Miroir d'entrée, étau sur établi sous-sol + outils, tablettes transparentes aux murs, location chauffe-eau (22.59$/mois) et location de la fournaise (40.95$/mois). |
| Dimension de la façade du bâtiment | 12.29 M |
| Dimension de la profondeur du bâtiment | 11.64 M |
| Superficie du terrain | 6521 PC |
| Dimension de la façade du terrain | 15.26 M |
| Dimension de la profondeur du terrain | 39.71 M |
| Année de construction | 2011 |
| Évaluation municipale (terrain) | 260 100 $ |
| Évaluation municipale (bâtiment) | 650 600 $ |
| Évaluation municipale (total) | 910 700 $ |
| Année d'évaluation | 2026 |
| Bâtiment irrégulier | Oui |
| Allée | Asphalte, Double largeur ou plus |
| Aménagement du terrain | Clôturé |
| Mode de chauffage | Air soufflé, Plinthes électriques |
| Approvisionnement en eau | Municipalité |
| Énergie pour le chauffage | Électricité, Gaz naturel |
| Équipement disponible | Installation aspirateur central, Thermopompe centrale, Système d'alarme, Porte de garage électrique, Échangeur d'air |
| Fenêtres | PVC |
| Fondation | Béton coulé |
| Foyers-poêles | Foyer au gaz |
| Garage | Attaché, Simple largeur, Chauffé |
| Revêtements | Brique, Vinyle |
| Piscine | Chauffée, Creusée |
| Salle de bains/salle d'eau | Attenante à la chambre principale, Douche indépendante |
| Sous-sol | 6 pieds et plus, Totalement aménagé |
| Stationnement | Extérieur, Au garage |
| Système d'égouts | Municipal |
| Type de fenêtre | Coulissante, Porte-fenêtre, Manivelle |
| Toiture | Bardeaux d'asphalte |
| Topographie | Plat |
| Zonage | Résidentiel |
Addendas
| 66 Rue de Munich, Gatineau: |
| - Maison à étages |
| - Secteur: Plateau de la Capitale |
| - Construction: 2011 |
| - 5 chambres à coucher |
| - 2 salles de bains |
| - 1 salle d'eau |
| - Foyer au gaz |
| - Grande cuisine avec îlot central |
| - Plancher de bois franc & céramique (RDC-2e) |
| - Chambre des maîtres avec sdb et walk-in |
| - Sous-sol aménagé avec gym et salle familiale |
| - Chauffe-eau (location) |
| - Fournaise (location) |
| - Thermopompe centrale |
| - Terrain clôturé |
| - Piscine creusée chauffée |
| - Rangement extérieur |
| - Toiture (2011) |
| - Garage simple chauffé |
| - Entrée asphaltée double |
| - Servitude de Bell, Hydro-Québec et Vidéotron affectant la |
| propriété |
| - Près des services essentiels |
| - Près du Parc de la Gatineau et des sentiers |
| - 15 minutes d'Ottawa |




































































