Val-des-Bois
Description de la propriété
Découvrez cette propriété riveraine avec plage sablonneuse, située dans une grande baie sur la Rivière du Lièvre. Profitez de dizaines de kilomètres navigables pour vos activités nautiques. Cette chaleureuse maison moderne 4 saisons offre une fenestration abondante, une vue spectaculaire sur l'eau, une orientation ouest pour admirer les couchers de soleil, et a été pensée pour minimiser l'entretien. Véranda avec spa, grande terrasse, plage privée et à moins d'une heure de la ville! Une perle rare!
Détails
Dimension des pièces
| Pièce | Niveau | Dimensions | Couvre plancher |
|---|---|---|---|
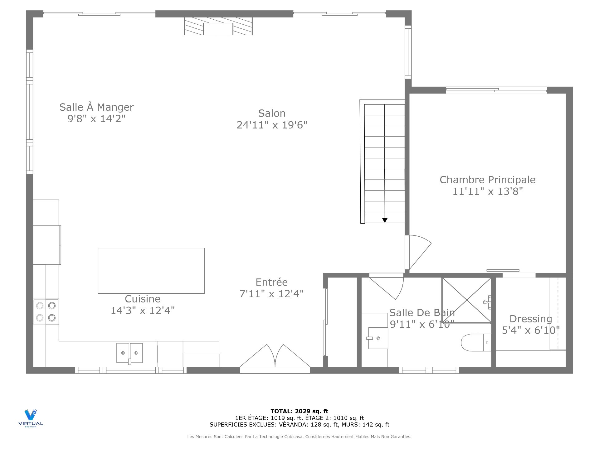
| Cuisine | 1er niveau/RDC | 14.5x12.6 P | Bois |
| Salle à manger | 1er niveau/RDC | 14.2x11.5 P | Bois |
| Salon | 1er niveau/RDC | 17.4x15.0 P | Bois |
| Salle de bains | 1er niveau/RDC | 10.0x6.6 P | Bois |
| Chambre à coucher principale | 1er niveau/RDC | 13.10x11.10 P | Bois |
Taxes et dépenses
| Taxes scolaires | 445 $ |
| Taxes municipales | 3 973 $ |
| Coût d'énergie | 2 530 $ |
Bâtiment et intérieur de la propriété
| Chambres | 2 |
| Salles de bain | 1 |
| Salles d'eau | 1 |
| Nombre de pièces | 11 |
| Nombre de chambres hors sol | 2 |
| Aire habitable | 209.03 MC |
| Délai d'occupation prévu | 45 jours |
| Éléments inclus lors de la vente | Cuisinière, réfrigérateur, lave-vaisselle, laveuse, sécheuse, quai, tous les meubles intérieurs et extérieurs n'étant pas visés par la liste d'exclusions, meuble-bar fixé dans la salle familiale, remise, remise à bois, spa avec ses accessoires, ainsi que |
| Éléments exclus lors de la vente | Voir section addenda de la mise en marché |
| Dimension de la façade du bâtiment | 8.62 M |
| Dimension de la profondeur du bâtiment | 12.91 M |
| Superficie du terrain | 16298.8 MC |
| Dimension de la façade du terrain | 39.78 M |
| Dimension de la profondeur du terrain | 357.19 M |
| Année de construction | 2020 |
| Évaluation municipale (terrain) | 157 000 $ |
| Évaluation municipale (bâtiment) | 585 100 $ |
| Évaluation municipale (total) | 742 100 $ |
| Année d'évaluation | 2025 |
| Bâtiment irrégulier | Oui |
| Superficie du bâtiment | 104.52 MC |
| Terrain irrégulier | Oui |
| Allée | Double largeur ou plus, Non pavée |
| Aménagement du terrain | Paysager |
| Armoires | Polyester |
| Mode de chauffage | Autre, Plinthes électriques, Plinthes à convection |
| Approvisionnement en eau | Autre, Puits artésien |
| Énergie pour le chauffage | Électricité |
| Équipement disponible | Autre, Thermopompe murale, Échangeur d'air |
| Fenêtres | PVC |
| Fondation | Béton coulé |
| Foyers-poêles | Foyer au bois |
| Revêtements | Aluminium, Fibre pressée |
| Particularités | Boisé, Navigable, Bordé par l'eau |
| Restrictions/Permissions | Location court terme non permise |
| Salle de bains/salle d'eau | Douche indépendante |
| Services disponibles | Détecteur d'incendie |
| Sous-sol | Totalement aménagé, Entrée indépendante, Autre |
| Stationnement | Extérieur |
| Système d'égouts | Fosse septique, Puits sec (puisard) |
| Type de fenêtre | Coulissante, Manivelle |
| Toiture | Tôle |
| Topographie | En pente |
| Vue | Sur l'eau, Panoramique |
| Zonage | Résidentiel |
Addendas
| Propriété riveraine exceptionnelle située au 841 Route 309 |
| à Val-des-Bois, au bord de la Rivière du Lièvre, |
| directement connectée au Réservoir de l'Escalier. Cette |
| maison 4 saisons, construite pour le confort et la détente, |
| se démarque par sa localisation, sa conception à faible |
| entretien et son style moderne et chaleureux. |
| Caractéristiques principales : |
| - Terrain au bord de l'eau avec plage sablonneuse privée, |
| situé dans une grande baie calme, orientation plein ouest |
| offrant des couchers de soleil spectaculaires. |
| - Des dizaines de kilomètres navigables sur la rivière pour |
| vos activités nautiques préférées : kayak, motomarine, |
| bateau, pêche, etc. |
| - Conception à faible entretien : rampe en aluminium et |
| verre, toiture en tôle, balcon en aluminium, revêtement |
| extérieur en aluminium et fibre pressée. |
| - Puits artésien et système de traitement UV pour assurer |
| une eau potable de qualité. |
| - Cuisine fonctionnelle avec beaucoup de rangement et un |
| immense comptoir ilot, parfaite pour recevoir. |
| - Fenestration abondante dans pratiquement toutes les |
| pièces pour maximiser la vue sur la rivière. |
| - Stores électriques, plafonds cathédrale au |
| rez-de-chaussée pour une ambiance lumineuse et aérée. |
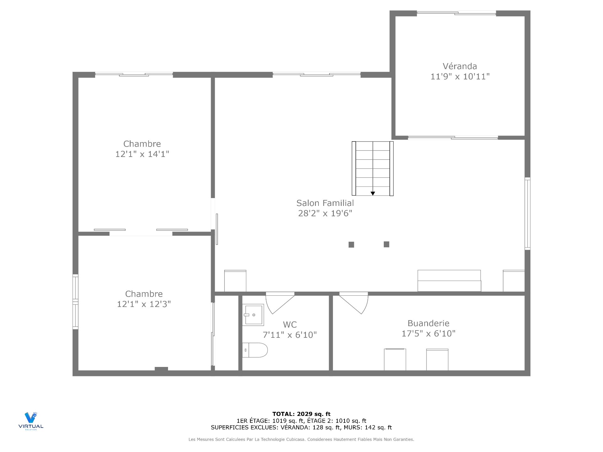
| - Terrasse sur chaque étages avec une véranda fermée |
| intégrant un SPA, idéale pour la détente toute l'année. |
| - Confort optimisé grâce à deux thermopompes murales |
| (chauffage et climatisation). |
| - Chambre principale avec garde-robe/penderie de type |
| walk-in. |
| - Accès facile et situé à moins d'une heure de |
| Gatineau/Ottawa, idéal comme résidence principale ou chalet |
| 4 saisons. |
| Que vous cherchiez un coin paisible pour vous évader ou une |
| résidence principale en nature sans compromis, cette |
| propriété saura vous charmer. Elle allie confort, |
| tranquillité, vue imprenable, et accès direct à l'eau. Une |
| opportunité rare dans la région! |
| INCLUSIONS - Voir section inclusion |
| EXCLUSIONS - Sont exclus de la vente, les biens suivants : |
| Chaises en velours noir de la salle à manger, buffet en |
| bois situé près de la rampe d'escalier au RDC, table |
| d'appoint en rondin au RDC, berceuse en cuir gris au salon, |
| ensemble de chambre à coucher du RDC, congélateur et |
| réfrigérateur situés au sous-sol, cellier du sous-sol, |
| l'ensemble de chambre du sous-sol (lit et matelas format |
| queen, table de chevet, commode brune à 5 tiroirs), matelas |
| king du sous-sol, chaise bergère blanche dans la chambre au |
| sous-sol, meubles/articles/équipements de bureau situés au |
| sous-sol, décorations, toiles, petits appareils |
| électroménagers de cuisine, équipements de cuisine, |
| vaisselle, coutellerie, draps, serviettes, |
| effets personnels, ensemble de patio et parasol, chaises |
| Adirondack, outils, équipements de jardinage, équipements |
| de sport. |






























































































