Gatineau (Gatineau)
Description de la propriété
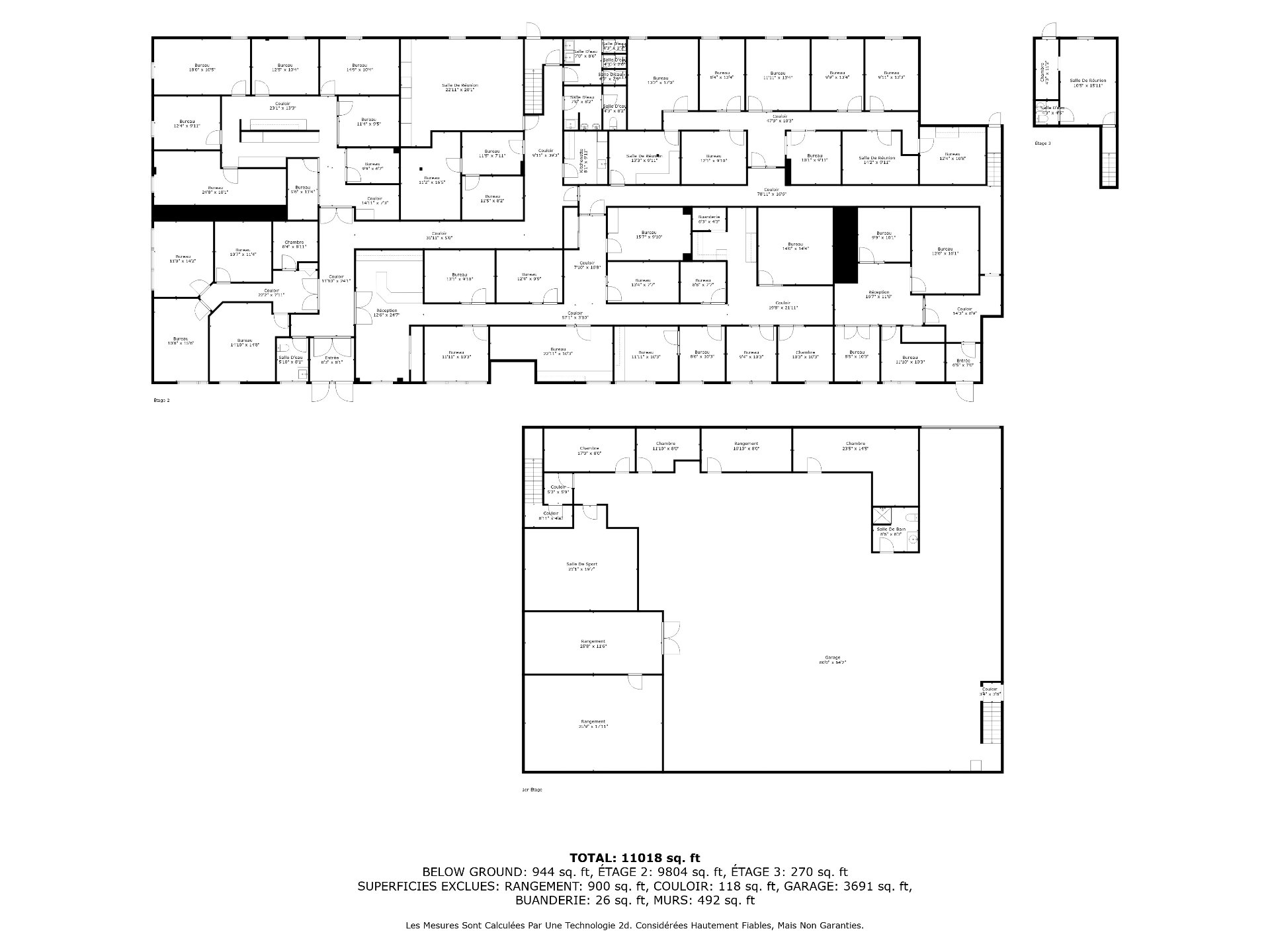
JUSTE DU WOW! Immeuble commercial/bureau de 16 000 pi² au coeur de Gatineau, à deux pas du centre-ville d'Ottawa. 10 000 pi² entièrement rénovés et loués à des bureaux professionnels; 3 600 pi² disponibles pour occupation immédiate. Extérieur modernisé et abondante fenestration pour lumière naturelle et visibilité. Stationnement souterrain et 40+ espaces. Adresse stratégique idéale pour entreprises recherchant accessibilité et image professionnelle.
Détails
Proximité
Autoroute/Voie rapide, Transport en commun
Taxes et dépenses
| Taxes municipales | 86 446 $ |
| Taxes scolaires | 2 057 $ |
Bâtiment et intérieur de la propriété
| Superficie du terrain | 4126.4 MC |
| Année de construction | 1989 |
| Évaluation municipale (terrain) | 1 865 500 $ |
| Évaluation municipale (bâtiment) | 618 700 $ |
| Évaluation municipale (total) | 2 484 200 $ |
| Année d'évaluation | 2025 |
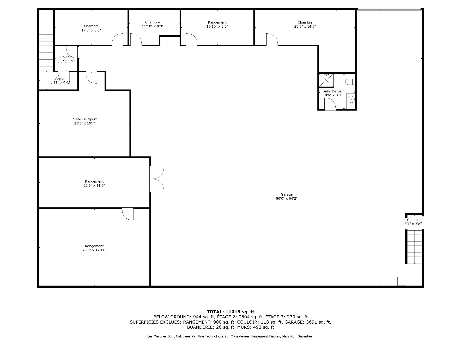
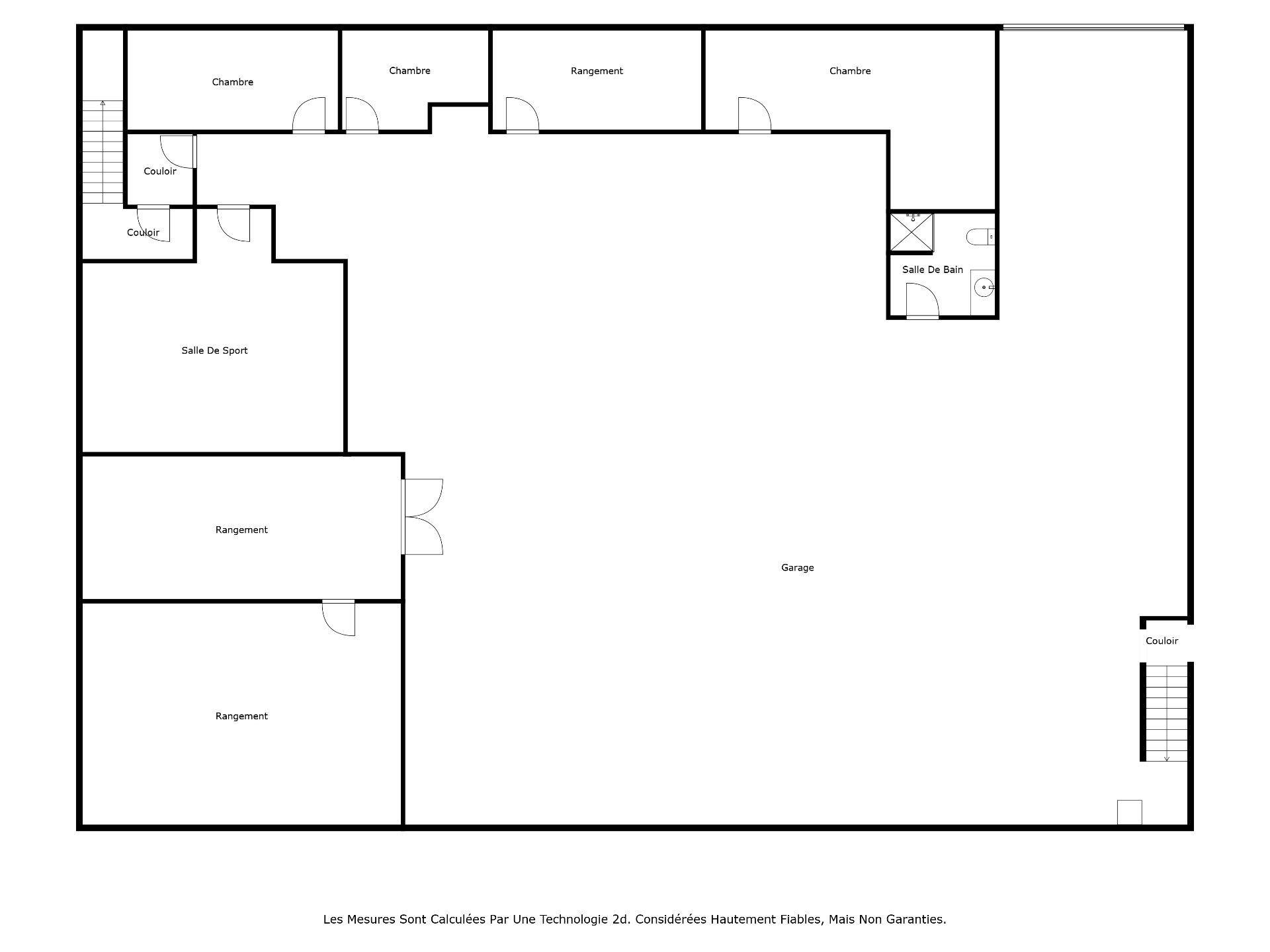
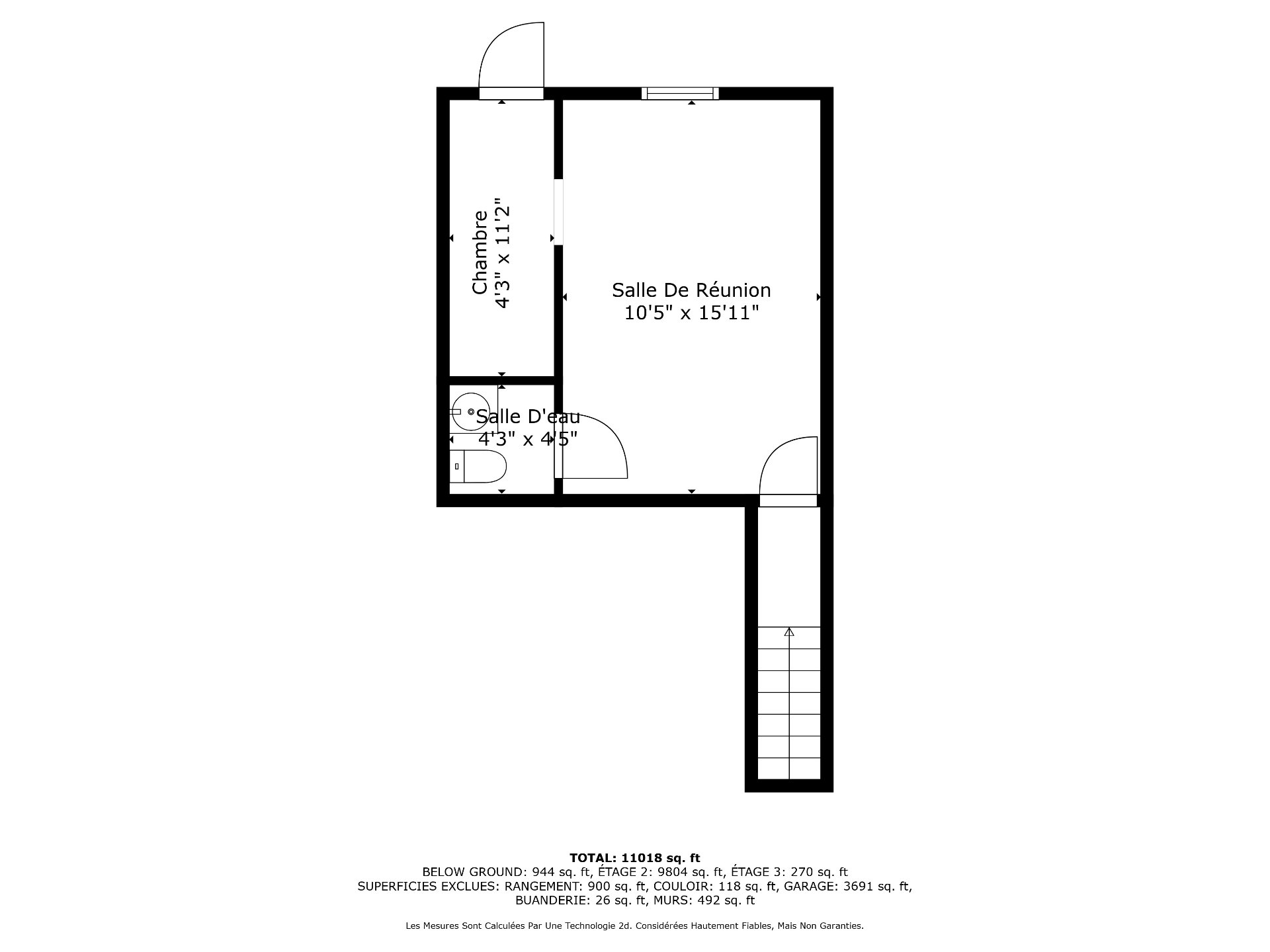
| Superficie du bâtiment | 16000 PC |
| Allée | Asphalte |
| Mode de chauffage | Air soufflé, Plinthes électriques, Plinthes à convection |
| Approvisionnement en eau | Municipalité |
| Énergie pour le chauffage | Électricité, Gaz naturel |
| Équipement disponible | Climatiseur central |
| Fondation | Béton coulé |
| Garage | Autre |
| Genre de commerce | Centre commercial |
| Sous-sol | 6 pieds et plus, Partiellement aménagé |
| Stationnement | Au garage |
| Système d'égouts | Municipal |
| Type de commerce/Industrie | Detail, Service, Grossiste, Fabrication |
| Toiture | Bardeaux d'asphalte, Membrane élastomère |
| Zonage | Commercial |
Addendas
| ******** JUSTE DU WOW! ******** |
| Adresse stratégique au coeur de Gatineau, à quelques |
| minutes du centre-ville d'Ottawa. Environnement mature, |
| très visible et facile d'accès pour employés et clientèle, |
| avec commerces, restos et services à distance de marche. |
| Superficie totale d'environ 16 000 pi² : |
| 10 000 pi² entièrement rénovés et loués à des bureaux |
| professionnels (revenus et stabilité locative). |
| 3 600 pi² libres immédiatement, parfaits pour un |
| propriétaire occupant ou un nouveau locataire. |
| L'extérieur a été modernisé; la fenestration généreuse |
| apporte lumière naturelle et visibilité accrue. |
| Aménagements intérieurs efficaces, adaptables (aires |
| ouvertes, salles fermées, TI), favorisant confort, |
| productivité et économies d'énergie. |
| Atouts opérationnels : stationnement souterrain et 40+ |
| espaces au total; accès rapide aux ponts interprovinciaux, |
| aux artères principales et au transport en commun, |
| élargissant le bassin de main-d'oeuvre et la portée |
| commerciale. |
| Idéal pour entreprises recherchant image, accessibilité et |
| performance, ou pour un investisseur voulant un actif bien |
| positionné avec revenus en place et potentiel de croissance. |





















































