L'Ange-Gardien
Description de la propriété
Magnifique maison de 3 chambres à coucher située à l'Ange-Gardien. Vous y trouverez 2 salles de bains complètes et une salle d'eau, plafonds cathédrale, abondante fenestration, belle lumière naturelle, sous-sol totalement aménagé, grande cuisine, garde-manger, spacieuse salle à dîner, grand salon, planchers chauffants pour une chaleur douce et uniforme. Garage attaché et chauffé. Terrain boisé aucun voisin arrière offrant intimité et tranquillité. Superbe terrasse idéale pour les moments de détentes en famille et entre amis. Une opportunité pour ceux qui recherchent un mélange unique de vie moderne et de splendeur naturelle. À découvrir!
Détails
Proximité
Autoroute/Voie rapide, Parc-espace vert, Transport en commun, Piste cyclable, Garderie/CPE
Dimension des pièces
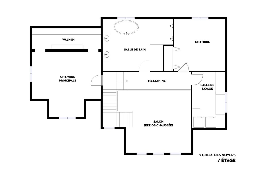
| Pièce | Niveau | Dimensions | Couvre plancher |
|---|---|---|---|
| Hall d'entrée | 1er niveau/RDC | 12.8x7.10 P | Céramique |
| Salon | 1er niveau/RDC | 15.10x15.0 P | Bois |
| Salle à manger | 1er niveau/RDC | 16.1x12.4 P | Bois |
| Cuisine | 1er niveau/RDC | 14.5x11.0 P | Céramique |
| Salle d'eau | 1er niveau/RDC | 5.10x5.2 P | Céramique |
| Chambre à coucher principale | 2ième étage | 17.5x16.6 P | Bois |
| Chambre à coucher | 2ième étage | 12.9x11.5 P | Bois |
| Salle de bains | 2ième étage | 16.9x12.9 P | Céramique |
| Salle de lavage | 2ième étage | 12.11x7.4 P | Céramique |
| Salle familiale | Sous-sol | 39.9x13.9 P | Couvre-sol souple |
| Chambre à coucher | Sous-sol | 11.8x11.2 P | Couvre-sol souple |
| Salle de bains | Sous-sol | 11.3x7.6 P | Céramique |
| Salle mécanique | Sous-sol | 14.10x5.4 P | Béton |
Taxes et dépenses
| Taxes municipales | 5 073 $ |
| Taxes scolaires | 657 $ |
Bâtiment et intérieur de la propriété
| Chambres | 3 |
| Salles de bain | 2 |
| Salles d'eau | 1 |
| Nombre de pièces | 16 |
| Nombre de chambres hors sol | 2 |
| Nombre de chambres au sous-sol | 1 |
| Aire habitable | 1900 PC |
| Délai d'occupation prévu | 30 jours |
| Éléments inclus lors de la vente | Fournaise électrique, thermopompe centrale, échangeur d'air, chauffe-eau, ouvre porte de garage électrique, rideaux, pôles à rideaux, stores, réfrigérateur, four, plaque chauffante, lave-vaisselle, laveuse, sécheuse, support pour télévision dans le salon, |
| Éléments exclus lors de la vente | Télévision dans le salon |
| Dimension de la façade du bâtiment | 7.12 M |
| Dimension de la profondeur du bâtiment | 15.23 M |
| Superficie du terrain | 4664.2 MC |
| Dimension de la façade du terrain | 68.4 M |
| Dimension de la profondeur du terrain | 54.4 M |
| Année de construction | 2022 |
| Évaluation municipale (terrain) | 125 000 $ |
| Évaluation municipale (bâtiment) | 840 100 $ |
| Évaluation municipale (total) | 965 100 $ |
| Année d'évaluation | 2025 |
| Bâtiment irrégulier | Oui |
| Allée | Double largeur ou plus, Non pavée |
| Aménagement du terrain | Paysager |
| Armoires | Thermoplastique |
| Mode de chauffage | Air soufflé, Radiant |
| Approvisionnement en eau | Puits artésien |
| Énergie pour le chauffage | Électricité |
| Équipement disponible | Échangeur d'air, Thermopompe centrale, Porte de garage électrique |
| Fenêtres | PVC |
| Fondation | Béton coulé |
| Foyers-poêles | Autre |
| Garage | Attaché, Chauffé |
| Revêtements | Autre, Pierre |
| Particularités | Aucun voisin à l'arrière, Cul-de-sac, Coin de rue, Boisé |
| Salle de bains/salle d'eau | Douche indépendante |
| Sous-sol | 6 pieds et plus, Totalement aménagé |
| Stationnement | Extérieur, Au garage |
| Système d'égouts | Champ d'épuration, Fosse septique |
| Type de fenêtre | Coulissante, Porte-fenêtre, Manivelle |
| Toiture | Bardeaux d'asphalte |
| Topographie | Plat |
| Zonage | Résidentiel |
Addendas
| *Magnifique maison de 3 chambres à coucher |
| *Située à l'Ange-Gardien |
| *Walk-in dans la des maîtres, |
| *2 salles de bains complètes et une salle d'eau |
| *Douche indépendante |
| *Plafonds cathédrale |
| *Abondante fenestration |
| *Belle lumière naturelle |
| *Grande cuisine avec îlot |
| *Garde-manger walk-in |
| *Spacieuse salle à dîner |
| *Immense salon |
| *Planchers chauffants (radiants) |
| *Sous-sol totalement aménagé |
| *Adoucisseur d'eau |
| *Thermopompe centrale |
| *Échangeur d'air |
| *Garage attaché et chauffé |
| *Nouveau crépi sur la fondation |
| *Stationnement pour 8 voitures |
| *Terrain boisé et paysagé |
| *Aucun voisin arrière |
| *Superbe terrasse |
































































