Gatineau (Aylmer)
Description de la propriété
Lumineux condo de 2 chambres -- Secteur prisé parc de la Gatineau- À quelques pas de l'Agora et du parc de la Gatineau, ce condo bien entretenu vous séduira par son aire de vie à aire ouverte regroupant salon, salle à manger et cuisine avec comptoir-lunch, idéale pour recevoir. Deux chambres spacieuses offrant de beaux espaces de rangement. Salle de bain fonctionnelle avec bain-douche. Espace de rangement additionnel dans l'unité. Luminosité naturelle abondante grâce aux grandes fenêtres. Immeuble paisible et bien géré avec stationnement extérieur inclus. Secteur recherché offrant un environnement calme tout en étant à proximité.
Détails
Proximité
Autoroute/Voie rapide, Cegep, Golf, Parc-espace vert, École primaire, École secondaire, Transport en commun, Piste cyclable, Garderie/CPE
Dimension des pièces
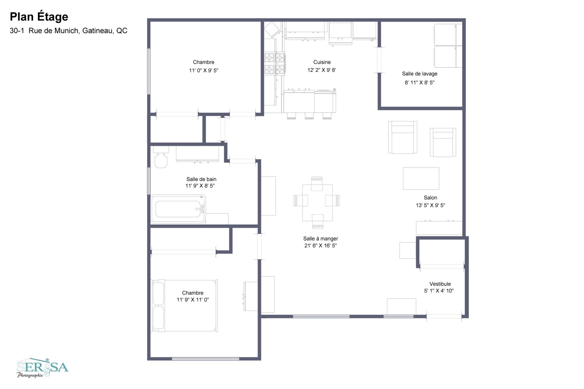
| Pièce | Niveau | Dimensions | Couvre plancher |
|---|---|---|---|
| Hall d'entrée | 1er niveau/RDC | 5.0x5.0 P | Céramique |
| Salon | 1er niveau/RDC | 12.0x21.0 P | Plancher flottant |
| Salle à manger | 1er niveau/RDC | 10.0x20.0 P | Plancher flottant |
| Cuisine | 1er niveau/RDC | 10.0x12.0 P | Céramique |
| Chambre à coucher principale | 1er niveau/RDC | 11.0x12.0 P | Plancher flottant |
| Chambre à coucher | 1er niveau/RDC | 11.0x12.0 P | Plancher flottant |
| Salle de bains | 1er niveau/RDC | 8.5x11.9 P | Céramique |
| Salle de lavage | 1er niveau/RDC | 8.5x9.0 P | Céramique |
Taxes et dépenses
| Taxes scolaires | 210 $ |
| Taxes municipales | 2 637 $ |
| Frais de copropriété | 2 640 $ |
Bâtiment et intérieur de la propriété
| Frais de copropriété | 2 640 $ |
| Chambres | 2 |
| Salles de bain | 1 |
| Nombre de pièces | 8 |
| Nombre de chambres hors sol | 2 |
| Aire habitable | 1077 PC |
| Éléments inclus lors de la vente | Réfrigérateur et cuisinière, lave-vaisselle, luminaire, stores, rideaux, climatiseur mural, échangeur d'air. |
| Superficie du terrain | 184.28 MC |
| Année de construction | 2012 |
| Évaluation municipale (terrain) | 71 000 $ |
| Évaluation municipale (bâtiment) | 254 000 $ |
| Évaluation municipale (total) | 325 000 $ |
| Année d'évaluation | 2026 |
| Type de copropriété | Divise |
| Étage du condo | 1 |
| Nombre d'étages | 3 |
| Allée | Asphalte |
| Aménagement du terrain | Patio, Paysager |
| Armoires | Mélamine |
| Mode de chauffage | Plinthes électriques |
| Approvisionnement en eau | Municipalité |
| Énergie pour le chauffage | Électricité |
| Équipement disponible | Climatiseur mural, Échangeur d'air |
| Fenêtres | PVC |
| Revêtements | Brique, Vinyle |
| Particularités | Cul-de-sac |
| Salle de bains/salle d'eau | Douche indépendante |
| Services disponibles | Détecteur d'incendie |
| Stationnement | Extérieur |
| Système d'égouts | Municipal |
| Type de fenêtre | Manivelle |
| Toiture | Bardeaux d'asphalte |
| Topographie | Plat |
| Zonage | Résidentiel |



























