Gatineau (Gatineau)
Description de la propriété
Nichée dans un secteur prestigieux de Gatineau, cette maison centenaire entièrement rénovée marie parfaitement charme d'époque et confort moderne. Offrant 4 grandes chambres, un bureau, et une suite des maîtres avec salle de bain attenante et vue imprenable sur Ottawa. Terrasse panoramique, garage double avec accès au RDC et au sous-sol, piscine creusée (non fonctionnelle), extérieur refait en 2023, aménagement paysager 2024 avec saule pleureur et pommier. À moins de 15 min d'Ottawa -- un véritable havre de paix rénové avec soin.
Détails
Proximité
Autoroute/Voie rapide, Cegep, Golf, Hôpital, Parc-espace vert, École primaire, École secondaire, Transport en commun, Piste cyclable, Garderie/CPE
Dimension des pièces
| Pièce | Niveau | Dimensions | Couvre plancher |
|---|---|---|---|
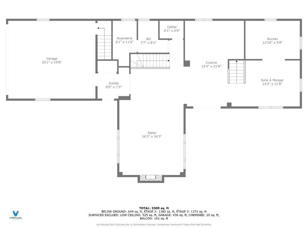
| Hall d'entrée | 1er niveau/RDC | 8.0x7.3 P | Céramique |
| Salon | 1er niveau/RDC | 16.3x34.3 P | Bois |
| Cuisine | 1er niveau/RDC | 15.4x21.8 P | Céramique |
| Salle à manger | 1er niveau/RDC | 14.2x11.8 P | Bois |
| Bureau à domicile | 1er niveau/RDC | 13.10x9.8 P | Bois |
| Salle de lavage | 1er niveau/RDC | 6.1x11.6 P | Céramique |
| Salle d'eau | 1er niveau/RDC | 7.7x8.1 P | Céramique |
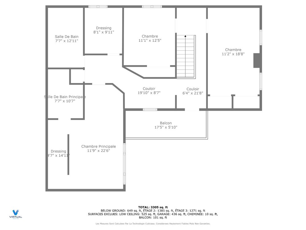
| Chambre à coucher principale | 2ième étage | 11.9x22.6 P | Bois |
| Salle de bains | 2ième étage | 7.7x10.7 P | Céramique |
| Chambre à coucher | 2ième étage | 11.2x18.8 P | Bois |
| Chambre à coucher | 2ième étage | 11.1x12.5 P | Bois |
| Chambre à coucher | 2ième étage | 8.1x9.11 P | Bois |
| Salle de bains | 2ième étage | 7.7x12.11 P | Céramique |
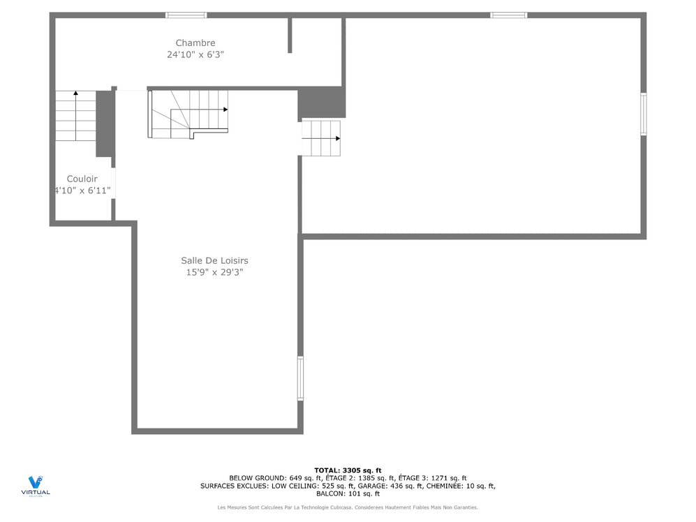
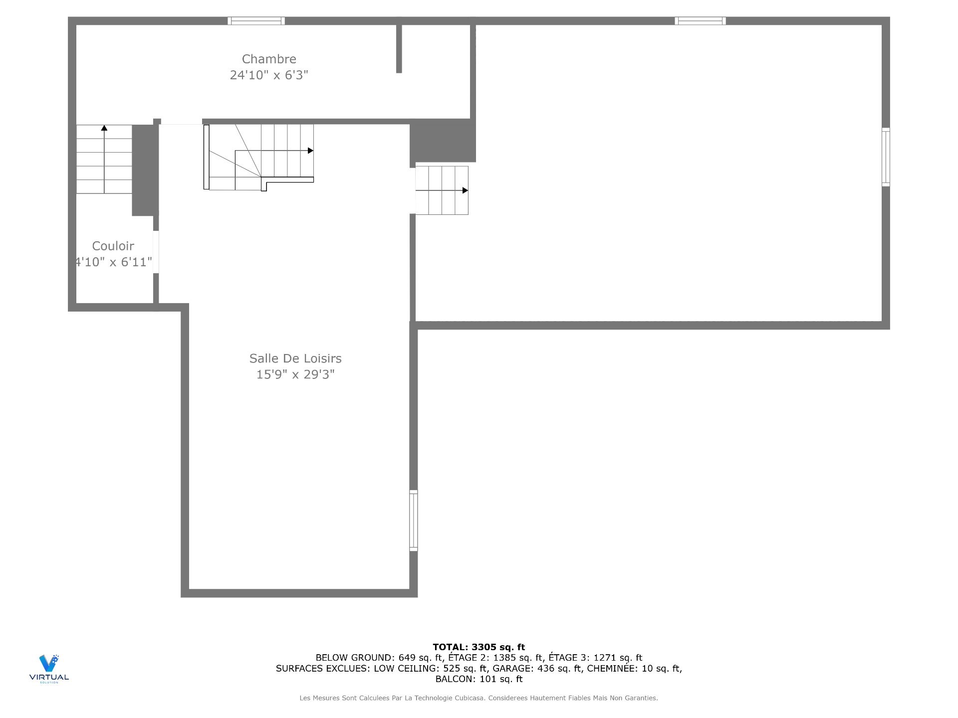
| Salle familiale | Sous-sol | 15.9x29.3 P | Plancher flottant |
| Rangement | Sous-sol | 24.10x6.3 P | Plancher flottant |
Taxes et dépenses
| Taxes municipales | 4 227 $ |
| Taxes scolaires | 337 $ |
| Coût d'énergie | 4 080 $ |
Bâtiment et intérieur de la propriété
| Chambres | 4 |
| Salles de bain | 2 |
| Salles d'eau | 1 |
| Nombre de pièces | 17 |
| Nombre de chambres hors sol | 4 |
| Aire habitable | 2656 PC |
| Éléments inclus lors de la vente | Chauffe-eau, fournaise, 3x thermopompe, lave-vaisselle, réfrigérateur, cuisinière, laveuse, sécheuse, 2x ouvre-porte de garage, remise, stores, rideaux et tringles, système de piscine, 2x cordes de bois. |
| Éléments exclus lors de la vente | Aucune |
| Dimension de la façade du bâtiment | 12.46 M |
| Dimension de la profondeur du bâtiment | 23.45 M |
| Superficie du terrain | 1845.3 MC |
| Dimension de la façade du terrain | 30.48 M |
| Dimension de la profondeur du terrain | 60.65 M |
| Année de construction | 1926 |
| Évaluation municipale (terrain) | 241 200 $ |
| Évaluation municipale (bâtiment) | 294 900 $ |
| Évaluation municipale (total) | 536 100 $ |
| Année d'évaluation | 2025 |
| Bâtiment irrégulier | Oui |
| Superficie du bâtiment | 188.29 MC |
| Terrain irrégulier | Oui |
| Allée | Asphalte, Double largeur ou plus |
| Aménagement du terrain | Clôturé, Paysager |
| Armoires | Thermoplastique |
| Mode de chauffage | Air soufflé, Plinthes électriques, Plinthes à convection |
| Approvisionnement en eau | Municipalité |
| Énergie pour le chauffage | Bois, Électricité |
| Équipement disponible | Échangeur d'air, Thermopompe murale, Porte de garage électrique |
| Fenêtres | PVC |
| Fondation | Béton coulé, Pierre |
| Foyers-poêles | Foyer au bois |
| Garage | Attaché, Double largeur ou plus |
| Revêtements | Pierre, Vinyle |
| Particularités | Autre, Coin de rue, Boisé |
| Piscine | Autre, Creusée |
| Salle de bains/salle d'eau | Attenante à la chambre principale, Douche indépendante |
| Sous-sol | 6 pieds et plus, Entrée indépendante, Totalement aménagé |
| Stationnement | Extérieur, Au garage |
| Système d'égouts | Municipal |
| Type de fenêtre | Coulissante, Manivelle |
| Toiture | Bardeaux d'asphalte |
| Topographie | En pente, Plat |
| Vue | Panoramique, Sur la ville |
| Zonage | Résidentiel |
Addendas
| Maison centenaire entièrement rénovée, alliant le cachet |
| historique au confort contemporain |
| Située dans un secteur prestigieux et recherché de |
| Gatineau, offrant tranquillité et proximité des services |
| Vue spectaculaire et dégagée sur la ville d'Ottawa, visible |
| de plusieurs pièces ainsi que de la terrasse |
| Quatre grandes chambres à coucher offrant amplement |
| d'espace pour la famille ou les invités |
| Un bureau lumineux, idéal pour le télétravail ou une salle |
| d'étude |
| Chambre des maîtres avec salle de bain attenante et vue à |
| couper le souffle, apportant luxe et intimité |
| Terrasse extérieure avec accès direct à la vue panoramique, |
| parfaite pour se détendre ou recevoir |
| Garage double avec entrée à la fois au rez-de-chaussée et |
| au sous-sol, pratique et fonctionnel |
| Piscine creusée sur le terrain, actuellement non |
| fonctionnelle mais plein de potentiel |
| Revêtement extérieur refait en 2023, améliorant l'isolation |
| et l'esthétique de la maison |
| Ajout d'une porte-patio et d'une terrasse au deuxième étage |
| pour profiter pleinement de l'environnement |
| Divisions intérieures repensées pour optimiser l'espace, la |
| lumière naturelle et la circulation |
| Gouttières neuves installées en 2024 pour une meilleure |
| gestion de l'eau de pluie |
| Aménagement paysager refait en 2024, ajoutant beauté et |
| valeur à la propriété |
| Plantation d'un saule pleureur et d'un pommier, ajoutant |
| charme et ombrage naturel |
| Plusieurs rénovations majeures réalisées avec soin pour |
| préserver le caractère unique de la demeure tout en |
| assurant confort et durabilité |














































































