Gatineau (Gatineau)
Property description
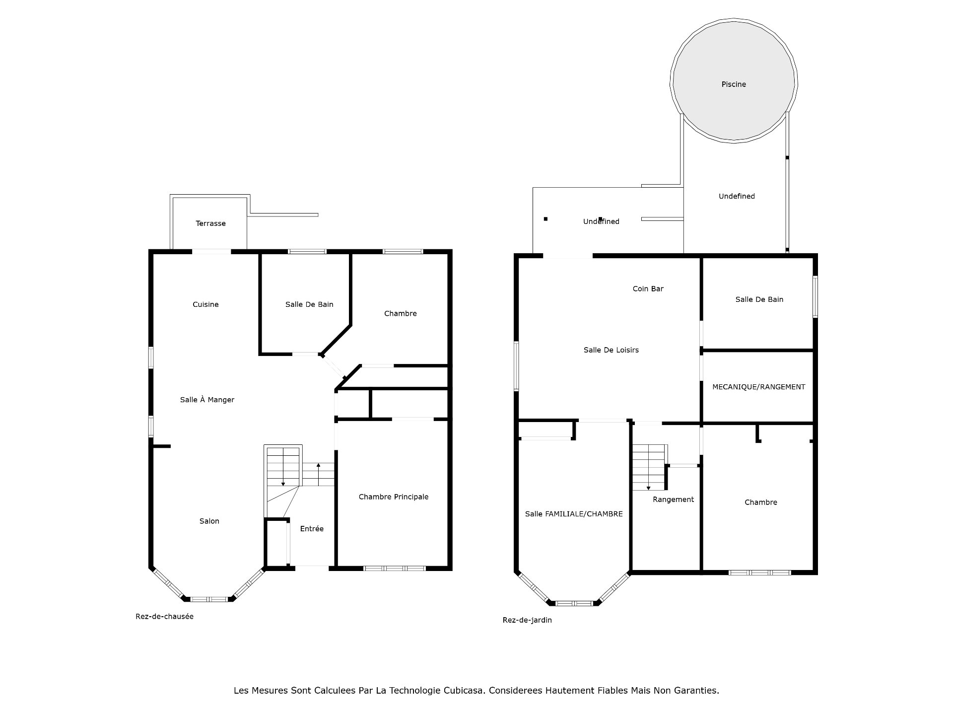
Well-maintained 1,120 sq. ft. bungalow offering 4 bedrooms and 2 full bathrooms. Central A/C and plenty of storage. Landscaped lot with terrace, garden area, above-ground pool, and 12x12 shed. Basement with walk-out entrance, family room with bar area, and option for 1 or 2 living rooms. Located in a quiet, family-friendly neighborhood within walking distance to elementary school. Double paved driveway. Move-in ready property -- a must-see!
Details
Located near
Highway, Park - green area, Elementary school, Public transport, Bicycle path, Daycare centre
Room dimension
| Room | Floor | Dimensions | Floor covering |
|---|---|---|---|
| Kitchen | 1st level/Ground floor | 11.1x10.10 P | Ceramic tiles |
| Living room | 1st level/Ground floor | 11.9x16.0 P | Wood |
| Dining room | 1st level/Ground floor | 10.6x11.2 P | Wood |
| Master bedroom | 1st level/Ground floor | 11.6x15.1 P | Wood |
| Bedroom | 1st level/Ground floor | 9.9x12.5 P | Floating floor |
| Bathroom | 1st level/Ground floor | 8.9x10.9 P | Ceramic tiles |
| Hallway | 1st level/Ground floor | 4.3x10.5 P | Ceramic tiles |
| Family room | Basement | 16.2x18.4 P | Floating floor |
| Bedroom | Basement | 11.0x15.5 P | Floating floor |
| Bedroom | Basement | 11.3x16.9 P | Floating floor |
| Bathroom | Basement | 9.7x10.8 P | Flexible floor coverings |
| Storage | Basement | 6.7x11.0 P | Concrete |
Taxes and expenses
| Municipal Taxes | $4,153 |
| School taxes | $334 |
Building and interior of the property
| Bedrooms | 4 |
| Bathrooms | 2 |
| Number of rooms | 12 |
| Number of rooms above ground | 2 |
| Number of basement bedrooms | 2 |
| Living area | 104.1 SM |
| Expected delay of occupancy | 30 days |
| Items included in the sale | Dishwasher, blinds, curtains and curtain rods, alarm system, three stools at the basement bar, small refrigerator at the bar, bar, bar shelves, TV wall mount in the basement, entryway cabinet and entryway wall shelves, shed, above-ground pool, sun shelter |
| Items excluded in the sale | Bar mirror, vanity above the toilet in the basement bathroom. Outdoor swing and outdoor swing platform. |
| Dimension of the front of the building | 9.77 M |
| Dimension of the depth of building | 10.39 M |
| Land area | 463.9 SM |
| Dimension of the front of the land | 15.21 M |
| Dimension of the depth of the land | 30.52 M |
| Year built | 2007 |
| Municipal assessment (land) | $169,600 |
| Municipal assessment (building) | $332,600 |
| Municipal assessment (total) | $502,200 |
| Assessment year | 2025 |
| Area of the building | 104.1 SM |
| Driveway | Asphalt, Double width or more |
| Landscaping | Fenced |
| Heating system | Air circulation |
| Water supply | Municipality |
| Heating energy | Natural gas |
| Foundation | Poured concrete |
| Rental appliances | Heating appliances, Water heater |
| Siding | Stone, Vinyl |
| Pool | Above-ground |
| Basement | Finished basement, Separate entrance |
| Parking | Outdoor |
| Sewage system | Municipal sewer |
| Roofing | Asphalt shingles |
| Topography | Sloped |
| Zoning | Residential |
Addendum
| Welcome to this impeccably maintained 1,120 sq. ft. |
| bungalow located in a peaceful, family-friendly |
| neighborhood. This versatile and inviting property is ideal |
| for growing families, professionals working from home, or |
| anyone seeking comfort, space, and functionality. |
| Inside, you'll find 4 spacious bedrooms and 2 full |
| bathrooms, offering flexibility for bedrooms, office space, |
| or additional living areas. The central air conditioning |
| ensures year-round comfort, while the property provides |
| plenty of storage throughout. |
| The finished basement includes a large family room with a |
| cozy bar area, perfect for entertaining or relaxing. It |
| also features a walk-out entrance, giving you direct access |
| to the backyard. The layout allows for one or two living |
| rooms, depending on your needs. |
| The landscaped backyard is a true highlight, featuring a |
| large terrace, garden area, above-ground pool, and a 12x12 |
| shed--perfect for gardening tools, seasonal storage, or a |
| workshop. |
| Additional features include: |
| Double paved driveway |
| Well-designed layout with open-concept living areas |
| Walking distance to a local elementary school |
| Quiet street with friendly neighbors |
| Easy access to parks, amenities, and main roads |
| This turnkey home combines practical features with charm |
| and comfort, making it an excellent investment for your |
| family's future. |
| Don't miss your chance to own this move-in ready gem. |
| Schedule your visit today! |












































