Gatineau (Gatineau)
Property description
Unique 5-bedroom property located in Gatineau. Combining traditional and modern design, 3 bathrooms, open concept, superb natural light, large kitchen with pantry, gas fireplace, spacious bedrooms, and fully finished basement with intergenerational space. Dream backyard with heated in-ground pool and large covered patio. High-quality home with insulated concrete form walls and large garage that can be used as a workshop. Very family-friendly and safe neighborhood. A must-see!
Details
Located near
Highway, Cegep, Golf, Hospital, Park - green area, Elementary school, High school, Public transport, Bicycle path, Daycare centre
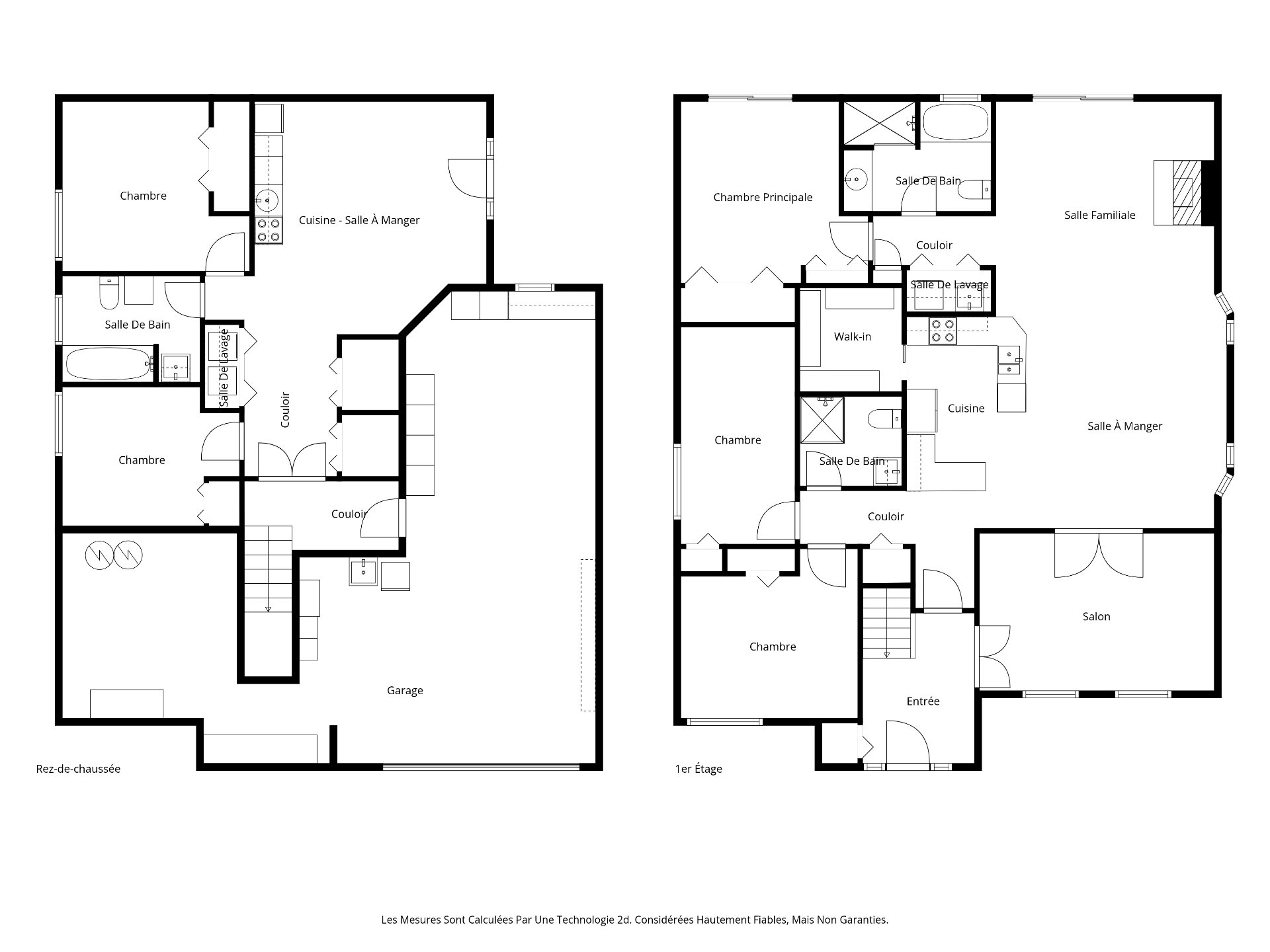
Room dimension
| Room | Floor | Dimensions | Floor covering |
|---|---|---|---|
| Bedroom | Basement | 11.9x11.3 P | Wood |
| Laundry room | Basement | 4.11x3.6 P | Wood |
| Bathroom | Basement | 8.2x6.8 P | Ceramic tiles |
| Bedroom | Basement | 11.10x10.11 P | Wood |
| Living room | Basement | 17.9x15.8 P | Wood |
| Hallway | 1st level/Ground floor | 10.7x9.8 P | Ceramic tiles |
| Living room | 1st level/Ground floor | 14.1x11.8 P | Wood |
| Dining room | 1st level/Ground floor | 12.3x14.10 P | Wood |
| Kitchen | 1st level/Ground floor | 12.1x8.8 P | Ceramic tiles |
| Living room | 1st level/Ground floor | 13.7x13.1 P | Wood |
| Laundry room | 1st level/Ground floor | 5x2.9 P | Concrete |
| Bathroom | 1st level/Ground floor | 10.3x7.5 P | Ceramic tiles |
| Master bedroom | 1st level/Ground floor | 13.5x11.2 P | Wood |
| Bathroom | 1st level/Ground floor | 6.9x6.5 P | Ceramic tiles |
| Bedroom | 1st level/Ground floor | 13.10x8.7 P | Wood |
| Bedroom | 1st level/Ground floor | 12x11.7 P | Wood |
Taxes and expenses
| School taxes | $470 |
| Municipal Taxes | $5,588 |
| Energy cost | $4,098 |
Building and interior of the property
| Bedrooms | 5 |
| Bathrooms | 3 |
| Number of rooms | 12 |
| Number of rooms above ground | 3 |
| Number of basement bedrooms | 2 |
| Living area | 1800 SF |
| Expected delay of occupancy | 60 days |
| Items included in the sale | Blinds, curtain rods, curtains, 2 refrigerators, 2 stoves, dishwasher, microwave, downstairs washer, downstairs dryer, freezer, 2 TV mounts (1 outdoor), pool & accessories, pool heater, storage box (patio), 3 fan lights (patio), outdoor swings, 3 bathroom |
| Items excluded in the sale | Water heater (rental - $46), light fixtures in the master bedroom, curtain rods and curtains in the two front bedrooms on the ground floor. |
| Dimension of the front of the building | 38 F |
| Dimension of the depth of building | 45 F |
| Land area | 6880 SF |
| Dimension of the front of the land | 144 F |
| Dimension of the depth of the land | 50 F |
| Year built | 2008 |
| Municipal assessment (land) | $246,000 |
| Municipal assessment (building) | $385,600 |
| Municipal assessment (total) | $631,600 |
| Assessment year | 2026 |
| Irregular building | Yes |
| Irregular land | Yes |
| Driveway | Asphalt, Double width or more |
| Landscaping | Fenced, Patio, Land / Yard lined with hedges |
| Heating system | Hot water, Radiant |
| Water supply | Municipality |
| Heating energy | Natural gas |
| Equipment available | Central vacuum cleaner system installation, Wall-mounted heat pump, Electric garage door, Ventilation system, Wall-mounted air conditioning |
| Windows | PVC |
| Foundation | Other |
| Hearth stove | Gaz fireplace |
| Garage | Heated, Fitted |
| Siding | Brick, Pressed fibre |
| Distinctive features | Wooded, Intergeneration |
| Pool | Heated, Inground |
| Bathroom / Washroom | Seperate shower |
| Basement | 6 feet and over, Separate entrance, Finished basement |
| Parking | Outdoor, Garage |
| Sewage system | Municipal sewer |
| Window type | Crank handle, French window |
| Roofing | Asphalt shingles |
| Topography | Sloped, Flat |
| Zoning | Residential |
Addendum
| 19 St-Vallier, Gatineau: A Three-in-One Home |
| A unique residence combining traditional and modern styles. |
| Its architectural and interior design blends classic and |
| contemporary elements, creating a timeless, balanced, and |
| welcoming look. This home is exceptional in its solidity |
| and comfort: 9'2" ceilings on the main floor, 8'2" in the |
| basement, heated floors throughout, central vacuum system, |
| and insulated concrete form walls that protect residents |
| from outside noise and harsh weather. In short, it's cool |
| in the summer, warm in the winter, and very secure! |
| The owners have been the same since its construction in |
| 2008. They are proud of their home and have cherished it, |
| preserving it exceptionally well. |
| It features three living spaces that blend seamlessly |
| together. The main living area, ideal for a family, |
| features three bedrooms, two bathrooms, a home office, and |
| an open-concept kitchen, dining, and living room. Ample |
| storage space, including a large pantry, is a definite plus. |
| The second living area, located in the basement, can be |
| easily converted into an intergenerational space of |
| approximately 1,000 square feet without any additional cost |
| or renovations. It includes two bedrooms, a bathroom, and |
| an open-concept kitchen, dining, and living room. This |
| space also features a private entrance, parking, and access |
| to a heated garage. |
| The backyard, the third living area, is a truly unique |
| oasis of peace and exceptional privacy, complete with an |
| in-ground, heated pool. It boasts a very large covered deck |
| (14' x 32') with an outdoor dining area, mature trees, and |
| lush greenery. Your private cottage in your backyard! |
| This home is located in the heart of a chic, friendly, and |
| safe neighborhood, a wonderful place to live. Nearby |
| amenities include public transportation, shops, a hospital, |
| clinics and pharmacies, schools, parks, bike paths... and |
| it's less than 10 minutes from Ottawa's Parliament Hill. |
| This property is a true solution to the evolving needs of |
| families. |































































