Gatineau (Hull)
Property description
Directly across from UQO... and facing the forest! Discover this stunning 2-bedroom condo in the heart of Hull. Offering rare city tranquility, this unit directly faces the forest (not the boulevard), ensuring total privacy and a peaceful green outlook. The dream address for students and outdoor enthusiasts: cycling paths and jogging trails connected to Gatineau Park start right at your doorstep. Within walking distance of the best services and restaurants, this condo combines a strategic location with exceptional resale potential. The perfect balance between urban excitement and your own private natural sanctuary!
Details
Located near
Highway, Cegep, Park - green area, Elementary school, Public transport, University, Bicycle path, Daycare centre
Room dimension
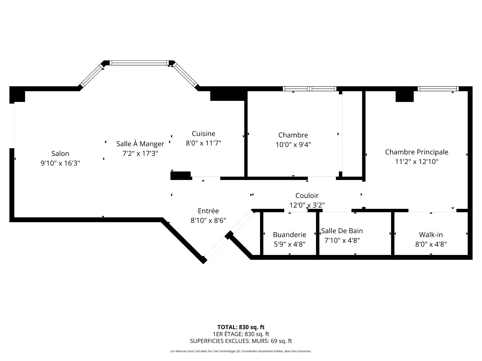
| Room | Floor | Dimensions | Floor covering |
|---|---|---|---|
| Living room | 1st level/Ground floor | 9.10x16.3 P | Floating floor |
| Dining room | 1st level/Ground floor | 7.2x17.3 P | Floating floor |
| Kitchen | 1st level/Ground floor | 8.0x11.7 P | Floating floor |
| Master bedroom | 1st level/Ground floor | 11.2x12.10 P | Floating floor |
| Bedroom | 1st level/Ground floor | 10.0x9.4 P | Floating floor |
| Laundry room | 1st level/Ground floor | 5.9x4.8 P | Floating floor |
| Hallway | 1st level/Ground floor | 8.10x8.6 P | Floating floor |
| Bathroom | 1st level/Ground floor | 7.10x4.8 P | Ceramic tiles |
Taxes and expenses
| School taxes | $157 |
| Municipal Taxes | $2,053 |
| Co-ownership fees | $6,024 |
Building and interior of the property
| Co-ownership fees | $6,024 |
| Bedrooms | 2 |
| Bathrooms | 1 |
| Number of rooms | 9 |
| Number of rooms above ground | 2 |
| Living area | 77.5 SM |
| Expected delay of occupancy | 15 days |
| Land area | 61.87 SM |
| Year built | 1990 |
| Municipal assessment (land) | $46,400 |
| Municipal assessment (building) | $197,300 |
| Municipal assessment (total) | $243,700 |
| Assessment year | 2026 |
| Type of ownership | Divided |
| Condo floor | 1 |
| Number of stories | 7 |
| Heating system | Electric baseboard units |
| Water supply | Municipality |
| Heating energy | Electricity |
| Parking | Outdoor |
| Sewage system | Municipal sewer |
| Zoning | Residential |
Addendum
| The Perfect Balance: Dynamic Urban Living and Natural Escape |
| Discover this magnificent two-bedroom condo, a true gem |
| located in the highly sought-after Hull sector. Designed to |
| offer a lifestyle without compromise, this unit stands out |
| for its exceptional brightness. Thanks to its generous |
| windows, every room is bathed in natural light, creating a |
| spacious, warm, and soothing atmosphere from the moment you |
| arrive. |
| Thoughtful Layout and a Peaceful View The open-concept |
| living space is impeccably maintained and offers a |
| functional layout that maximizes every square foot. Your |
| private terrace becomes your urban sanctuary: directly |
| facing the forest, it offers rare privacy and a lush green |
| panorama--the perfect spot to savor your morning coffee or |
| unwind at the end of the day in absolute calm. |
| Unmatched Strategic Location The true luxury here is the |
| location. Situated directly across from the Université du |
| Québec en Outaouais (UQO), this condo boasts exceptional |
| rental value and resale potential. |
| For outdoor enthusiasts, it is paradise: you are just steps |
| away from walking, jogging, and cycling trails connected |
| directly to the prestigious Gatineau Park. Imagine having |
| access to the forest and its vast network of trails right |
| from your doorstep. |
| Everything at Your Fingertips Beyond the surrounding |
| nature, enjoy the excitement of downtown living. You are |
| within walking distance of the best restaurants, cultural |
| centers, and public transit. Access to the bridges toward |
| Ottawa is only minutes away, simplifying your daily commute. |
| This condo is more than just a property; it is a smart and |
| secure choice in a high-demand area. A visit is essential |
| to fully appreciate this unique opportunity! |























