Gatineau (Gatineau)
Property description
GUARANTEED FAVORITE! Magnificent turnkey semi-detached home offering exceptional comfort and remarkable brightness thanks to its superb windows. You'll enjoy 3 bedrooms, 1 full bathroom, 1 powder room, as well as a large kitchen open to the dining room--ideal for hosting and everyday living. Private backyard perfect for relaxing with friends and family, a large heated shed for storage or a workshop, and a paved driveway for added convenience. Located close to all services, with schools just steps away, this home is an opportunity not to be missed. At this price, it won't last long!
Details
Located near
Highway, Cegep, Golf, Hospital, Park - green area, Elementary school, High school, Public transport, Bicycle path, Daycare centre
Room dimension
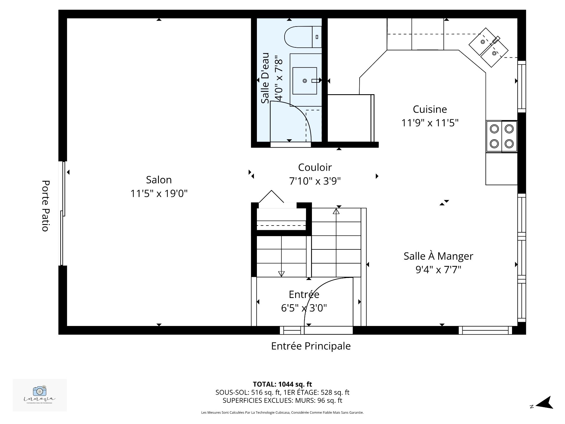
| Room | Floor | Dimensions | Floor covering |
|---|---|---|---|
| Hallway | 1st level/Ground floor | 6.5x3.0 P | Ceramic tiles |
| Dining room | 1st level/Ground floor | 9.4x7.7 P | Ceramic tiles |
| Kitchen | 1st level/Ground floor | 11.9x11.5 P | Ceramic tiles |
| Living room | 1st level/Ground floor | 11.5x19.0 P | Wood |
| Washroom | 1st level/Ground floor | 4.0x7.6 P | Ceramic tiles |
| Master bedroom | Basement | 10.9x10.6 P | Floating floor |
| Bedroom | Basement | 12.9x11.0 P | Floating floor |
| Bedroom | Basement | 12.9x7.8 P | Floating floor |
| Bathroom | Basement | 15.1x8.2 P | Ceramic tiles |
Taxes and expenses
| Municipal Taxes | $2,381 |
| School taxes | $221 |
Building and interior of the property
| Bedrooms | 3 |
| Bathrooms | 1 |
| Washrooms | 1 |
| Number of rooms | 9 |
| Number of basement bedrooms | 3 |
| Living area | 54.3 SM |
| Expected delay of occupancy | 60 days |
| Items included in the sale | Blinds, built in unit and two nightstands in the master bedroom, hot water tank, heatpump all provided as is without warranty. |
| Items excluded in the sale | All furniture and personal belongings, all appliances (refrigerator, stove, washer and dryer, dishwasher, freezer). |
| Dimension of the front of the building | 6.16 M |
| Dimension of the depth of building | 8.93 M |
| Land area | 347.2 SM |
| Dimension of the front of the land | 15.06 M |
| Dimension of the depth of the land | 26.3 M |
| Year built | 1971 |
| Municipal assessment (land) | $157,400 |
| Municipal assessment (building) | $188,300 |
| Municipal assessment (total) | $345,700 |
| Assessment year | 2025 |
| Driveway | Asphalt |
| Landscaping | Fenced, Land / Yard lined with hedges |
| Cupboard | Melamine |
| Heating system | Other, Electric baseboard units |
| Water supply | Municipality |
| Heating energy | Electricity |
| Equipment available | Wall-mounted heat pump |
| Windows | PVC |
| Foundation | Poured concrete |
| Siding | Vinyl |
| Available services | Fire detector |
| Basement | 6 feet and over, Finished basement |
| Parking | Outdoor |
| Sewage system | Municipal sewer |
| Window type | Sliding, French window, Hung |
| Roofing | Asphalt shingles |
| Topography | Flat |
| Zoning | Residential |
Addendum
| Superb property located in the heart of downtown Gatineau! |
| This charming home offers brightness, functionality, and a |
| layout ideal for family living. Situated in a sought-after |
| area, it provides quick access to all essential services. |
| Inside, you'll find well-divided rooms, a spacious kitchen, |
| a comfortable living room, as well as 3 bedrooms and |
| practical bathrooms. The lot is fully landscaped with a |
| private yard, abundant parking, and a large insulated and |
| heated shed with a loft, built on a concrete slab. |
| HIGHLIGHTS OF THE PROPERTY |
| Located in the heart of downtown Gatineau. |
| Well-maintained, move-in-ready property. |
| Functional kitchen with plenty of storage. |
| Bright, open living area. |
| Fully finished basement. |
| Several well-sized bedrooms. |
| Renovated bathrooms. |
| Private yard bordered by hedges, ideal for families. |
| Large insulated and heated shed with loft, built on a |
| concrete slab--perfect for a workshop, storage, or other |
| projects. |
| Extended + paved driveway. |
| Peaceful neighbourhood while still close to services. |
| ADVANTAGES OF LIVING IN GATINEAU |
| Dynamic urban life! |
| Quick access to shops, restaurants, cafés, and shopping |
| centers. |
| Close to government institutions and businesses. |
| Vibrant neighbourhoods, cultural activities, and year-round |
| events. |
| Unmatched quality of life! |
| Numerous parks, bike paths, and green spaces! |
| Easy access to the Ottawa River and Gatineau Park trails. |
| Perfect environment for families, athletes, and outdoor |
| enthusiasts. |
| Strategic location! |
| Just minutes from downtown Ottawa. |
| Efficient public transit network. |
| Quick access to highways and major roads. |
| Cost-effective living! |
| More affordable property prices than in Ottawa. |
| Generally lower municipal taxes. |
| A constantly growing local economy. |
| Education and services |
| Several primary and secondary schools, as well as daycares |
| nearby. |
| Access to medical services, community centers, and |
| libraries. |


































