Gatineau (Gatineau)
Description de la propriété
Charmant bungalow de 4 chambres à coucher situé dans le secteur Gatineau. Concept à aire ouverte, 2 salles de bains, superbe luminosité, plusieurs rénovations récentes, espace de rangement et sous-sol aménagé avec entrée indépendante. Grand terrain de coin clôturé. Garage double et entrée asphaltée double. Près des services essentiels, pistes cyclables, écoles et avec une accès à l'autoroute à moins de 5 minutes.
Détails
Proximité
Autoroute/Voie rapide, Parc-espace vert, École primaire, École secondaire, Transport en commun, Piste cyclable, Garderie/CPE
Dimension des pièces
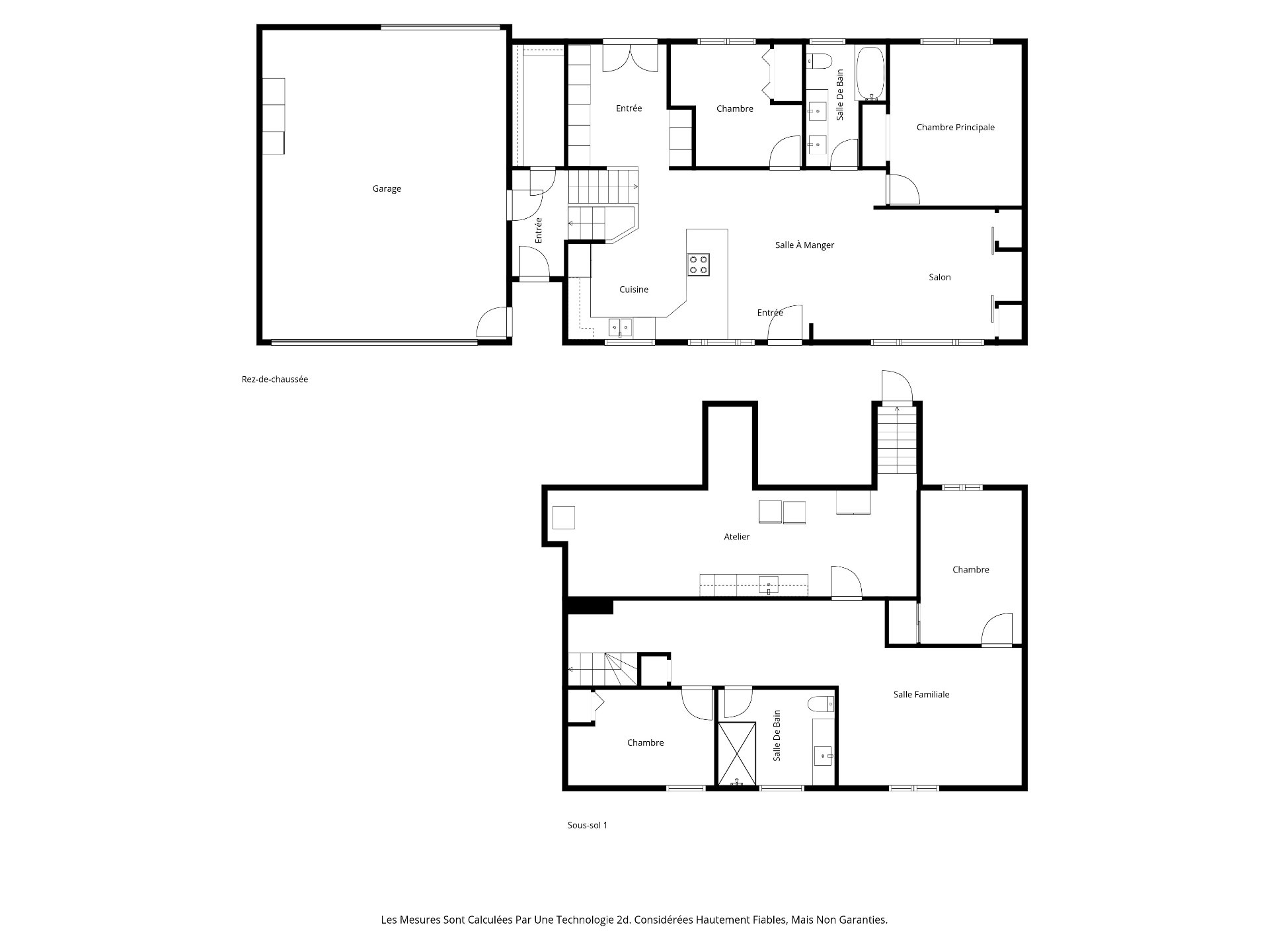
| Pièce | Niveau | Dimensions | Couvre plancher |
|---|---|---|---|
| Hall d'entrée | 1er niveau/RDC | 9.10x5.1 P | Céramique |
| Salle de lavage | 1er niveau/RDC | 12.1x9.3 P | Céramique |
| Cuisine | 1er niveau/RDC | 16x14.4 P | Céramique |
| Salle à manger | 1er niveau/RDC | 15.11x11.1 P | Céramique |
| Salon | 1er niveau/RDC | 17.10x12.6 P | Céramique |
| Chambre à coucher | 1er niveau/RDC | 10.1x10.10 P | Plancher flottant |
| Salle de bains | 1er niveau/RDC | 11x7.2 P | Plancher flottant |
| Chambre à coucher principale | 1er niveau/RDC | 11.8x14.4 P | Plancher flottant |
| Chambre à coucher | Sous-sol | 8.9x12.11 P | Plancher flottant |
| Salle de bains | Sous-sol | 8.9x9.11 P | Béton |
| Salle familiale | Sous-sol | 17.2x36.9 P | Plancher flottant |
| Chambre à coucher | Sous-sol | 13.6x8.8 P | Plancher flottant |
| Atelier | Sous-sol | 8.10x27.5 P | Béton |
Taxes et dépenses
| Taxes scolaires | 379 $ |
| Taxes municipales | 4 213 $ |
| Coût d'énergie | 2 510 $ |
Bâtiment et intérieur de la propriété
| Chambres | 4 |
| Salles de bain | 2 |
| Nombre de pièces | 14 |
| Nombre de chambres hors sol | 2 |
| Nombre de chambres au sous-sol | 2 |
| Aire habitable | 1313 PC |
| Délai d'occupation prévu | 30 jours |
| Éléments inclus lors de la vente | Stores, tringles à rideaux, rideaux, luminaires, lave-vaisselle, cuisinière en gaz, réfrigérateur de la cuisine, ouvre-porte garage électrique, lit simple avec gigogne, téléviseur et barre de son du salon, tablettes pour projecteur, aspirateur central, A/ |
| Éléments exclus lors de la vente | Chaufferette du garage, supports à vélo et BBQ Napoléon. |
| Dimension de la façade du bâtiment | 13 M |
| Dimension de la profondeur du bâtiment | 8.77 M |
| Superficie du terrain | 9899 PC |
| Dimension de la façade du terrain | 30.48 M |
| Dimension de la profondeur du terrain | 30.17 M |
| Année de construction | 1977 |
| Évaluation municipale (terrain) | 254 900 $ |
| Évaluation municipale (bâtiment) | 306 500 $ |
| Évaluation municipale (total) | 561 400 $ |
| Année d'évaluation | 2026 |
| Allée | Asphalte, Double largeur ou plus |
| Aménagement du terrain | Clôturé, Patio |
| Mode de chauffage | Air soufflé, Plinthes électriques, Plinthes à convection |
| Approvisionnement en eau | Municipalité |
| Énergie pour le chauffage | Électricité, Gaz naturel |
| Équipement disponible | Installation aspirateur central, Porte de garage électrique, Climatiseur central |
| Fenêtres | PVC |
| Fondation | Bloc de béton |
| Garage | Attaché, Double largeur ou plus |
| Revêtements | Brique, Stuc, Pierre |
| Particularités | Coin de rue |
| Salle de bains/salle d'eau | Douche indépendante |
| Sous-sol | 6 pieds et plus, Entrée indépendante, Partiellement aménagé |
| Stationnement | Extérieur, Au garage |
| Système d'égouts | Municipal |
| Type de fenêtre | Coulissante, Porte-fenêtre, Manivelle |
| Toiture | Bardeaux d'asphalte |
| Topographie | Plat |
| Zonage | Résidentiel |
Addendas
| 17 Rue du Mont-Luc, Gatineau: |
| - Bungalow |
| - Secteur: Gatineau |
| - 4 chambres à coucher |
| - 2 salles de bains |
| - Concept à aire ouverte |
| - Spacieux |
| - Fenestration abondante |
| - Sous-sol aménagé avec entrée indépendante |
| - Espace de rangement intérieur |
| - A/C central (2017) |
| - Fournaise au gaz naturel (2010) |
| - Chauffe-eau (2019) |
| - Panneau électrique (2022) |
| - Toiture (2017) |
| - Terrain clôturé |
| - Terrain coin de rue |
| - Garage double |
| - Plusieurs espaces de stationnement |
| - Entrée asphaltée double |
| - Secteur familial |
| - Près des services essentiels |
| Rénovations: |
| + Salle de bain du haut (2014) |
| + Cuisine (2018) |
| + Salle de lavage (2018) |
| + Plomberie (2019) |
| + Salle de bain du sous-sol (2019) |
| + Sous-sol (2019) |





























































