Gatineau (Aylmer)
Description de la propriété
Découvrez ce superbe condo moderne construit en 2012, offert en location dans un secteur calme et recherché. Située au deuxième étage, l'unité se distingue par sa luminosité naturelle et son ambiance chaleureuse. L'aire de vie à concept ouvert, agrémentée de planchers de bois, propose un espace accueillant et fonctionnel. La chambre de bonnes dimensions assure confort et tranquillité. Salle de bain bien aménagée avec espace laveuse-sécheuse. Stationnement extérieur et rangement inclus. Emplacement stratégique à proximité des commerces, services, transport en commun et grands axes. Loyer : 1 350 $/mois.
Détails
Proximité
Autoroute/Voie rapide, Cegep, Golf, Hôpital, Parc-espace vert, École primaire, École secondaire, Transport en commun, Université, Piste cyclable, Ski alpin, Ski de fond, Garderie/CPE
Dimension des pièces
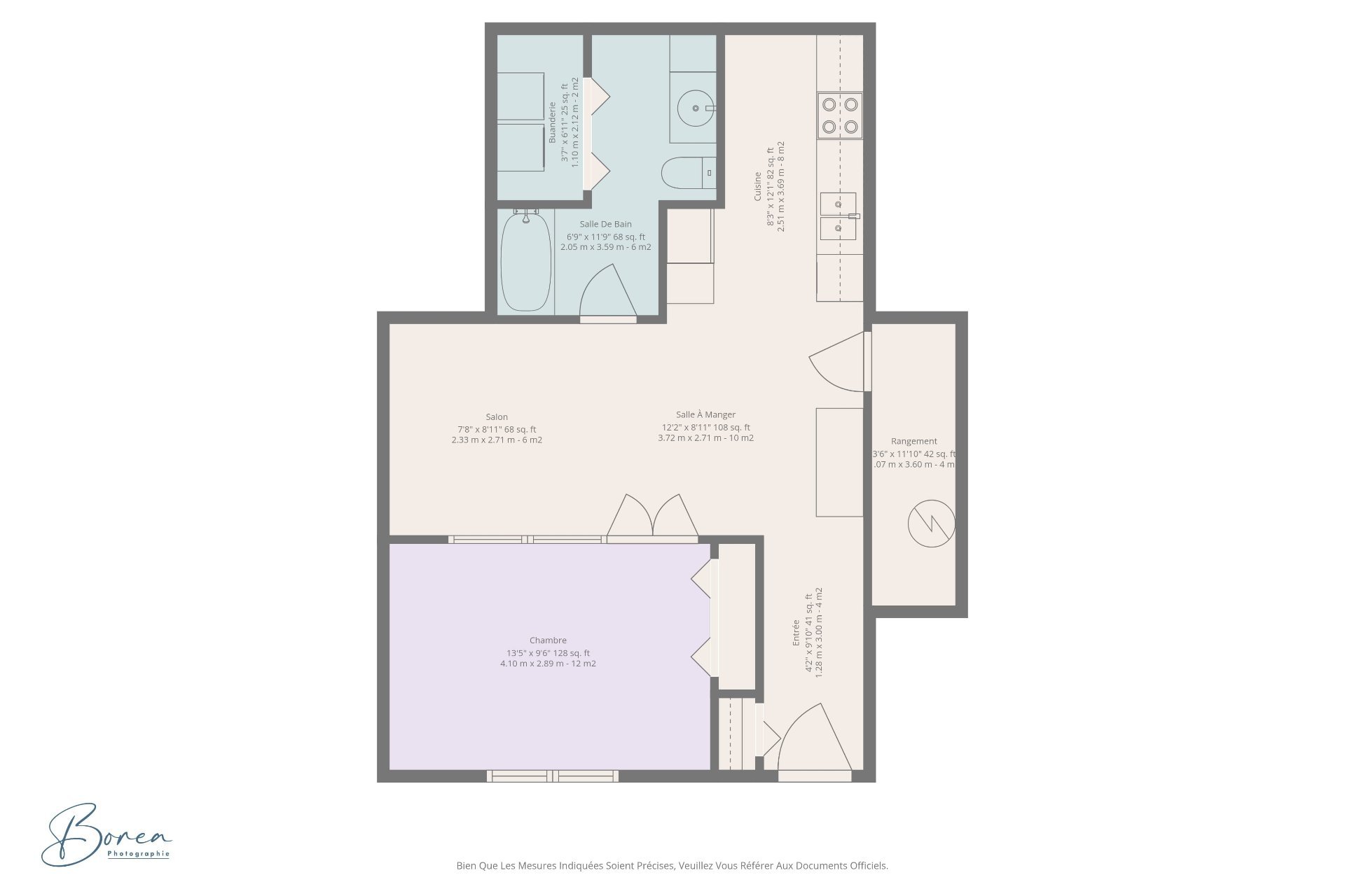
| Pièce | Niveau | Dimensions | Couvre plancher |
|---|---|---|---|
| Hall d'entrée | 1er niveau/RDC | 4.2x9.10 P | Céramique |
| Salle à manger | 1er niveau/RDC | 12.2x8.11 P | Plancher flottant |
| Cuisine | 1er niveau/RDC | 8.3x12.1 P | Plancher flottant |
| Salon | 1er niveau/RDC | 7.8x8.11 P | Plancher flottant |
| Chambre à coucher principale | 1er niveau/RDC | 13.5x9.6 P | Plancher flottant |
| Salle de bains | 1er niveau/RDC | 6.9x11.9 P | Céramique |
| Salle de lavage | 1er niveau/RDC | 3.7x6.11 P | Céramique |
| Rangement | 1er niveau/RDC | 3.6x11.10 P | Béton |
Taxes et dépenses
| Taxes scolaires | 167 $ |
| Taxes municipales | 2 079 $ |
| Frais de copropriété | 1 884 $ |
Bâtiment et intérieur de la propriété
| Frais de copropriété | 1 884 $ |
| Chambres | 1 |
| Salles de bain | 1 |
| Nombre de pièces | 8 |
| Nombre de chambres hors sol | 1 |
| Aire habitable | 55.8 MC |
| Éléments inclus lors de la vente | Cuisinière, réfrigérateur, laveuse et sécheuse. |
| Éléments exclus lors de la vente | Effets personnels des locataires. |
| Dimension de la façade du bâtiment | 6.06 M |
| Dimension de la profondeur du bâtiment | 9.48 M |
| Superficie du terrain | 139.85 MC |
| Année de construction | 2012 |
| Évaluation municipale (terrain) | 33 500 $ |
| Évaluation municipale (bâtiment) | 234 200 $ |
| Évaluation municipale (total) | 267 700 $ |
| Année d'évaluation | 2025 |
| Type de copropriété | Divise |
| Étage du condo | 2 |
| Nombre d'étages | 3 |
| Allée | Asphalte |
| Aménagement du terrain | Paysager |
| Mode de chauffage | Plinthes électriques |
| Approvisionnement en eau | Municipalité |
| Énergie pour le chauffage | Électricité |
| Équipement disponible | Climatiseur mural, Échangeur d'air |
| Fenêtres | PVC |
| Revêtements | Aluminium, Brique |
| Particularités | Coin de rue |
| Services disponibles | Détecteur d'incendie |
| Stationnement | Extérieur |
| Système d'égouts | Municipal |
| Type de fenêtre | Manivelle |
| Toiture | Bardeaux d'asphalte |
| Topographie | Plat |
| Vue | Sur la ville |
| Zonage | Résidentiel |
Addendas
| Ce condo construit en 2012 se démarque par sa conception |
| moderne, sa luminosité abondante et son emplacement |
| stratégique dans un secteur paisible et recherché. Située |
| au 2 étage, l'unité offre un environnement calme et |
| agréable, convenant parfaitement à un mode de vie urbain |
| équilibré ou à un investissement locatif. |
| L'aire de vie à concept ouvert propose une circulation |
| fluide entre le salon, la salle à manger et la cuisine. Les |
| planchers de bois ajoutent chaleur et élégance à |
| l'ensemble. La chambre à coucher de bonnes dimensions |
| bénéficie d'une belle lumière naturelle et d'une atmosphère |
| reposante. |
| La salle de bain fonctionnelle comprend un espace de lavage |
| intégré, un atout appréciable au quotidien. L'unité inclut |
| également un espace de rangement extérieur ainsi qu'un |
| stationnement extérieur dédié. |
| L'immeuble est bien entretenu et bénéficie d'un emplacement |
| avantageux, à proximité des épiceries, commerces, |
| restaurants, services essentiels, transport en commun et |
| des principaux axes routiers. Ce condo représente une |
| excellente opportunité pour un propriétaire occupant ou un |
| investisseur, avec un potentiel locatif estimé à 1 350 $ |
| par mois. |
| Une propriété clé en main dans un secteur en forte demande. |
| Pour plus d'informations ou pour planifier une visite, |
| communique avec Jonathan Lamirande au 819-303-1809 et |
| profite de mon expérience d'investisseur pour t'accompagner |
| stratégiquement dans ton projet immobilier, que ce soit |
| pour une première acquisition ou un investissement rentable. |























