Gatineau (Gatineau)
Description de la propriété
Bienvenue au 49 Terrasse-David! Découvrez cette demeure baignée de lumunosité naturelle, choyée par le même propriétaire depuis 20 ans. Localisée dans un quartier paisible , familial et recherché, elle se trouve à quelques pas des écoles primaire et secondaires et tous les services. Elle vous offre 3 cac, 2 sdb, beaucoup de rangement et un sous-sol avec plusieurs possibilités. Propriété soigneusement entretenue au fil des ans, avec plusieurs rénovations documentées (factures à l'appui). Profitez d'une grande cour arrière intime bordée par des haies et des arbres matures tout autour de la propriété. Faites vite!
Détails
Proximité
Parc-espace vert, École primaire, École secondaire, Transport en commun, Garderie/CPE
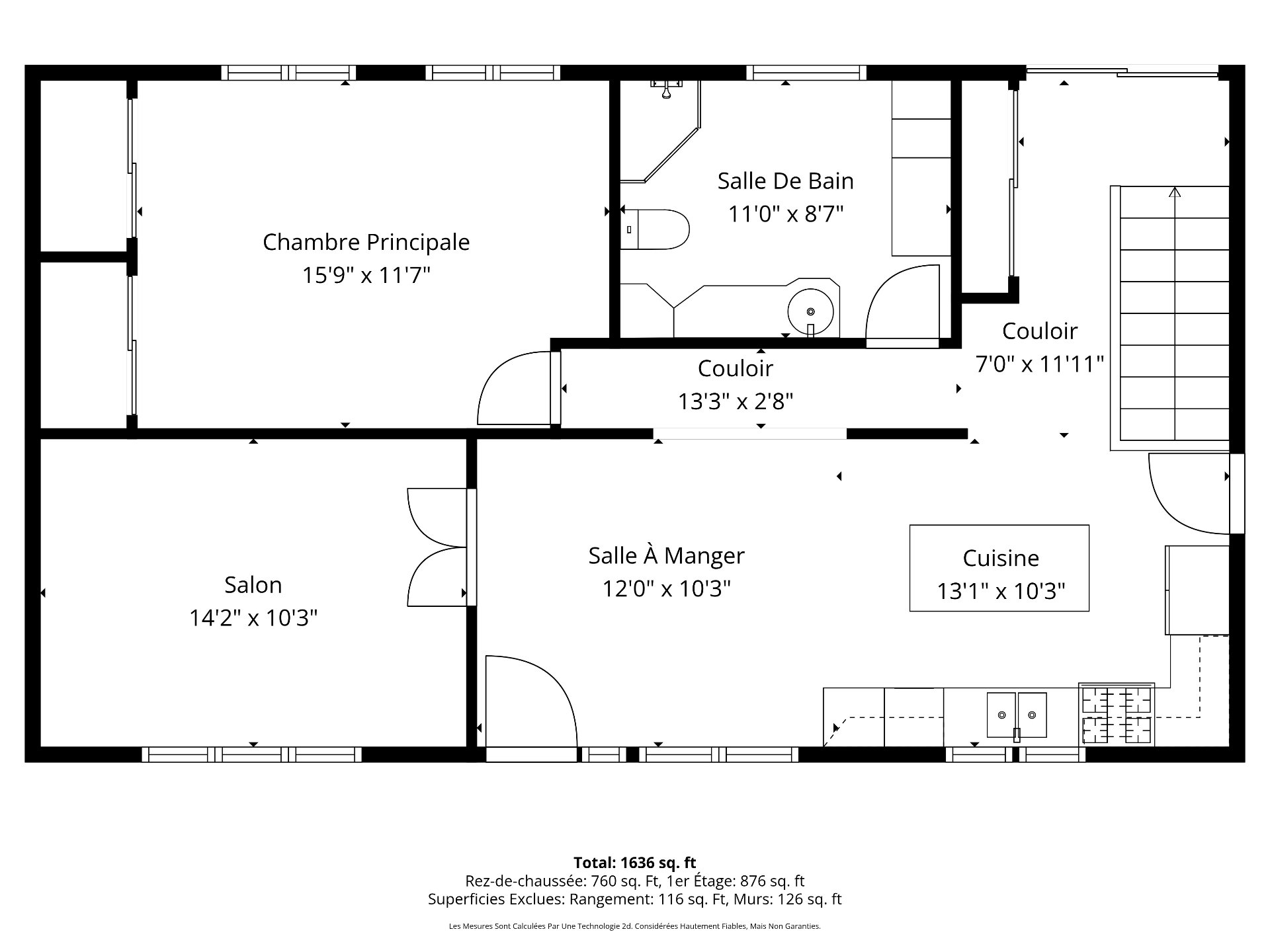
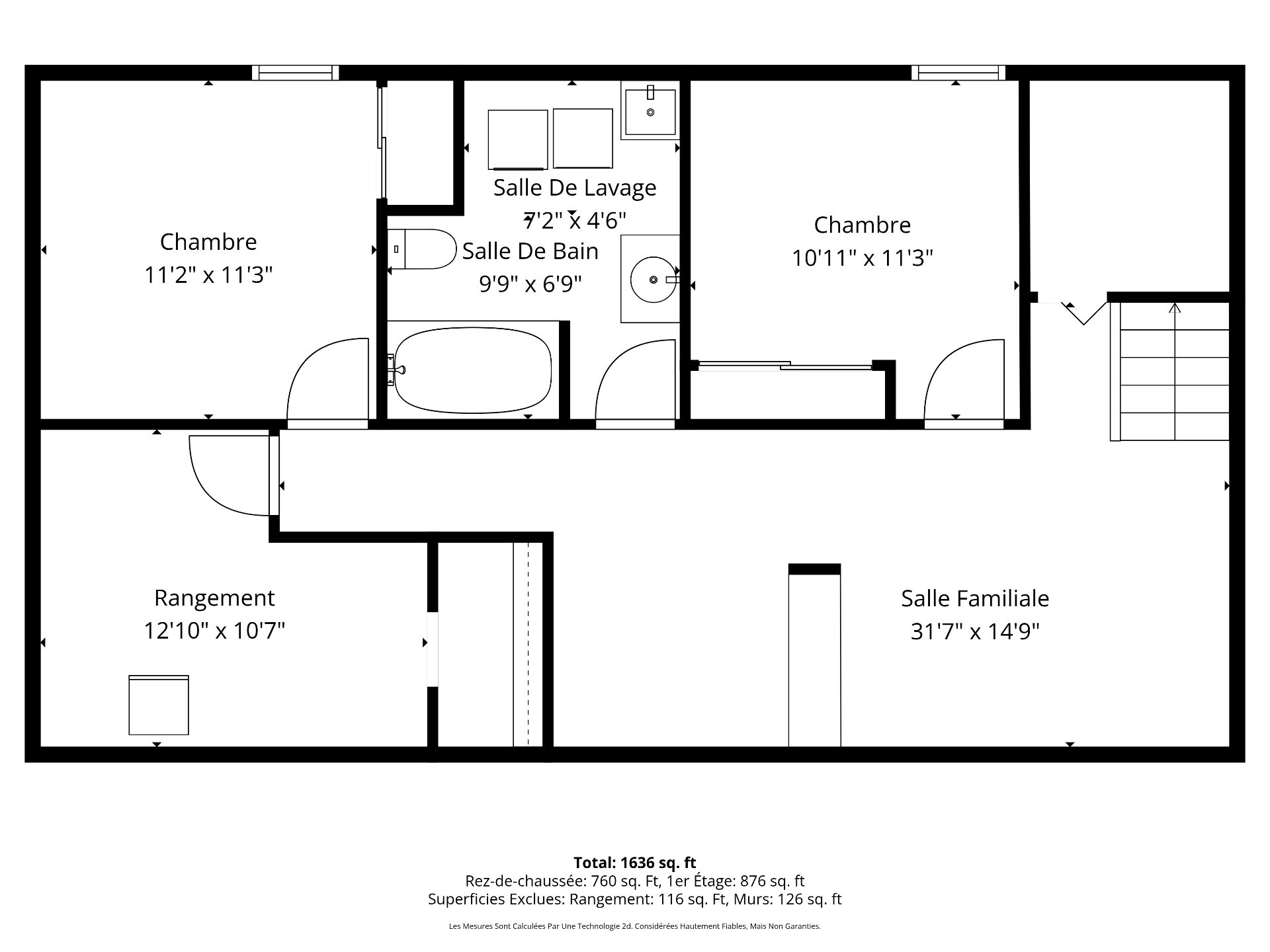
Dimension des pièces
| Pièce | Niveau | Dimensions | Couvre plancher |
|---|---|---|---|
| Hall d'entrée | 1er niveau/RDC | 3.0x4.0 P | Céramique |
| Cuisine | 1er niveau/RDC | 13.1x10.3 P | Céramique |
| Salon | 1er niveau/RDC | 14.0x10.3 P | Bois |
| Salle à manger | 1er niveau/RDC | 12.0x10.3 P | Bois |
| Hall d'entrée | 1er niveau/RDC | 3.0x3.0 P | Bois |
| Chambre à coucher principale | 1er niveau/RDC | 15.9x11.7 P | Bois |
| Salle de bains | 1er niveau/RDC | 11.0x8.7 P | Céramique |
| Salle familiale | Sous-sol | 31.7x14.9 P | Plancher flottant |
| Chambre à coucher | Sous-sol | 11.3x10.11 P | Plancher flottant |
| Chambre à coucher | Sous-sol | 11.3x11.3 P | Plancher flottant |
| Salle de bains | Sous-sol | 9.9x6.9 P | Céramique |
| Salle de lavage | Sous-sol | 6.2x4.6 P | Céramique |
| Rangement | Sous-sol | 12.10x10.7 P | Béton |
Taxes et dépenses
| Taxes municipales | 3 733 $ |
| Taxes scolaires | 321 $ |
Bâtiment et intérieur de la propriété
| Chambres | 3 |
| Salles de bain | 2 |
| Nombre de pièces | 13 |
| Nombre de chambres hors sol | 1 |
| Nombre de chambres au sous-sol | 2 |
| Aire habitable | 1007 PC |
| Éléments inclus lors de la vente | lave-vaisselle, chauffe-eau, stores, rideaux, 3 armoires de rangement, luminaires, table de cuisine et ses 6 chaises, buffet dans la salle à manger, remise, air climatisé mural |
| Éléments exclus lors de la vente | réfrigérateur, cuisinière, laveuse, sécheuse, sectionnel au salon (peut être acheté en dehors de la transaction) |
| Dimension de la façade du bâtiment | 46 P |
| Dimension de la profondeur du bâtiment | 24 P |
| Superficie du terrain | 650.3 MC |
| Dimension de la façade du terrain | 21.34 M |
| Dimension de la profondeur du terrain | 30.47 M |
| Année de construction | 1976 |
| Évaluation municipale (terrain) | 253 000 $ |
| Évaluation municipale (bâtiment) | 219 400 $ |
| Évaluation municipale (total) | 472 400 $ |
| Année d'évaluation | 2026 |
| Superficie du bâtiment | 1104 PC |
| Allée | Asphalte |
| Aménagement du terrain | Terrain/cour bordé de haies |
| Armoires | Thermoplastique |
| Mode de chauffage | Plinthes électriques |
| Approvisionnement en eau | Municipalité |
| Énergie pour le chauffage | Électricité |
| Équipement disponible | Climatiseur mural |
| Fenêtres | PVC |
| Fondation | Béton coulé |
| Revêtements | Bois |
| Salle de bains/salle d'eau | Autre, Douche indépendante |
| Sous-sol | 6 pieds et plus, Totalement aménagé |
| Stationnement | Extérieur |
| Système d'égouts | Municipal |
| Type de fenêtre | Coulissante, Porte-fenêtre, Manivelle |
| Toiture | Bardeaux d'asphalte |
| Topographie | Plat |
| Zonage | Résidentiel |
Addendas
| CARACTÉRISTIQUES GÉNÉRALES / KEY FEATURES |
| Propriétaire unique : Même propriétaire depuis 2005 (20 ans |
| de soins méticuleux). / Same owner since 2005 (20 years of |
| meticulous care). |
| Luminosité : Fenestration abondante offrant une lumière |
| naturelle tout au long de la journée. / Abundant windows |
| providing natural light throughout the day. |
| Espace de vie : 3 chambres à coucher, 2 salles de bain |
| complètes et un sous-sol offrant plusieurs possibilités |
| d'aménagement (salle familiale, bureau ou gym). / 3 |
| bedrooms, 2 full bathrooms, and a basement with endless |
| possibilities (family room, office, or gym). |
| EXTÉRIEUR / EXTERIOR |
| Intimité : Cour arrière privée bordée de haies et d'arbres |
| matures sur tout le pourtour de la propriété. / Private |
| backyard lined with mature hedges and trees surrounding the |
| property. |
| Aménagements : Balcon et remise pratique pour le rangement |
| extérieur. / Balcony and practical shed for outdoor storage. |
| RÉNOVATIONS ET ENTRETIEN / RENOVATIONS & MAINTENANCE |
| Propriété entretenue avec soin au fil des ans. / Property |
| meticulously maintained over the years. |
| Factures disponibles pour les travaux suivants : / Invoices |
| available for the following work: |
| Toiture / Roofing |
| Balcon / Balcony |
| Gouttières / Gutters |
| LOCALISATION / LOCATION |
| Quartier paisible, familial et très recherché. / Quiet, |
| family-oriented, and highly sought-after neighborhood. |
| À distance de marche des écoles primaires, secondaires et |
| de tous les services essentiels. / Walking distance to |
| primary and secondary schools and all essential services. |
| INCLUSIONS SPÉCIFIQUES |
| Lave-vaisselle, chauffe-eau, stores, rideaux, 3 armoires de |
| rangement, luminaires, table de cuisine et 6 chaises, |
| buffet de la salle à manger, remise, climatiseur mural. / |
| Dishwasher, water heater, blinds, curtains, 3 storage |
| cabinets, light fixtures, kitchen table & 6 chairs, dining |
| room sideboard, shed, wall-mounted AC. |









































