Gatineau (Gatineau)
Description de la propriété
Magnifique propriété quatre côtés brique, entretenue avec un soin exemplaire par son unique propriétaire. Cette demeure se distingue par son vaste salon avec plafond cathédrale de 12 pieds et sa cuisine moderne dotée de comptoirs de granite. Elle offre trois chambres et deux salles de bains complètes, ainsi qu'un système de climatisation centrale pour un confort optimal. Le sous-sol est agrémenté d'une salle familiale avec poêle à bois. Grand garage fonctionnel avec accès triple. Le vaste terrain de 13 600 pc est clôturé et plat, situé à deux pas d'une école et d'une garderie. Une résidence de qualité, clé en main et parfaitement située.
Détails
Proximité
Autoroute/Voie rapide, Parc-espace vert, École primaire, Transport en commun, Piste cyclable, Garderie/CPE
Dimension des pièces
| Pièce | Niveau | Dimensions | Couvre plancher |
|---|---|---|---|
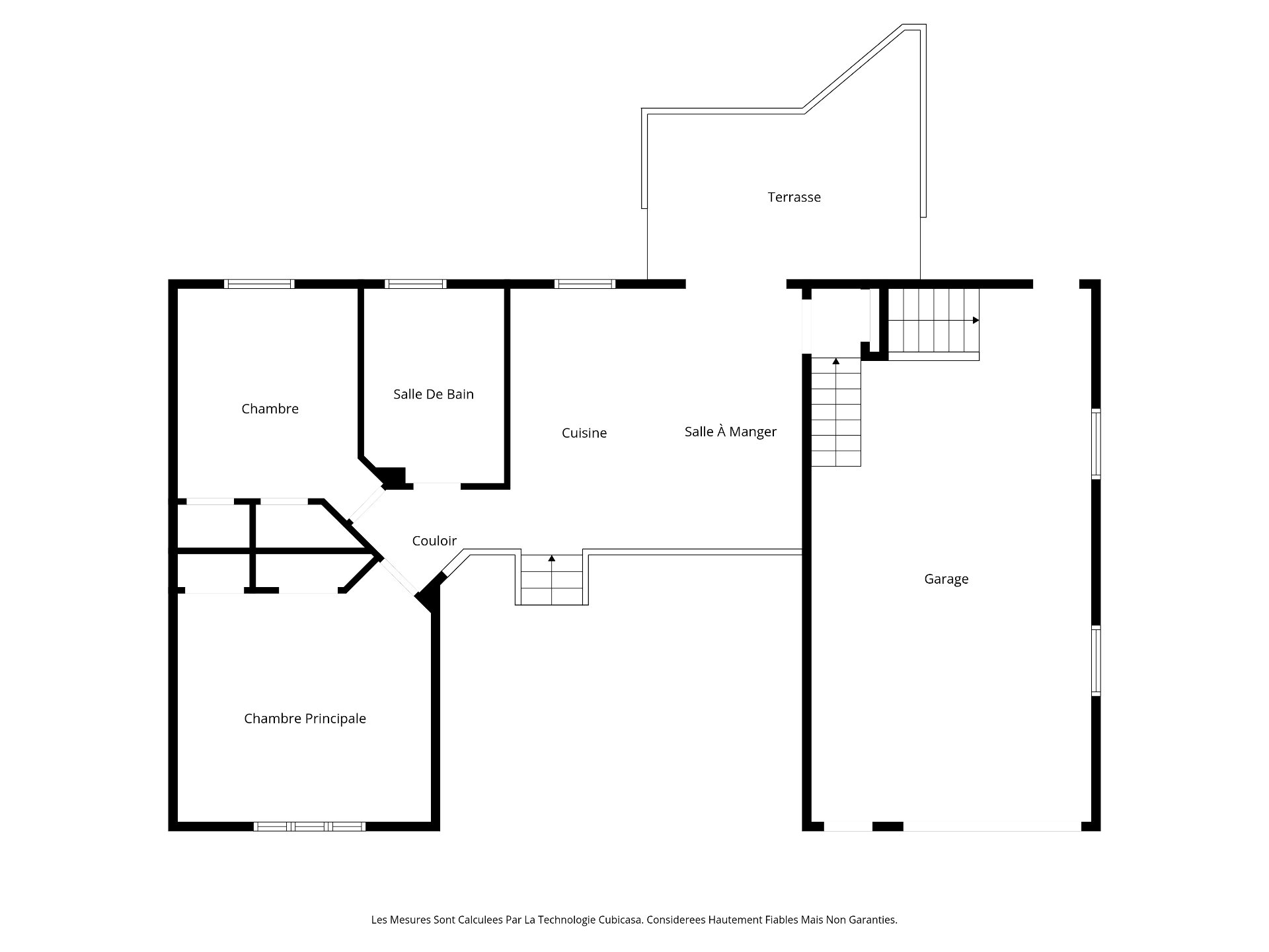
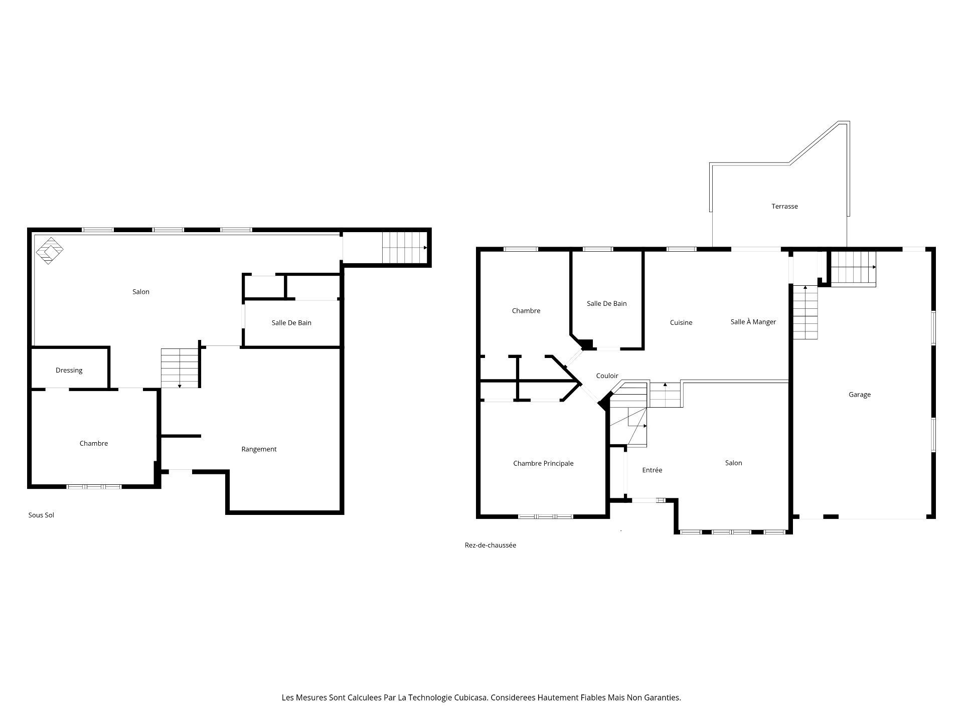
| Cuisine | 1er niveau/RDC | 10.5x15.0 P | Céramique |
| Salle à manger | 1er niveau/RDC | 8.8x15.0 P | Céramique |
| Salon | 1er niveau/RDC | 12.5x17.7 P | Bois |
| Chambre à coucher principale | 1er niveau/RDC | 15.0x16.9 P | Bois |
| Chambre à coucher | 1er niveau/RDC | 10.8x12.0 P | Bois |
| Salle de bains | 1er niveau/RDC | 8.0x11.4 P | Céramique |
| Hall d'entrée | 1er niveau/RDC | 5.0x5.5 P | Céramique |
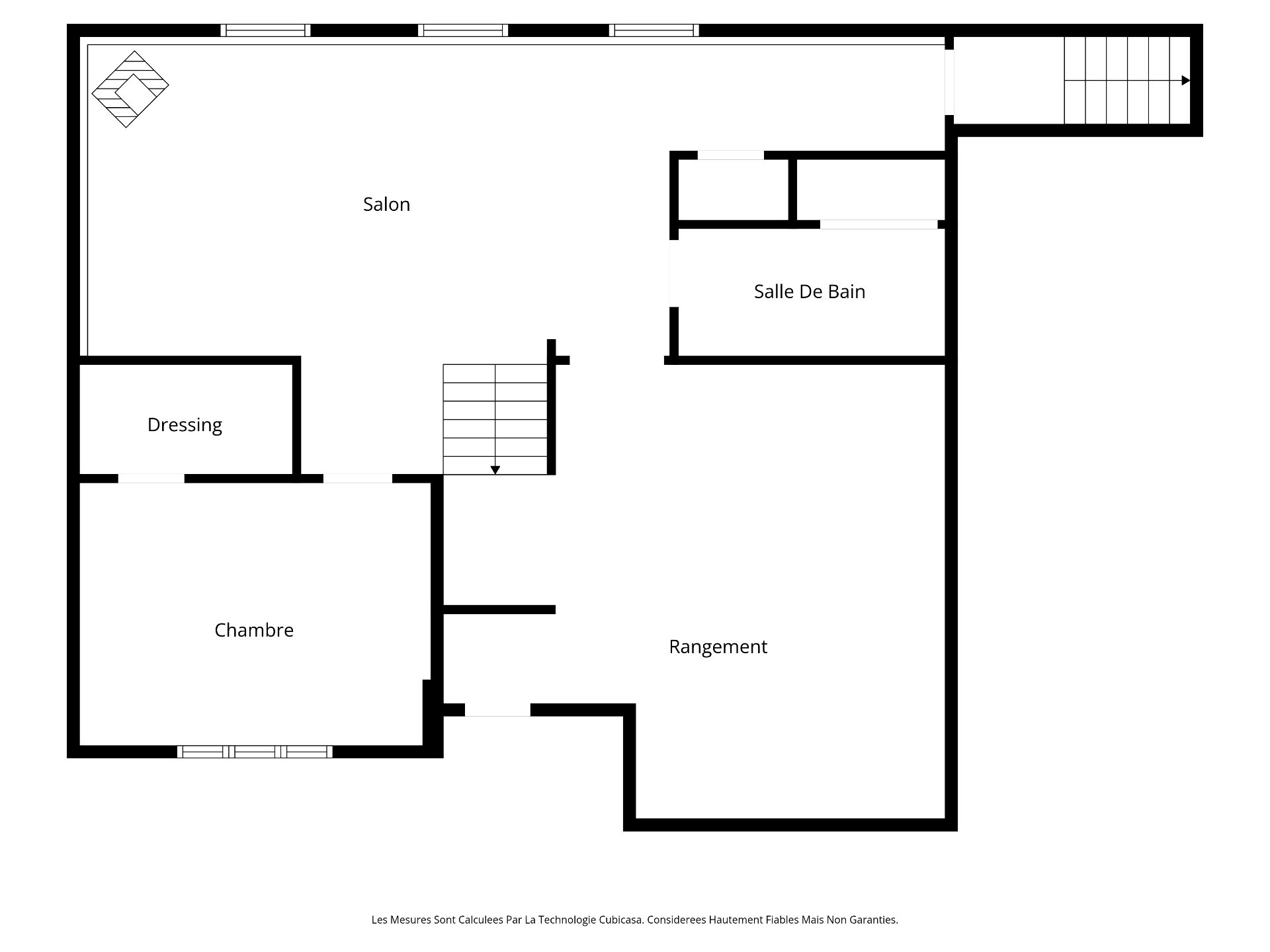
| Salle familiale | Sous-sol | 14.9x24.8 P | PVC |
| Chambre à coucher | Sous-sol | 10.8x14.9 P | PVC |
| Salle de bains | Sous-sol | 8.9x10.5 P | PVC |
| Rangement | Sous-sol | 16.0x17.5 P | Béton |
| Cave/ chambre froide | Sous-sol | 4.0x8.3 P | Béton |
Taxes et dépenses
| Taxes municipales | 5 209 $ |
| Taxes scolaires | 374 $ |
Bâtiment et intérieur de la propriété
| Chambres | 3 |
| Salles de bain | 2 |
| Nombre de pièces | 11 |
| Nombre de chambres hors sol | 2 |
| Nombre de chambres au sous-sol | 1 |
| Aire habitable | 119 MC |
| Délai d'occupation prévu | 180 jours |
| Éléments inclus lors de la vente | Tringles à rideaux, rideaux, stores, plaque de cuisson (JENN AIR), four encastré,support de télévision dans la chambre principale, système d'alarme, structure de jeux pour enfants, abri-soleil, remise. |
| Éléments exclus lors de la vente | Aspirateur central, chauffe-eau pour piscine, borne de recharge pour véhicule électrique. |
| Dimension de la façade du bâtiment | 16.97 M |
| Dimension de la profondeur du bâtiment | 9.96 M |
| Superficie du terrain | 1267.6 MC |
| Dimension de la façade du terrain | 20.81 M |
| Dimension de la profondeur du terrain | 60.94 M |
| Année de construction | 2002 |
| Évaluation municipale (terrain) | 208 500 $ |
| Évaluation municipale (bâtiment) | 339 500 $ |
| Évaluation municipale (total) | 548 000 $ |
| Année d'évaluation | 2026 |
| Superficie du bâtiment | 119 MC |
| Allée | Asphalte, Double largeur ou plus |
| Aménagement du terrain | Clôturé |
| Mode de chauffage | Air soufflé |
| Approvisionnement en eau | Municipalité |
| Énergie pour le chauffage | Électricité |
| Fondation | Béton coulé |
| Foyers-poêles | Poêle à bois |
| Garage | Attaché, Chauffé |
| Appareils en location | Chauffe-eau |
| Revêtements | Brique |
| Salle de bains/salle d'eau | Douche indépendante |
| Sous-sol | Totalement aménagé |
| Stationnement | Extérieur, Au garage |
| Système d'égouts | Municipal |
| Toiture | Bardeaux d'asphalte |
| Topographie | Plat |
| Zonage | Résidentiel |
Addendas
| Une rareté sur le marché : Clé en main, qualité et |
| emplacement de choix |
| Située dans un secteur recherché, à quelques pas seulement |
| d'une école primaire et d'une garderie, cette superbe |
| propriété de 1280 pieds carrés habitables est une |
| opportunité exceptionnelle. Entretenue avec une rigueur |
| exemplaire par son unique propriétaire depuis la |
| construction, cette demeure quatre côtés brique allie |
| solidité et élégance. |
| Un intérieur vaste et lumineux |
| Dès l'entrée, vous serez séduit par le vaste salon doté |
| d'un plafond cathédrale de 12 pieds, créant une impression |
| d'espace remarquable. La cuisine, véritable coeur de la |
| maison, a été modernisée avec goût : elle dispose de |
| superbes comptoirs de granite (2013) et d'armoires en |
| thermoplastique fraîchement installées en 2021. Le |
| rez-de-chaussée comprend deux chambres à coucher |
| confortables, tandis qu'une troisième se trouve au |
| sous-sol, idéale pour un adolescent ou un bureau. |
| Confort et fonctionnalité |
| La maison offre deux salles de bains complètes pour |
| répondre aux besoins de la famille. Le sous-sol, |
| entièrement aménagé, propose une vaste salle familiale |
| agrémentée d'un poêle à bois remplacé en 2022, parfait pour |
| les soirées d'hiver. Le confort est assuré à l'année grâce |
| au système de climatisation centrale. Vous y trouverez |
| également une chambre froide et de multiples espaces de |
| rangement. |
| Un garage et un terrain d'exception |
| Le grand garage est un atout majeur, offrant une |
| accessibilité rare avec ses trois accès directs : vers le |
| rez-de-chaussée, le sous-sol et l'extérieur. À l'extérieur, |
| le terrain plat de 13 600 pieds carrés (68 x 200) est |
| entièrement clôturé, offrant sécurité et intimité en pleine |
| ville. L'entrée asphaltée, refaite à neuf en 2025, est très |
| large et inclut un trottoir pratique menant à la cour |
| arrière. |
| Entretien et rénovations récentes : |
| Revêtement de plancher du sous-sol (2017) |
| Toiture (2017) |
| Thermos des fenêtres du rez-de-chaussée (2017) |
| Poêle à bois (2022) |
| Entrée d'asphalte et trottoir (2025) |
| Une propriété impeccable où il ne reste qu'à vous |
| installer. Une visite vous convaincra ! |

















































