Gatineau (Aylmer)
Description de la propriété
Coup de coeur assuré! Superbe maison jumelée moderne de 1208 pi² impeccablement entretenue au Plateau de la Capitale, Aylmer. 3 grandes chambres, 2 salles de bains complètes + 1 salle d'eau. Sous-sol entièrement aménagé avec salle de bain moderne. Inondée de lumière naturelle! Climatisation centrale, chauffage central, échangeur d'air, raccordement aspirateur central. Magnifique terrain de 3261 pi² avec cour arrière clôturée orientée plein sud - soleil toute la journée! Tous les services à proximité dans ce secteur familial ultra recherché. Idéale pour jeunes familles et premiers acheteurs. Visitez dès aujourd'hui!
Détails
Proximité
Autoroute/Voie rapide, Cegep, Golf, Hôpital, Parc-espace vert, École primaire, École secondaire, Transport en commun, Université, Piste cyclable, Garderie/CPE
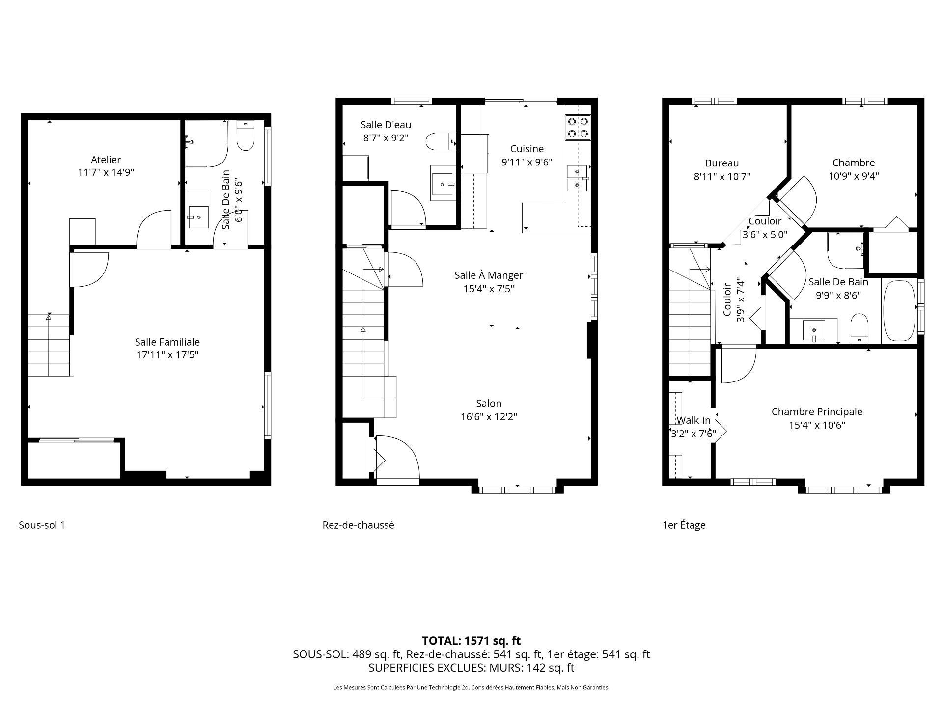
Dimension des pièces
| Pièce | Niveau | Dimensions | Couvre plancher |
|---|---|---|---|
| Salon | 1er niveau/RDC | 16.6x12.2 P | Bois |
| Salle à manger | 1er niveau/RDC | 15.4x7.5 P | Bois |
| Cuisine | 1er niveau/RDC | 9.11x9.6 P | Céramique |
| Salle d'eau | 1er niveau/RDC | 9.2x8.7 P | Céramique |
| Bureau à domicile | 2ième étage | 10.7x8.11 P | Bois |
| Chambre à coucher | 2ième étage | 10.9x9.4 P | Bois |
| Salle de bains | 2ième étage | 9.9x8.6 P | Céramique |
| Chambre à coucher principale | 2ième étage | 15.4x10.6 P | Bois |
| Atelier | Sous-sol | 14.9x11.4 P | Béton |
Taxes et dépenses
| Taxes municipales | 4 030 $ |
| Taxes scolaires | 311 $ |
Bâtiment et intérieur de la propriété
| Chambres | 3 |
| Salles de bain | 2 |
| Salles d'eau | 1 |
| Nombre de pièces | 11 |
| Nombre de chambres hors sol | 3 |
| Aire habitable | 1208 PC |
| Délai d'occupation prévu | 90 jours |
| Éléments inclus lors de la vente | Luminaires, tringles et rideaux, étagères décoratives, meuble télé du salon (rez-de-chaussée), climatisation centrale, échangeur d'air, aspirateur central (raccordement requis), laveuse et sécheuse, cabanon extérieur. |
| Éléments exclus lors de la vente | chauffe-eau, fournaise. |
| Dimension de la façade du bâtiment | 6.13 M |
| Dimension de la profondeur du bâtiment | 8.55 M |
| Superficie du terrain | 3261 PC |
| Dimension de la façade du terrain | 10 M |
| Dimension de la profondeur du terrain | 30.29 M |
| Année de construction | 2010 |
| Évaluation municipale (terrain) | 160 600 $ |
| Évaluation municipale (bâtiment) | 293 400 $ |
| Évaluation municipale (total) | 454 000 $ |
| Année d'évaluation | 2025 |
| Allée | Asphalte |
| Aménagement du terrain | Clôturé, Paysager |
| Mode de chauffage | Air soufflé |
| Approvisionnement en eau | Municipalité |
| Énergie pour le chauffage | Gaz naturel |
| Équipement disponible | Climatiseur central, Thermopompe centrale, Échangeur d'air |
| Fenêtres | PVC |
| Fondation | Bloc de béton |
| Appareils en location | Chauffe-eau |
| Revêtements | Brique, Vinyle, Pierre |
| Salle de bains/salle d'eau | Douche indépendante |
| Sous-sol | 6 pieds et plus, Totalement aménagé |
| Stationnement | Extérieur |
| Système d'égouts | Municipal |
| Type de fenêtre | Coulissante, Porte-fenêtre, Manivelle |
| Toiture | Bardeaux d'asphalte |
| Topographie | Plat |
| Zonage | Résidentiel |








































