Gatineau (Hull)
Description de la propriété
Joli triplex sur l'Île de Hull dans un secteur très en demande. Près de tous les services et à distance de marche du quartier du vieux Hull et de ses restaurants, des ponts menant à Ottawa et du Parc Jacques Cartier et de la rivière des Outaouais. Parfait pour propriétaire occupant ou investissement. Les 3 appartements ont leur prises laveuse & sécheuse. À voir absolument!!!!
Détails
Proximité
Autoroute/Voie rapide, Hôpital, Parc-espace vert, École primaire, École secondaire, Transport en commun, Piste cyclable, Garderie/CPE
Dimension des pièces
| Pièce | Niveau | Dimensions | Couvre plancher |
|---|---|---|---|
| Cuisine | 1er niveau/RDC | 10.0x18.10 P | Céramique |
| Salon | 1er niveau/RDC | 6.1x12.8 P | Plancher flottant |
| Chambre à coucher principale | 1er niveau/RDC | 9.6x10.5 P | Plancher flottant |
| Chambre à coucher | 1er niveau/RDC | 6.7x10.5 P | Plancher flottant |
| Salle de bains | 1er niveau/RDC | 6.1x5.11 P | Céramique |
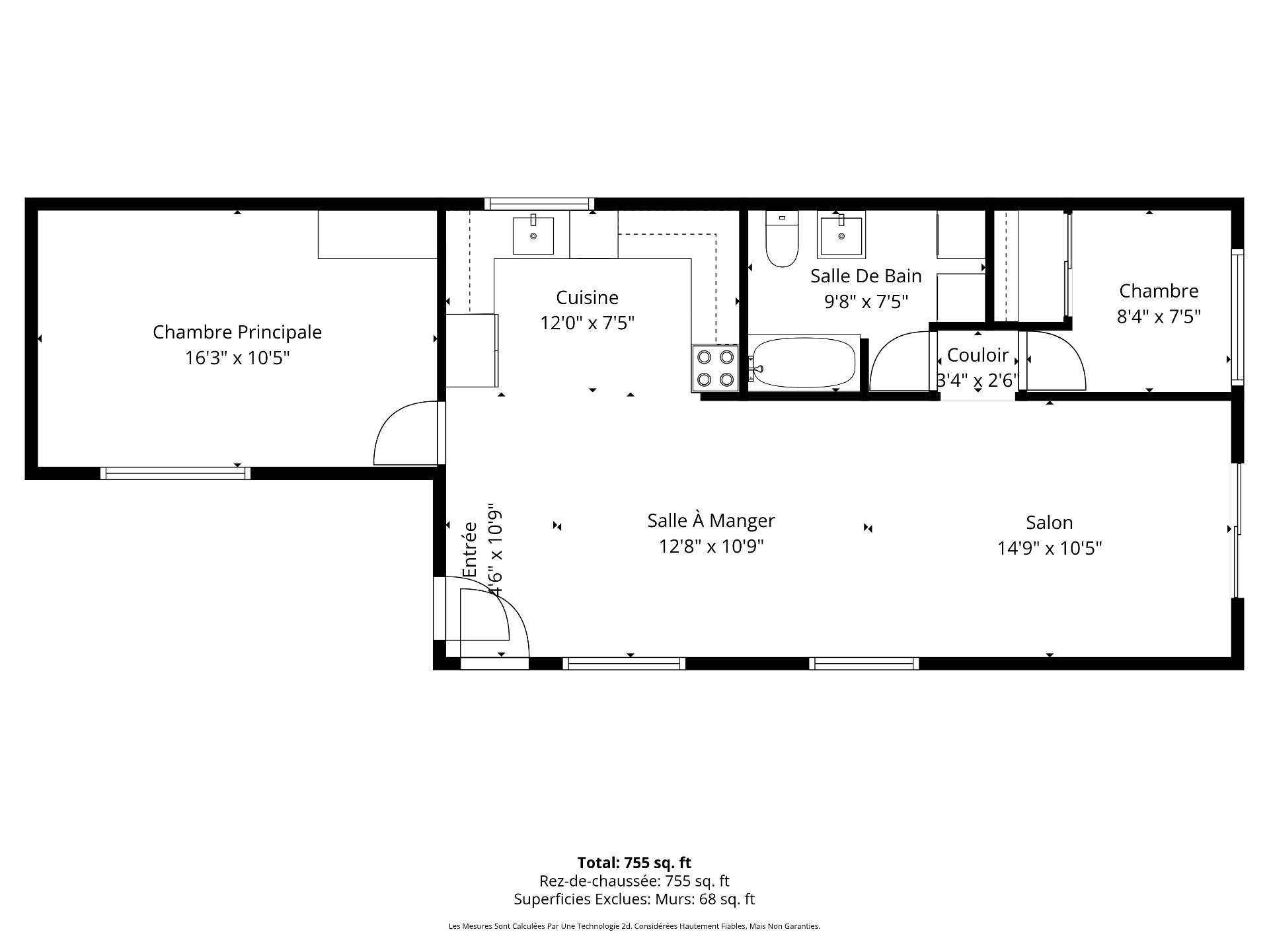
| Salon | Sous-sol | 14.9x10.5 P | Plancher flottant |
| Salle à manger | Sous-sol | 12.8x10.9 P | Plancher flottant |
| Cuisine | Sous-sol | 12.0x7.5 P | Plancher flottant |
| Chambre à coucher principale | Sous-sol | 16.3x10.5 P | Plancher flottant |
| Chambre à coucher | Sous-sol | 8.4x7.5 P | Plancher flottant |
| Salle de bains | Sous-sol | 9.8x7.5 P | Céramique |
| Cuisine | 2ième étage | 10.10x14.2 P | Plancher flottant |
| Salle de lavage | 2ième étage | 8.10x3.11 P | Plancher flottant |
| Chambre à coucher principale | 2ième étage | 10.10x18.3 P | Plancher flottant |
| Salle de bains | 2ième étage | 3.8x7.6 P | Céramique |
Taxes et dépenses
| Taxes municipales | 3 715 $ |
| Taxes scolaires | 269 $ |
Bâtiment et intérieur de la propriété
| Chambres | 2 |
| Salles de bain | 1 |
| Nombre de pièces | 5 |
| Aire habitable | 1345.8 PC |
| Éléments inclus lors de la vente | Tous les meubles et électros ménagers des 2 appartements vacants, 3 réservoirs d'eau chaude, 3 A/C amovibles |
| Dimension de la façade du bâtiment | 20.47 M |
| Dimension de la profondeur du bâtiment | 6.26 M |
| Superficie du terrain | 220.4 MC |
| Dimension de la façade du terrain | 10.87 M |
| Dimension de la profondeur du terrain | 20.28 M |
| Année de construction | 1945 |
| Évaluation municipale (terrain) | 176 300 $ |
| Évaluation municipale (bâtiment) | 203 600 $ |
| Évaluation municipale (total) | 379 900 $ |
| Année d'évaluation | 2025 |
| Nombre d'étages | 3 |
| Bâtiment irrégulier | Oui |
| Superficie du bâtiment | 128.14 MC |
| Revenus bruts potentiels | 46 800 $ |
| Allée | Asphalte |
| Mode de chauffage | Plinthes à convection, Plinthes électriques |
| Approvisionnement en eau | Municipalité |
| Énergie pour le chauffage | Électricité |
| Fenêtres | Bois, PVC |
| Fondation | Béton coulé |
| Revêtements | Aluminium |
| Stationnement | Extérieur |
| Système d'égouts | Municipal |
| Type de fenêtre | Coulissante |
| Toiture | Tôle |
| Topographie | En pente, Plat |
| Zonage | Résidentiel |












































